+ Lisa oma töö      

Otsid ehitajat "Lammutustööd" valdkonnast?

Parima pakkumise ja teostaja leidmiseks lisa oma töö.

Hange on lõppenud!

Võitjaks osutus kasutaja ID 37753

Korraldaja hinnang tehtud tööle

5.0
12.07.2017
Töökiirus: 12345
Kvaliteet: 12345
Hind: 12345

. - Riho R.

Korrusmaja 48m2 korteri siseviimistluse eemaldamine ja utiliseerimine

ID 39995

6665 vaatamist

Prindi

  • check Pakkumiste tegemine
    kuni 12.06.2017
  • check Võitja valik kuni
    19.06.2017
  • 3 Töö teostamine
    ja hinnang
Hanke lõpp: E, 12. juuni, 2017
Maakond: Tartumaa
Linn: Tartu
Tööde algus: E, 19. juuni, 2017 (Soovituslik)
Tööde lõpp: R, 23. juuni, 2017 (Soovituslik)
Ehitusmaterjalid: Töö tegija poolt

Töö sisu

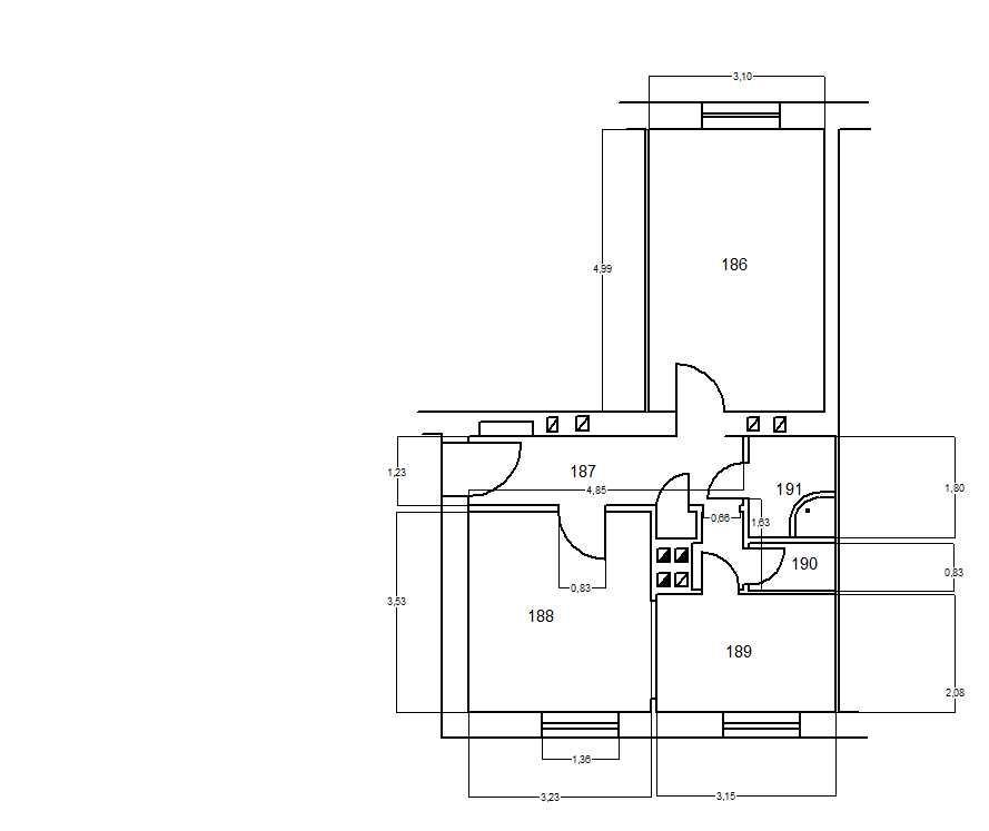
Stalini maja III korruse korter tuleb puhastada omal ajal sinna ehitatud viimistlusest - püssi plaadist falšpõrand roovitisel, puitvõrestikul ripplagi, tuuletõkkepapist (välisseinad) ja püssi plaadist seinakatted, veetorustik kuni veemõõtja ventiilini, wc põranda plaadid.

Korteri plaan, fotod ja tabel töömahtudega lisatud.

Lammutuse käigus ei vigastata täiendavalt algseid konstruktsioone - laudpõrandat, seinakarniise, sooja vee boilerit j.m.

Kui tööde käigus ilmneb, et tegemist pole kandeseinaga, tuleb lammutada ka vannitoaboksi seinad. Selle töö hind tuleb pakkumises eraldi näidata.

Pildid, video ja failid

Hanke korraldaja: ettevõte ID2269

Pakkumised

Pakkumisi kokku: 5

Ettevõte Summa Käibemaks Lisatud Vestlus
Kasutaja ikoon ID40475
Pakkuja profiil Väike nool paremale
900€ Ei sisalda Ei sisalda 30.05.2017 Vestlus (0)

Pakkumise kirjeldus:

Tere !
Hinnas arvestatud lammutustööd ja konteineri rent.
Head ! Silver

Kasutaja ikoon ID44108
Pakkuja profiil Väike nool paremale
950€ Ei sisalda Ei sisalda 01.06.2017 Vestlus (0)

Pakkumise kirjeldus:

Tere,

pakkumine siis koos teiepoot soovitud töödega ja materjali ultiliseerimisega,

Lugupidamisega

Rainer

Kasutaja ikoon ID42381
Pakkuja profiil Väike nool paremale
1 400€ Ei sisalda Ei sisalda 06.06.2017 Vestlus (0)

Pakkumise kirjeldus:

Hind sisaldab ka vajadusel wc ja vannitoa seina lammutamist.

Kasutaja ikoon ID39130
Pakkuja profiil Väike nool paremale
1 000€ Sisaldab KM Sisaldab KM 10.06.2017 Vestlus (0)

Pakkumise kirjeldus:

Pakkumine teie kirjelduse järgi.Boksi lammutuse hind kohapeal

Kasutaja ikoon ID37753
Pakkuja profiil Väike nool paremale
800€ Ei sisalda Ei sisalda 11.06.2017 Vestlus (0)

Pakkumise kirjeldus:

Tere. Meie hinnapakkumine sisaldab: Hankes kirjeldusele ja mahutabelile vastava töö lammutamine ja tekkinud prahi utiliseerimine. Töö kestvus 1-2 päeva. lgp Timo.

Küsimused hanke korraldajale

Küsimus: private ID44108   01.06.2017 00:31
Tere,<br />
<br />
Soovite tuuletõkkepaist väliseinte puhastamist, kas saaks ka sellekohta pilte lisada, maja välifasaadi kohta,<br />
<br />
Lugupidamiega<br />
<br />
Rainer

Teavita reeglite rikkumisest

Korraldaja vastus: 01.06.2017 09:27

Tere,<br />
<br />
Tuuletõkkeplaadid on paigaldatud sisevooderdisena/viimistlusena tubade seintele. Koridoriosa, vannituba ja wc on üle löödud püssi plaadiga.<br />
<br />
Vabandan kaheti mõistetava kirjelduse pärast.

Teavita reeglite rikkumisest

Lisa küsimus

Lisa küsimus

Minu pakkumine

Reeglid

Pakkumise kirjelduse väli on mõeldud pakkumise detailsemaks lahti kirjutamiseks. Pikema teksti mugavaks sisestamiseks klikkige kasti paremal ülaservas oleval ikoonil.
Pakkumist tehes on keelatud postitada enda kontaktandmeid (nimi, telefon, aadress jne). Me jälgime ja analüüsime pakkumisi, et vältida pettuseid ja reeglite rikkumisi.
Rikkumise puhul kasutajakonto blokeeritakse.

 

Teisi töid samas valdkonnas

Valdkonnas "Lammutustööd" on 7 aktiivset tööd

Keldri bokside ja elektri eemaldamine

Asukoht: Tartumaa, Tartu
Aega jäänud: 1p 3h
Tehtud pakkumisi: 14

Aia lammutus

Asukoht: Harjumaa, Tallinn
Aega jäänud: 1p 3h
Tehtud pakkumisi: 12

Vanemad teated:

Vaata kõiki

Sellel veebilehel kasutatakse küpsiseid. Kasutamist jätkates nõustute küpsiste kasutamisega.

Sulge
 
Minu pakkumine

Reeglid

Pakkumise kirjelduse väli on mõeldud pakkumise detailsemaks lahti kirjutamiseks. Pikema teksti mugavaks sisestamiseks klikkige kasti paremal ülaservas oleval ikoonil.
Pakkumist tehes on keelatud postitada enda kontaktandmeid (nimi, telefon, aadress jne). Me jälgime ja analüüsime pakkumisi, et vältida pettuseid ja reeglite rikkumisi.
Rikkumise puhul kasutajakonto blokeeritakse.