+ Lisa oma töö      

Otsid ehitajat "Projekteerimine" valdkonnast?

Parima pakkumise ja teostaja leidmiseks lisa oma töö.

Väikese korteri kütte ja ventilatsiooniprojekt

ID 40052

1743 vaatamist

Prindi

  • check Pakkumiste tegemine
    kuni 17.06.2017
  • check Võitja valik kuni
    24.06.2017
  • 3 Töö teostamine
    ja hinnang
Hanke lõpp: L, 17. juuni, 2017
Maakond: Tartumaa
Linn: Tartu
Tööde algus: L, 17. juuni, 2017 (Soovituslik)
Tööde lõpp: R, 30. juuni, 2017 (Soovituslik)
Ehitusmaterjalid: Töö tellija poolt

Töö sisu

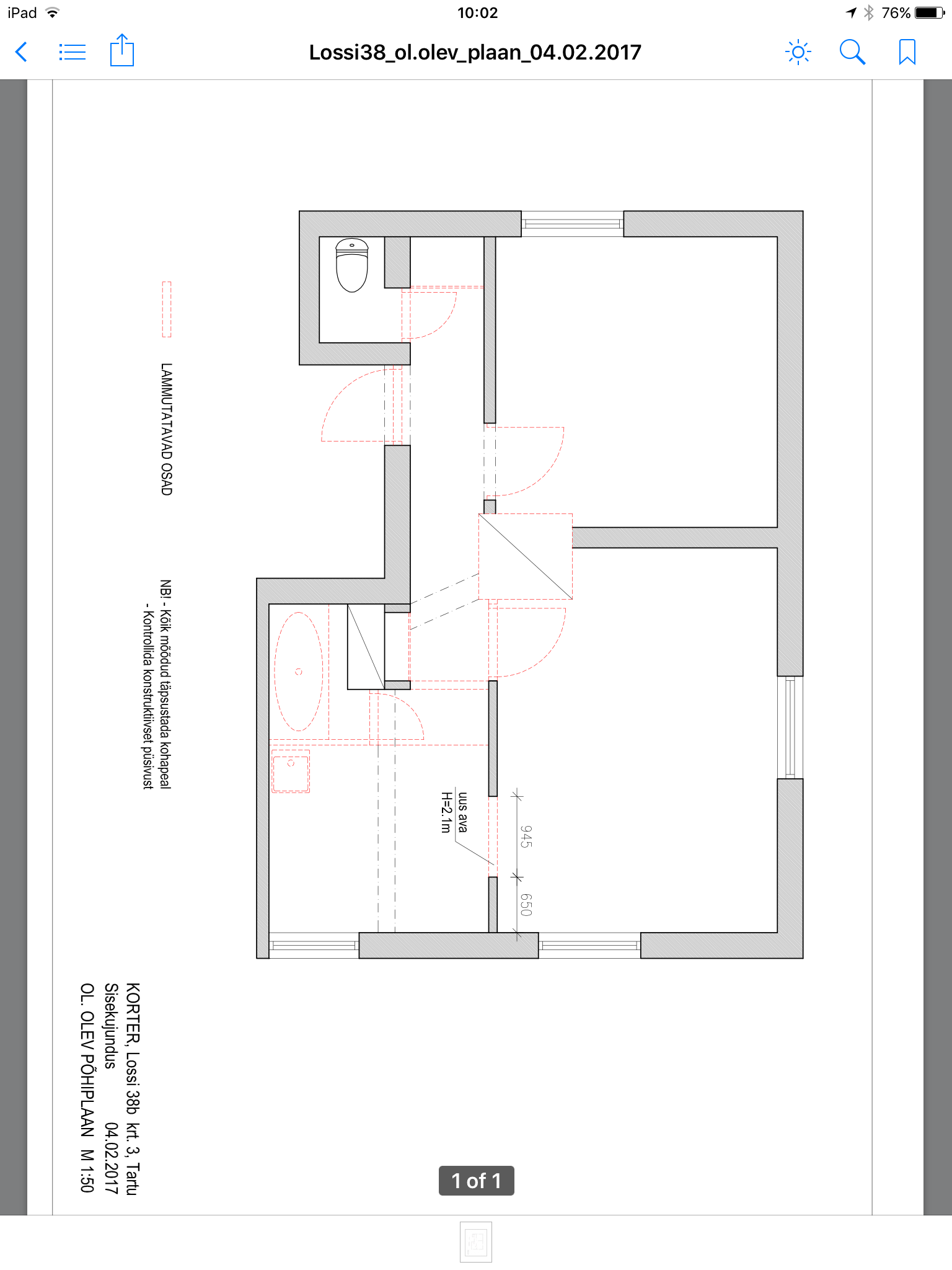
Plaanis on renoveerida korter Tartus muinsuskaitse piirkonnas olevas puumajas. Ahi on kavas asendada kaugküttega. Vaja oleks projekteerida korteri kütteprojekt. Tubadesse radiaatorid ja vannitppa põrandaküte. Soojussõlm tuleb maja keldrisse.
Korteri aknad on renoveerimisel. Oleks vaja ka ventilatsiooniprojekti, koos optimaalse ventilatsiooni soovitusega. Võimalik on kasutada pööningut (kütmata)
Korter on 38m2, kaks tuba, köök ja esik on kõik eraldi.
Teretulnud on ka soovitused parimate seadmete ja lahenduste valikul.

Pildid, video ja failid

Hanke korraldaja: eraisik ID45047

Pakkumised

Pakkumisi kokku: 0

Küsimused hanke korraldajale

Hanke korraldajale ei ole veel küsimusi esitatud.

Lisa küsimus

Lisa küsimus

Minu pakkumine

Reeglid

Pakkumise kirjelduse väli on mõeldud pakkumise detailsemaks lahti kirjutamiseks. Pikema teksti mugavaks sisestamiseks klikkige kasti paremal ülaservas oleval ikoonil.
Pakkumist tehes on keelatud postitada enda kontaktandmeid (nimi, telefon, aadress jne). Me jälgime ja analüüsime pakkumisi, et vältida pettuseid ja reeglite rikkumisi.
Rikkumise puhul kasutajakonto blokeeritakse.

 

Teisi töid samas valdkonnas

Valdkonnas "Projekteerimine" on 8 aktiivset tööd

Ehitusprojekt 129 m2 abihoone ümberehitamiseks ja suurendamiseks

Asukoht: Jõgevamaa, Pikknurme
Aega jäänud: 1p 5h
Tehtud pakkumisi: 5

no-img Pilt puudub

Korteri mõõdistusprojekt

Asukoht: Harjumaa, Tallinn
Aega jäänud: 1p 5h
Tehtud pakkumisi: 3

Vanemad teated:

Vaata kõiki

Sellel veebilehel kasutatakse küpsiseid. Kasutamist jätkates nõustute küpsiste kasutamisega.

Sulge
 
Minu pakkumine

Reeglid

Pakkumise kirjelduse väli on mõeldud pakkumise detailsemaks lahti kirjutamiseks. Pikema teksti mugavaks sisestamiseks klikkige kasti paremal ülaservas oleval ikoonil.
Pakkumist tehes on keelatud postitada enda kontaktandmeid (nimi, telefon, aadress jne). Me jälgime ja analüüsime pakkumisi, et vältida pettuseid ja reeglite rikkumisi.
Rikkumise puhul kasutajakonto blokeeritakse.