+ Lisa oma töö      

Otsid ehitajat "Tänavakivide paigaldus" valdkonnast?

Parima pakkumise ja teostaja leidmiseks lisa oma töö.

Kõnniteekivide paigaldus 116 ruutu

ID 40297

3845 vaatamist

Prindi

  • check Pakkumiste tegemine
    kuni 22.07.2017
  • check Võitja valik kuni
    29.07.2017
  • 3 Töö teostamine
    ja hinnang
Hanke lõpp: L, 22. juuli, 2017
Maakond: Harjumaa
Tööde algus: E, 26. juuni, 2017 (Soovituslik)
Tööde lõpp: L, 30. september, 2017 (Soovituslik)
Ehitusmaterjalid: Töö tegija poolt

Töö sisu

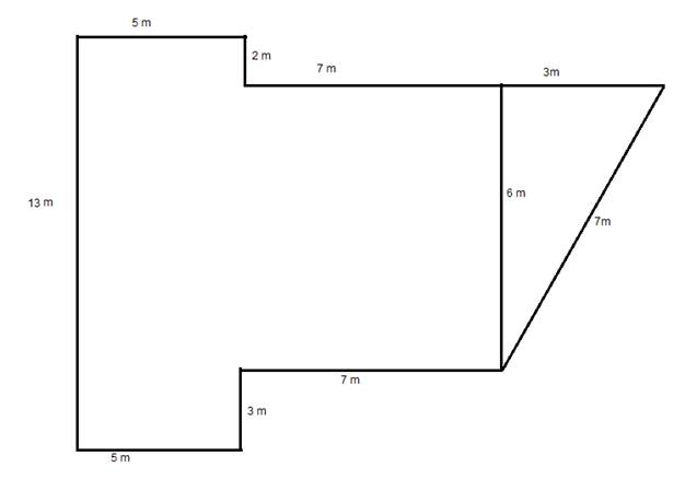
Eramaja esine plats, erikujuline, kokku 116 ruutmeetrit. Sooviks tumehalle ristkülikukujulisi kive.

Pildid, video ja failid

Hanke korraldaja: eraisik ID28641

Pakkumised

Pakkumisi kokku: 8

Ettevõte Summa Käibemaks Lisatud Vestlus
Kasutaja ikoon ID34237
Pakkuja profiil Väike nool paremale
3 720€ Ei sisalda Ei sisalda 26.06.2017 Vestlus (0)

Pakkumise kirjeldus:

Killustik aluse korrigeerimine (5-/m2) 580.-; äärekivi (1000*200*80) hankimine ja paigaldus betooniga (14.-/jm) 588.-; sillutiskivi Nunna (60mm, hall) hankimine ja paigaldus liivast sängituskihile (22.-/m2) 2552.-; Kui kohapeal selgub et aluspind tuleb välja kaevata ja teha uus killustik alus siis lisandub hinnale vastavalt 6.-/m2 väljakaevamine ja kill ... Rohkem

Kasutaja ikoon ID39236
Pakkuja profiil Väike nool paremale
3 300€ Ei sisalda Ei sisalda 27.06.2017 Vestlus (0)

Pakkumise kirjeldus:

Tere.

Hinnapakkumine soovitud tööle koos materjalidega. Äärekivi lisandumisel hind 11€/ jm.

Lugupidamisega,
Robert

Kasutaja ikoon ID38499
Pakkuja profiil Väike nool paremale
3 250€ Ei sisalda Ei sisalda 27.06.2017 Vestlus (0)

Pakkumise kirjeldus:

Tere! Pakkumine sisaldab killustikaluse viimist õigele kõrgusele (pealmise kihi mahakoorimist). Halli Taloti (kvaliteetne tootja) Nunnakivi paigaldust liivale või paekivisõelmetele. Kui mõtlesite tumehalli kivi all musta, siis lisandub 1,5.- eur m2 kohta. Halli toone on ainult üks ja see on suht hele. Lisandub äärekivi paigalduse hind 10.- jm (kõnn ... Rohkem

Kasutaja ikoon ID42545
Pakkuja profiil Väike nool paremale
2 895€ Ei sisalda Ei sisalda 01.07.2017 Vestlus (0)

Pakkumise kirjeldus:

Ol.ol. aluse tasandus ja tihendamine, äärekivi ja tänavakivide paigaldus.

Kasutaja ikoon ID42201
Pakkuja profiil Väike nool paremale
123€ Ei sisalda Ei sisalda 06.07.2017 Vestlus (2)

Pakkumise kirjeldus:

Tere,

Tänavakivi paigaldus koos tänavakiviga 24 eur/m2
(Tänavakivi Rae Nunnakivi I sort 210x105x60mm)

Äärekivi paigaldus koos äärekiviga 14 eur/jm
(Väike Äärekivi Rae 500x60x130 mm. Hall, must, punane, pruun)

Ettevõtte meeskonnal on kogemust antud alal 10 aastat ... Rohkem

Kasutaja ikoon ID43380
Pakkuja profiil Väike nool paremale
33€ Sisaldab KM Sisaldab KM 17.07.2017 Vestlus (0)

Pakkumise kirjeldus:

Pakkume Teile meie ettevõtte teenusi.
Hind sisaldab kõik vajaliku materjaale ning töö tasu.Lisa tasu ei tule.Meie poolt tuleb EV ettenähtud garantii, töövõtulepping,korralikult tehtud tööd nagu endale!!!
Ehituse järgne koristuse tööd ja ehituse jääke utiliseerimine.
Lugupidamisega
ID:43380 Meeskond

Kasutaja ikoon ID45682
Pakkuja profiil Väike nool paremale
4 859,5€ Sisaldab KM Sisaldab KM 20.07.2017 Vestlus (0)

Pakkumise kirjeldus:

sisaldab töö, materjal, mehhanismid

Kasutaja ikoon ID12023
Pakkuja profiil Väike nool paremale
3 835€ Ei sisalda Ei sisalda 22.07.2017 Vestlus (0)

Pakkumise kirjeldus:

Hind sisaldab kõiki materjale, ka äärekivi ja tööd

Küsimused hanke korraldajale

Küsimus: private ID38499   22.06.2017 22:00
Tere! Millest aluspõhi koosneb? Pildi järgi tundub, et peal on mingi kiht peenemat killustikku? Kas peab arvestama kogu platsi ulatuses väljakaevega või on piisava paksusega kandekiht killustikust olemas?

Teavita reeglite rikkumisest

Korraldaja vastus: 25.06.2017 20:40

Tere. Peal on jah peenemat sorti killustik. Kandekiht on küll olemas, aga tõenäoliselt on mingi osa sellest praegu veidi kõrge.

Teavita reeglite rikkumisest

Küsimus: private ID30781   25.06.2017 17:59
Tere,<br />
<br />
Kas äärde paigaldatakse äärekivi ka?

Teavita reeglite rikkumisest

Korraldaja vastus: 25.06.2017 20:38

Jah, umbes pooles ulatuses on äärekivi ka vaja (v.a maja äär, sinna vist ei panda?)

Teavita reeglite rikkumisest

Lisa küsimus

Lisa küsimus

Minu pakkumine

Reeglid

Pakkumise kirjelduse väli on mõeldud pakkumise detailsemaks lahti kirjutamiseks. Pikema teksti mugavaks sisestamiseks klikkige kasti paremal ülaservas oleval ikoonil.
Pakkumist tehes on keelatud postitada enda kontaktandmeid (nimi, telefon, aadress jne). Me jälgime ja analüüsime pakkumisi, et vältida pettuseid ja reeglite rikkumisi.
Rikkumise puhul kasutajakonto blokeeritakse.

 

Teisi töid samas valdkonnas

Valdkonnas "Tänavakivide paigaldus" on 12 aktiivset tööd

Olemasoleva sillutise uuendamine

Asukoht: Harjumaa, Tallinn
Aega jäänud: 3p 3h
Tehtud pakkumisi: 6

Tänavakivide vahetus

Asukoht: Harjumaa, Tallinn
Aega jäänud: 1p 3h
Tehtud pakkumisi: 4

Vanemad teated:

Vaata kõiki

Sellel veebilehel kasutatakse küpsiseid. Kasutamist jätkates nõustute küpsiste kasutamisega.

Sulge
 
Minu pakkumine

Reeglid

Pakkumise kirjelduse väli on mõeldud pakkumise detailsemaks lahti kirjutamiseks. Pikema teksti mugavaks sisestamiseks klikkige kasti paremal ülaservas oleval ikoonil.
Pakkumist tehes on keelatud postitada enda kontaktandmeid (nimi, telefon, aadress jne). Me jälgime ja analüüsime pakkumisi, et vältida pettuseid ja reeglite rikkumisi.
Rikkumise puhul kasutajakonto blokeeritakse.