+ Lisa oma töö      

Otsid ehitajat "Projekteerimine" valdkonnast?

Parima pakkumise ja teostaja leidmiseks lisa oma töö.

Maja projekt

ID 40458

14596 vaatamist

Prindi

  • check Pakkumiste tegemine
    kuni 23.07.2017
  • check Võitja valik kuni
    30.07.2017
  • 3 Töö teostamine
    ja hinnang
Hanke lõpp: P, 23. juuli, 2017
Maakond: Tartumaa
Muu asula: Märja
Tööde algus: E, 24. juuli, 2017 (Soovituslik)
Tööde lõpp: E, 14. august, 2017 (Soovituslik)
Ehitusmaterjalid: Töö tegija poolt

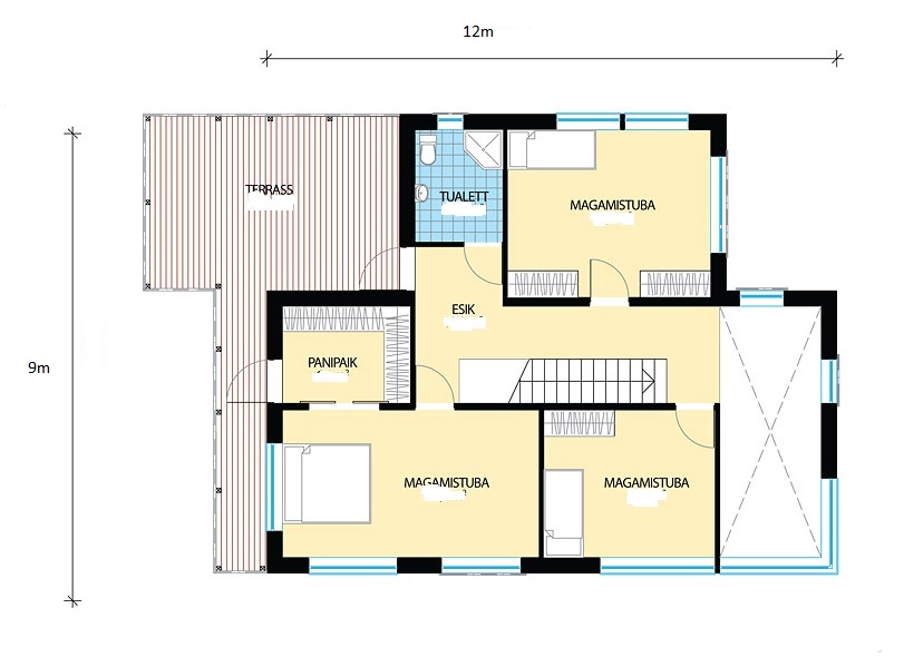
Töö sisu

Sooviks projekti hinda maja 2 korrust kogupind 120-160 m2 alljärgnevas koosseisus:
Seletuskiri
Energiaarvutused
Energiamärgise koostamine
Asendiplaan
Vundamendi ja korruse plaanid
Vundamendi ja hoone lõige
Välisvaated värvilahendustega
Avatäidete spetsifikatsioonid
Piirdeaia joonis
Tehnosüsteemid
Kooskõlastused ehitusloa saamiseks
Ehitusloa hange kov.

Pildid, video ja failid

Hanke korraldaja: eraisik ID24127

Pakkumised

Pakkumisi kokku: 5

Ettevõte Summa Käibemaks Lisatud Vestlus
Kasutaja ikoon ID40011
Pakkuja profiil Väike nool paremale
4 160€ Sisaldab KM Sisaldab KM 10.07.2017 Vestlus (2)

Pakkumise kirjeldus:

Hind elamu eelprojektile + tehnosüsteemide ( eriosade projektid )

eriosade projektid:
1. vesi+kanal
2. elekter+ nv.
3. küte+ ventilatsioon

Pakkumine sisaldab geo-alusplaani ja riigilõivu ehitusloa taotlemise eest.

Pakkumine ei sisalda eriosade projekteerimisega kaasnevaid võimalikke kooskõlastustasusi võrguvaldajatega.

Kasutaja ikoon ID38306
Pakkuja profiil Väike nool paremale
4 000€ Ei sisalda Ei sisalda 13.07.2017 Vestlus (2)

Pakkumise kirjeldus:

arhitektuurne ja eriosad põhiprojekti staadiumis, projektijuhtimine, loa taotlemine kogenud spetsialistide poolt. Kestus ca 3 kuud

Kasutaja ikoon ID35173
Pakkuja profiil Väike nool paremale
3 900€ Ei sisalda Ei sisalda 17.07.2017 Vestlus (1)
Kasutaja ikoon ID39945
Pakkuja profiil Väike nool paremale
1 750€ Sisaldab KM Sisaldab KM 17.07.2017 Vestlus (2)

Pakkumise kirjeldus:

Pakkumine sisaldab projekti ehitusloa taotlemiseks vajalikus mahus koos meiepoolsete kõikide kooskõlastustega, asjaajamistega.
Projekt sisaldab kõik, mis on ette nähtud ehitusprojektis ehitusloa saamiseks, s.t. ehitise arhitektuurne ning konstruktiivne lahendus, asendiplaan; korrusteplaanid, vaated ja lõiked; vundamendi plaan; spetsifikatsioonid, krun ... Rohkem

Kasutaja ikoon ID43378
Pakkuja profiil Väike nool paremale
3 400€ Ei sisalda Ei sisalda 18.07.2017 Vestlus (3)

Pakkumise kirjeldus:

Arhitektuurne+konstruktiivne eelprojekt ehitusloa saamiseks + eriosad põhiprojekti mahus.
Muud osad kokkulepel

Küsimused hanke korraldajale

Hanke korraldajale ei ole veel küsimusi esitatud.

Lisa küsimus

Lisa küsimus

Minu pakkumine

Reeglid

Pakkumise kirjelduse väli on mõeldud pakkumise detailsemaks lahti kirjutamiseks. Pikema teksti mugavaks sisestamiseks klikkige kasti paremal ülaservas oleval ikoonil.
Pakkumist tehes on keelatud postitada enda kontaktandmeid (nimi, telefon, aadress jne). Me jälgime ja analüüsime pakkumisi, et vältida pettuseid ja reeglite rikkumisi.
Rikkumise puhul kasutajakonto blokeeritakse.

 

Teisi töid samas valdkonnas

Valdkonnas "Projekteerimine" on 8 aktiivset tööd

Ehitusprojekt 129 m2 abihoone ümberehitamiseks ja suurendamiseks

Asukoht: Jõgevamaa, Pikknurme
Aega jäänud: 1p 4h
Tehtud pakkumisi: 5

no-img Pilt puudub

Korteri mõõdistusprojekt

Asukoht: Harjumaa, Tallinn
Aega jäänud: 1p 4h
Tehtud pakkumisi: 3

Vanemad teated:

Vaata kõiki

Sellel veebilehel kasutatakse küpsiseid. Kasutamist jätkates nõustute küpsiste kasutamisega.

Sulge
 
Minu pakkumine

Reeglid

Pakkumise kirjelduse väli on mõeldud pakkumise detailsemaks lahti kirjutamiseks. Pikema teksti mugavaks sisestamiseks klikkige kasti paremal ülaservas oleval ikoonil.
Pakkumist tehes on keelatud postitada enda kontaktandmeid (nimi, telefon, aadress jne). Me jälgime ja analüüsime pakkumisi, et vältida pettuseid ja reeglite rikkumisi.
Rikkumise puhul kasutajakonto blokeeritakse.