+ Lisa oma töö      

Otsid ehitajat "Projekteerimine" valdkonnast?

Parima pakkumise ja teostaja leidmiseks lisa oma töö.

Vee-ja kanalisatsioonitorustike projekteerimine.

ID 40862

2647 vaatamist

Prindi

  • check Pakkumiste tegemine
    kuni 12.08.2017
  • check Võitja valik kuni
    26.08.2017
  • 3 Töö teostamine
    ja hinnang
Hanke lõpp: L, 12. august, 2017
Maakond: Läänemaa
Linn: Haapsalu
Tööde algus: E, 14. august, 2017 (Soovituslik)
Tööde lõpp: P, 27. august, 2017 (Soovituslik)
Ehitusmaterjalid: Töö tellija poolt

Töö sisu

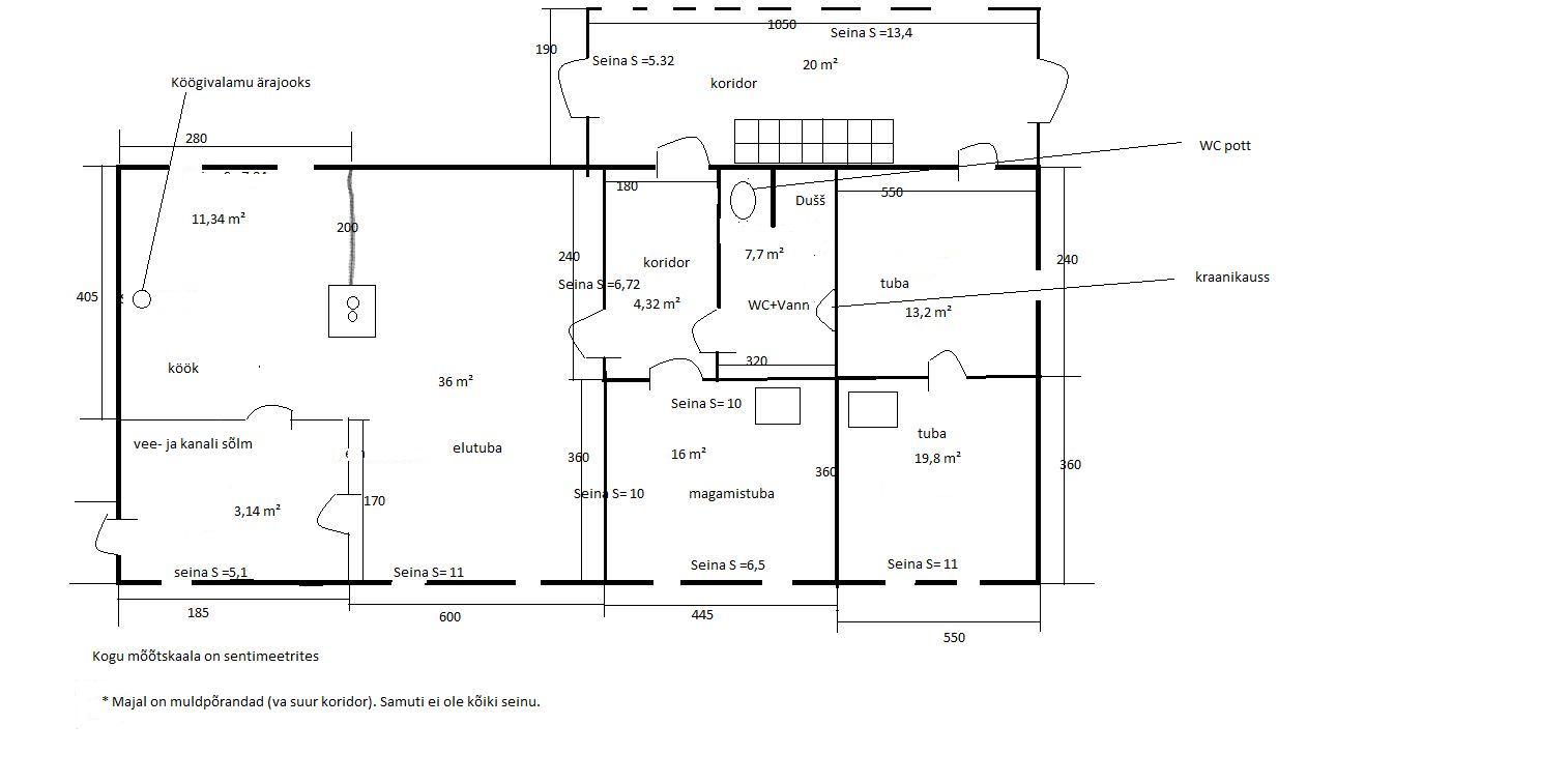
Vee-ja kanalisatsioonitorustike projekteerimine, kinnistule Kalevi 18, Haapsalu, vastavalt Haapsalu veevärk poolt esitatud projekteerimistingimustele.
Pakkumises palume välja tuua muuhulgas tööde teostamise tähtaeg.

Pildid, video ja failid

Hanke korraldaja: eraisik ID45917

Pakkumised

Pakkumisi kokku: 1

Ettevõte Summa Käibemaks Lisatud Vestlus
Kasutaja ikoon ID38306
Pakkuja profiil Väike nool paremale
1 500€ Ei sisalda Ei sisalda 10.08.2017 Vestlus (1)

Pakkumise kirjeldus:

Vee- ja kanalisatsioonisüsteemi ehitusprojekt põhiprojekti staadiumile, kestus 3-4 nädalat.

Küsimused hanke korraldajale

Küsimus: private ID36670   11.08.2017 09:45
Tere, <br />
<br />
Kas hoonest on ka DWG joonis olemas? Kas vaja projekteerida nii siseosa kui välisosa?

Teavita reeglite rikkumisest

Korraldaja vastus:
Hanke korraldaja ei ole küsimusele veel vastanud

Lisa küsimus

Lisa küsimus

Minu pakkumine

Reeglid

Pakkumise kirjelduse väli on mõeldud pakkumise detailsemaks lahti kirjutamiseks. Pikema teksti mugavaks sisestamiseks klikkige kasti paremal ülaservas oleval ikoonil.
Pakkumist tehes on keelatud postitada enda kontaktandmeid (nimi, telefon, aadress jne). Me jälgime ja analüüsime pakkumisi, et vältida pettuseid ja reeglite rikkumisi.
Rikkumise puhul kasutajakonto blokeeritakse.

 

Teisi töid samas valdkonnas

Valdkonnas "Projekteerimine" on 8 aktiivset tööd

Ehitusprojekt 129 m2 abihoone ümberehitamiseks ja suurendamiseks

Asukoht: Jõgevamaa, Pikknurme
Aega jäänud: 1p 1h
Tehtud pakkumisi: 5

no-img Pilt puudub

Korteri mõõdistusprojekt

Asukoht: Harjumaa, Tallinn
Aega jäänud: 1p 1h
Tehtud pakkumisi: 3

Vanemad teated:

Vaata kõiki

Sellel veebilehel kasutatakse küpsiseid. Kasutamist jätkates nõustute küpsiste kasutamisega.

Sulge
 
Minu pakkumine

Reeglid

Pakkumise kirjelduse väli on mõeldud pakkumise detailsemaks lahti kirjutamiseks. Pikema teksti mugavaks sisestamiseks klikkige kasti paremal ülaservas oleval ikoonil.
Pakkumist tehes on keelatud postitada enda kontaktandmeid (nimi, telefon, aadress jne). Me jälgime ja analüüsime pakkumisi, et vältida pettuseid ja reeglite rikkumisi.
Rikkumise puhul kasutajakonto blokeeritakse.