+ Lisa oma töö      

Otsid ehitajat "Betoonitööd" valdkonnast?

Parima pakkumise ja teostaja leidmiseks lisa oma töö.

Vahelae betoneerimine

ID 40990

4784 vaatamist

Prindi

  • check Pakkumiste tegemine
    kuni 04.09.2017
  • check Võitja valik kuni
    11.09.2017
  • 3 Töö teostamine
    ja hinnang
Hanke lõpp: E, 4. september, 2017
Maakond: Harjumaa
Muu asula: Rae vald
Tööde algus: E, 11. september, 2017 (Soovituslik)
Tööde lõpp: P, 17. september, 2017 (Soovituslik)
Ehitusmaterjalid: Töö tegija poolt

Töö sisu

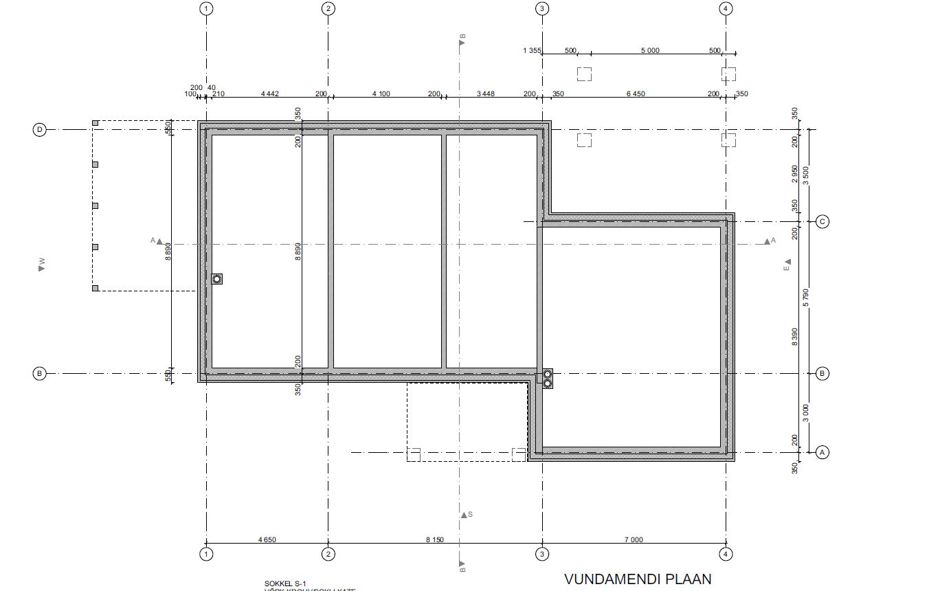
Vajalik rajada elamu betoon vahelagi 125 - 135m2 ainult elamus osa, garaazi osa pole vaja, Patika külas Rae vallas. Vahelagi peab olema suuteline kandma pärast veel põrandakütte 7cm paksust betooni. Joonisel märgitud vaheseinad on ka kandvad seinad ja rajatud korraliku taldmiku peale. Hinnapakkumist soovin saada kogu tööle (kus sees nii kogu vajaminev tehnika kui transport objektile), betooni hind välja tuua eraldi selgituses.

Pildid, video ja failid

Hanke korraldaja: eraisik ID43716

Pakkumised

Pakkumisi kokku: 2

Ettevõte Summa Käibemaks Lisatud Vestlus
Kasutaja ikoon ID36202
Pakkuja profiil Väike nool paremale
18 200€ Ei sisalda Ei sisalda 03.09.2017 Vestlus (0)

Pakkumise kirjeldus:

Tere.Hinnapakkumine sisaldab kõiki antud tööks vajaminevaid raketisi ,transporti ,betooni ja tööd.Võime teha ka põranda valu koos soojustuse paigaldusega ja kütte toru paigalduse ,kui sobib.Hind ei ole lõplik .Selleks et saaks teha lõpliku hinna ,peaks objektil kokku saama ning tutvuma olukorraga.

Kasutaja ikoon ID40816
Pakkuja profiil Väike nool paremale
17 000€ Ei sisalda Ei sisalda 03.09.2017 Vestlus (0)

Pakkumise kirjeldus:

Tere!

Küsimused hanke korraldajale

Küsimus: private ID38464   22.08.2017 12:09
Armeeringu joonist?

Teavita reeglite rikkumisest

Korraldaja vastus: 22.08.2017 20:55

Tere, vabandan unustasin kiirustades kirja panna, et armeeringu joonis tuleks samuti teha ja peale tööde lõppu üleanda omanikule. Selle joonestamise hinna võiks eraldi välja tuua. Maja ise 1.5 korrust ja kandvad seinad on FIBO 250 5MPA, kandvad vaheseinad 200 5MPA. Hetkel avastasin, et Joonised.pdf väga halva kvaliteediga panen uue. Hetkel väga raske näha avatud lage sissekäigu juures, kuhu siis pole vaja betooni kallata. Lugupidamisega.

Teavita reeglite rikkumisest

Lisa küsimus

Lisa küsimus

Minu pakkumine

Reeglid

Pakkumise kirjelduse väli on mõeldud pakkumise detailsemaks lahti kirjutamiseks. Pikema teksti mugavaks sisestamiseks klikkige kasti paremal ülaservas oleval ikoonil.
Pakkumist tehes on keelatud postitada enda kontaktandmeid (nimi, telefon, aadress jne). Me jälgime ja analüüsime pakkumisi, et vältida pettuseid ja reeglite rikkumisi.
Rikkumise puhul kasutajakonto blokeeritakse.

 

Teisi töid samas valdkonnas

Valdkonnas "Betoonitööd" on 2 aktiivset tööd

Kasvuhoone vundamnet

Asukoht: Tartumaa, Tartu
Aega jäänud: 3h 12 min
Tehtud pakkumisi: 1

no-img Pilt puudub

Betoonplats aeda

Asukoht: Harjumaa, Tallinn
Aega jäänud: 1p 3h
Tehtud pakkumisi: 0

Vanemad teated:

Vaata kõiki

Sellel veebilehel kasutatakse küpsiseid. Kasutamist jätkates nõustute küpsiste kasutamisega.

Sulge
 
Minu pakkumine

Reeglid

Pakkumise kirjelduse väli on mõeldud pakkumise detailsemaks lahti kirjutamiseks. Pikema teksti mugavaks sisestamiseks klikkige kasti paremal ülaservas oleval ikoonil.
Pakkumist tehes on keelatud postitada enda kontaktandmeid (nimi, telefon, aadress jne). Me jälgime ja analüüsime pakkumisi, et vältida pettuseid ja reeglite rikkumisi.
Rikkumise puhul kasutajakonto blokeeritakse.