+ Lisa oma töö      

Otsid ehitajat "Ehitusprojektid" valdkonnast?

Parima pakkumise ja teostaja leidmiseks lisa oma töö.

Juurdeehituse projekt

ID 4117

3899 vaatamist

Prindi

  • check Pakkumiste tegemine
    kuni 21.05.2007
  • check Võitja valik kuni
    28.05.2007
  • 3 Töö teostamine
    ja hinnang
Hanke lõpp: E, 21. mai, 2007
Maakond: Tartumaa
Muu asula: Ihaste
Tööde algus: R, 01. juuni, 2007 (Soovituslik)
Tööde lõpp: P, 24. mai, 2026 (Soovituslik)
Ehitusmaterjalid: Töö tellija poolt

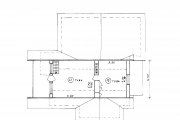
Töö sisu

Eramaja garaašipealse juurdeehituse projekteerimine.

Pildid, video ja failid

Hanke korraldaja: eraisik ID6069

Pakkumised

Pakkumisi kokku: 2

Ettevõte Summa Käibemaks Lisatud Vestlus
Kasutaja ikoon ID2768
Pakkuja profiil Väike nool paremale
958,7€ Sisaldab KM Sisaldab KM 07.05.2007 Vestlus (0)
Kasutaja ikoon ID4681
Pakkuja profiil Väike nool paremale
1 150,4€ Sisaldab KM Sisaldab KM 15.05.2007 Vestlus (0)

Pakkumise kirjeldus:

Projekt ehitusloa taotlemiseks vajalikus mahus.

Küsimused hanke korraldajale

Küsimus: private ID4681   07.05.2007 21:12
Milliseid ruume soovite garaaži peale ehitada? Kas projekteerimistingimused on olemas? Kas saaksite projekteerimistingimused siia üles panna?

Teavita reeglite rikkumisest

Korraldaja vastus: 24.05.2026 23:10

Garaaži peale plaan teha elutuba. Projekteerimistingimused hiljemalt pooleteise nädala pärast.

Teavita reeglite rikkumisest

Küsimus: private ID4681   08.05.2007 10:22
Tere! Pange kuulutus ka muudesse allikatesse üles. Ehitus24_ee ja ehitusabi_ee alla näiteks, siis saate rohkem tulemusi ning kiiremalt lepinguni.

Teavita reeglite rikkumisest

Korraldaja vastus: 24.05.2026 23:10

Tänud!

Teavita reeglite rikkumisest

Lisa küsimus

Lisa küsimus

Minu pakkumine

Reeglid

Pakkumise kirjelduse väli on mõeldud pakkumise detailsemaks lahti kirjutamiseks. Pikema teksti mugavaks sisestamiseks klikkige kasti paremal ülaservas oleval ikoonil.
Pakkumist tehes on keelatud postitada enda kontaktandmeid (nimi, telefon, aadress jne). Me jälgime ja analüüsime pakkumisi, et vältida pettuseid ja reeglite rikkumisi.
Rikkumise puhul kasutajakonto blokeeritakse.

 

Teisi töid samas valdkonnas

Valdkonnas "Ehitusprojektid" on 6 aktiivset tööd

Eramu renoveerimisprojekt

Asukoht: Pärnumaa, Pärnu
Aega jäänud: 1p
Tehtud pakkumisi: 4

no-img Pilt puudub

Kortermaja kõigi ruumide mõõdistamine ja DWG faili koostamine

Asukoht: Harjumaa, Tallinn
Aega jäänud: 49 min
Tehtud pakkumisi: 4

Vanemad teated:

Vaata kõiki

Sellel veebilehel kasutatakse küpsiseid. Kasutamist jätkates nõustute küpsiste kasutamisega.

Sulge
 
Minu pakkumine

Reeglid

Pakkumise kirjelduse väli on mõeldud pakkumise detailsemaks lahti kirjutamiseks. Pikema teksti mugavaks sisestamiseks klikkige kasti paremal ülaservas oleval ikoonil.
Pakkumist tehes on keelatud postitada enda kontaktandmeid (nimi, telefon, aadress jne). Me jälgime ja analüüsime pakkumisi, et vältida pettuseid ja reeglite rikkumisi.
Rikkumise puhul kasutajakonto blokeeritakse.