+ Lisa oma töö      

Otsid ehitajat "Müüritööd" valdkonnast?

Parima pakkumise ja teostaja leidmiseks lisa oma töö.

Müüritööd Texoblock Saku vallas

ID 41205

3763 vaatamist

Prindi

  • check Pakkumiste tegemine
    kuni 12.09.2017
  • check Võitja valik kuni
    19.09.2017
  • 3 Töö teostamine
    ja hinnang
Hanke lõpp: T, 12. september, 2017
Maakond: Harjumaa
Muu asula: Saku vald, Rahula
Tööde algus: E, 25. september, 2017 (Soovituslik)
Tööde lõpp: E, 16. oktoober, 2017 (Soovituslik)
Ehitusmaterjalid: Töö tellija poolt

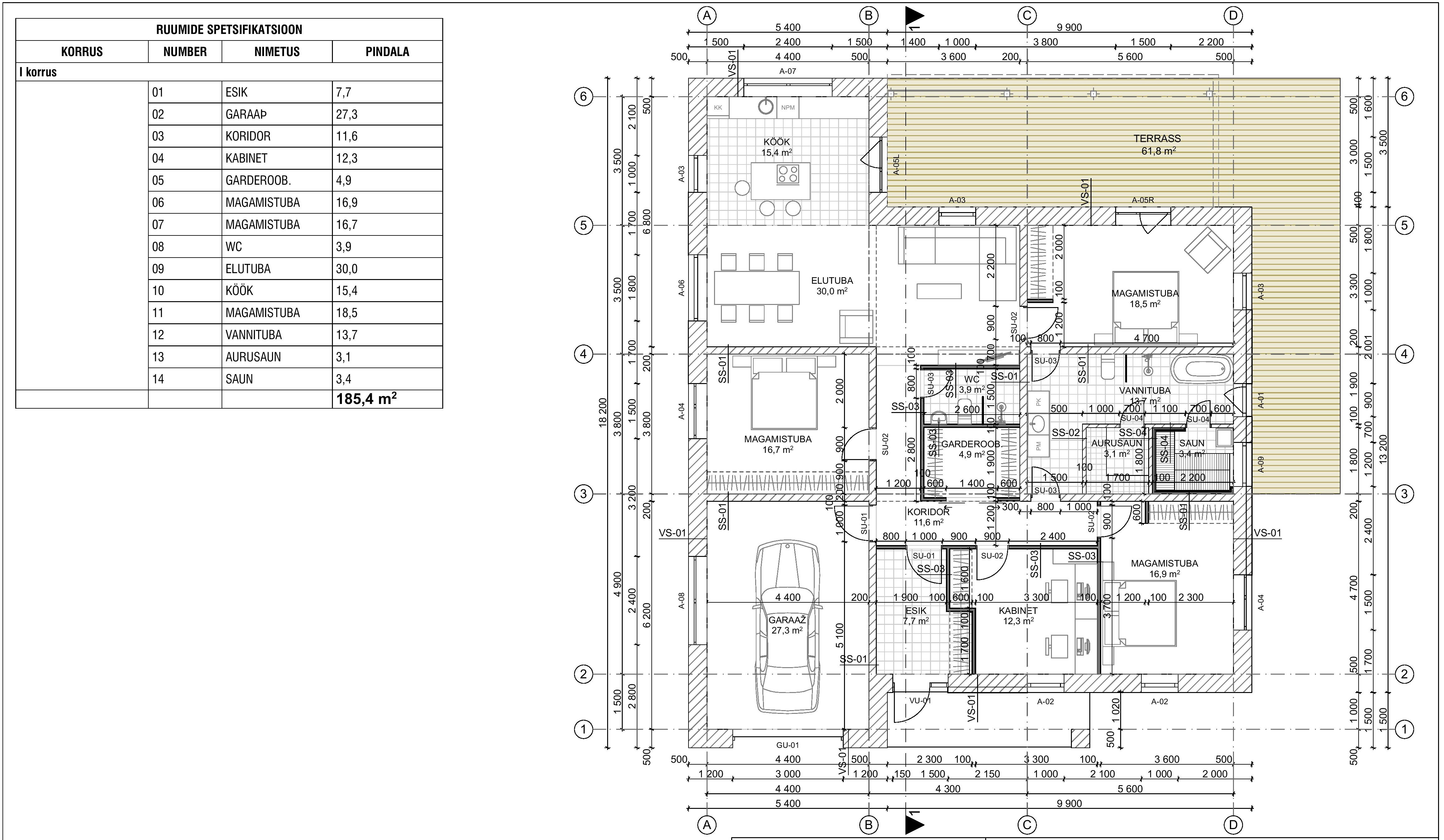
Töö sisu

Tegemist on 1.korruselise eramajaga Saku vallas. Eeldatav kogus on järgnev:
Texoblock Grand Pluss 400 - 1738 tk
TexoBLOCK U-Bridge 400 - 215 tk
TexoBLOCK Standard 200 - 1270 tk
TexoBLOCK U-Bridge 200 - 30 tk.
Pakkumine teha tööle, see tähendab, et materjali (plokid, liimi, biarmatuuri) tarnin ise.
Eeldatav töö algus on septembri lõpp.
Lisan manusena 1.korruse plaani ning lõike.
Hinna võib pakkuda kogusummana, kuid välja tuua ka tk või m2 hind.

Pildid, video ja failid

Hanke korraldaja: eraisik ID46174

Pakkumised

Pakkumisi kokku: 3

Ettevõte Summa Käibemaks Lisatud Vestlus
Kasutaja ikoon ID42519
Pakkuja profiil Väike nool paremale
16€ Ei sisalda Ei sisalda 09.09.2017 Vestlus (4)

Pakkumise kirjeldus:

Tervist, ruutmeetri hind,tellinguid ja koik vajalikud tööristad meie poolt.Lg vk

Kasutaja ikoon ID38730
Pakkuja profiil Väike nool paremale
16€ Ei sisalda Ei sisalda 10.09.2017 Vestlus (4)
Kasutaja ikoon ID45036
Pakkuja profiil Väike nool paremale
15€ Ei sisalda Ei sisalda 11.09.2017 Vestlus (4)

Pakkumise kirjeldus:

Pakun ruuduhinnaks 15 eurot. Töö kiire ja korralik. Kogemusi müüritöödel üle 20 aasta.

Küsimused hanke korraldajale

Hanke korraldajale ei ole veel küsimusi esitatud.

Lisa küsimus

Lisa küsimus

Minu pakkumine

Reeglid

Pakkumise kirjelduse väli on mõeldud pakkumise detailsemaks lahti kirjutamiseks. Pikema teksti mugavaks sisestamiseks klikkige kasti paremal ülaservas oleval ikoonil.
Pakkumist tehes on keelatud postitada enda kontaktandmeid (nimi, telefon, aadress jne). Me jälgime ja analüüsime pakkumisi, et vältida pettuseid ja reeglite rikkumisi.
Rikkumise puhul kasutajakonto blokeeritakse.

 

Teisi töid samas valdkonnas

Valdkonnas "Müüritööd" on 2 aktiivset tööd

Telliskivi seina taastamine, ehitus

Asukoht: Harjumaa, Kiisa
Aega jäänud: 2p 5h
Tehtud pakkumisi: 1

no-img Pilt puudub

Kivimaster

Asukoht: Harjumaa, Tallinn
Aega jäänud: 1p 5h
Tehtud pakkumisi: 0

Vanemad teated:

Vaata kõiki

Sellel veebilehel kasutatakse küpsiseid. Kasutamist jätkates nõustute küpsiste kasutamisega.

Sulge
 
Minu pakkumine

Reeglid

Pakkumise kirjelduse väli on mõeldud pakkumise detailsemaks lahti kirjutamiseks. Pikema teksti mugavaks sisestamiseks klikkige kasti paremal ülaservas oleval ikoonil.
Pakkumist tehes on keelatud postitada enda kontaktandmeid (nimi, telefon, aadress jne). Me jälgime ja analüüsime pakkumisi, et vältida pettuseid ja reeglite rikkumisi.
Rikkumise puhul kasutajakonto blokeeritakse.