+ Lisa oma töö      

Otsid ehitajat "Korterite remont" valdkonnast?

Parima pakkumise ja teostaja leidmiseks lisa oma töö.

Kahetoalise korteri osaline remont Tartu/Annelinn 3 korrus

ID 41238

4943 vaatamist

Prindi

  • check Pakkumiste tegemine
    kuni 26.09.2017
  • check Võitja valik kuni
    03.10.2017
  • 3 Töö teostamine
    ja hinnang
Hanke lõpp: T, 26. september, 2017
Maakond: Tartumaa
Linn: Tartu
Tööde algus: R, 29. september, 2017 (Soovituslik)
Tööde lõpp: T, 31. oktoober, 2017 (Soovituslik)
Ehitusmaterjalid: Töö tegija poolt

Töö sisu

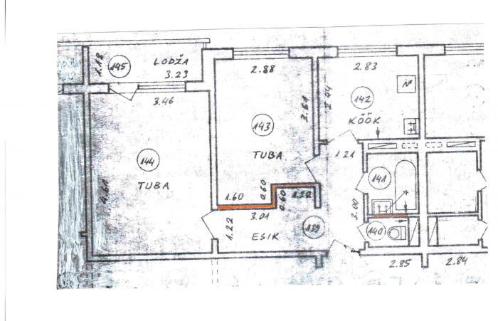
Rõdu suure toa poolne sein (joonisel nr.145 3.05x2.68m millest maha aken 2.30x1.20m)
1.Suure toa poole jääva seina katmine lisasoojustusega (näiteks Kooltherm K5 30mm või sarnane lahendus ) krohvimine ja valgeks värvimine)

Elutuba (joonisel nr.144 ligikaudu 4.80x3.43m kõrgus 2.60m)
1. Seinad: Olemasoleva seinakatte (tapeedi kihid) eemaldamine, pindade pahteldamine ja värvimine. (Seinad on paneel). Radiaatoritorude ja radiaatori puhastamine ning värvimine valgeks.
2. Lagi: pahteldamine ja värvimine valgeks.
3. Põrand: olemasoleva põranda lisakinnituskruvide paigaldus vajadusel (ei nagise ja ei vaju ) olemasolevate põrandaliistude eemaldamine. Paigaldada parketi aluskate ning laminaatparkett + põrandaliistude paigaldamine.
4. Avatäited: Aknapõskede pahteldamine ja värvimine, aknalaua vahetus. Olemasoleva toa ukse asendamine uue siseuksega koos lengidega samasse ukseavasse ja ukse ääreliistude paigaldus mõlemale poole. (olemasolev uks 0.8x2.03 lgikaudse avaga 0.9x2.07). Uksepakku ei jää. Võib olla ukse all liist.
5. Lisatööd: Ühe pistikupesa juurde paigaldus seina, mille jaoks ligikaudu 2m sirget sisselõiget teisest pesast. Osade üheste pistikupesade asendus kahestega.(lisatoosi freesimine kõrvale).
CAT 5 kaabli vedamine põrandaliistu vahelt televiisori jaoks sobivasse kohta.



Magamistuba (joonisel nr.143 2.85x4.25 kõrgus 2.60m)
1. Seinad: Olemasoleva seinakatte (tapeedi kihid) eemaldamine, pindade pahteldamine ja värvimine. (Seinad on paneel). Radiaatoritorude ja radiaatori puhastamine ning värvimine valgeks.
2. Lagi: pahteldamine ja värvimine valgeks.
3. Põrand: olemasoleva põranda lisakinnituskruvide paigaldus vajadusel (ei nagise ja ei vaju ) olemasolevate põrandaliistude eemaldamine. Paigaldada parketi aluskate ning laminaatparkett + põrandaliistude paigaldamine.
4. Avatäited: Aknapõskede pahteldamine ja värvimine, aknalaua vahetus. Olemasoleva toa ukse asendamine koos lengidega uue siseuksega samasse ukseavasse ja ukse ääreliistude paigaldus mõlemale poole. (olemasolev uks 0.8x2.03 ligikaudse avaga 0.9x2.07). Uksepakku ei jää. Võib olla ukse all liist.
5. Lisatööd: Osade üheste pistikupesade asendus kahestega.(lisatoosi freesimine kõrvale).
CAT 5 kaabli vedamine põrandaliistu vahelt televiisori jaoks sobivasse kohta.
Välisseinale osaliselt ühekordse kipsplaadi paigaldus sirgestamiseks.

Köök (joonisel nr.142 2.55x2.86 kõrgus 2.60m)
1. Seinad: Olemasoleva seinakatte (tapeedi kihid ja osaliselt plaadistus) eemaldamine, pindade pahteldamine ja värvimine. (Seinad on paneel). Radiaatoritorude ja radiaatori puhastamine ning värvimine valgeks.
2. Lagi: pahteldamine ja värvimine valgeks.
3. Põrand: olemasoleva põranda lisakinnituskruvide paigaldus vajadusel (ei nagise ja ei vaju ) olemasolevate põrandaliistude eemaldamine. Paigaldada parketi aluskate ning laminaatparkett + põrandaliistude paigaldamine.
4. Avatäited: Aknapõskede pahteldamine ja värvimine, aknalaua vahetus. Olemasoleva ukse eemaldamine ning tekkinud ava viimistlemine.
5. Lisatööd: pistikupesade juurde paigaldus seina köögimööbli tasapinna kõrgusele, mille jaoks ligikaudu 0.4 m sirget sisselõiget pliidi voolu pesast. Osade üheste pistikupesade asendus kahestega.(lisatoosi freesimine kõrvale).
Ava tagamine vannitoa seinast nurka kanalisatsiooni ja veetorude jaoks.



Esik 1 ( Suurest toast välisukseni 4.25x1.20 )
1. Seinad: Olemasoleva seinakatte (tapeedi kihid) eemaldamine, pindade pahteldamine ja värvimine.
2. Lagi: pahteldamine ja värvimine valgeks.
3. Põrand: olemasoleva põranda lisakinnituskruvide paigaldus vajadusel (ei nagise ja ei vaju ) olemasolevate põrandaliistude eemaldamine. Paigaldada parketi aluskate ning laminaatparkett + põrandaliistude paigaldamine.
4. Lisatööd: Sisse ehitatud orvas puitkarkassil koridorikapi eemaldus. Suure toa ukse kohal koridorikapi eemaldus.CAT 5 kaabli ja telefonikaabli sisenemise kohast põrandani seina freesimine. CAT 5 kaablite peitmine põrandaliistude taha. Lõige olemasolevasse põrandasse et tagada CAT5 kaabli suund magamistuppa.

Koridor 2 (välisuksest köögi suunas 1.80x1.24m )
1. Seinad: Olemasoleva seinakatte (tapeedi kihid) eemaldamine, pindade pahteldamine ja värvimine.
2. Lagi: pahteldamine ja värvimine valgeks.
3. Põrand: olemasoleva põranda lisakinnituskruvide paigaldus vajadusel (ei nagise ja ei vaju ) olemasolevate põrandaliistude eemaldamine. Paigaldada parketi aluskate ning laminaatparkett + põrandaliistude paigaldamine.
4. Avatäited: Olemasoleva vannitoa ning WC ukse eemaldamine lengidega ning tekkinud avas asendamine uue siseuksega samasse ukseavasse ja ukse ääreliistude paigaldus mõlemale poole. (olemasolev uks 0.60x2.10 ligikaudse avaga 0.7x2.20). Uksepakkude paigaldus.
5. Lisatööd: CAT 5 kaablite peitmine põrandaliistude taha. Vannitoa ning WC poolsele seinale osaliselt ühekordse kipsplaadi paigaldus sirgestamiseks või ainult ülemises osas ava täite asendus.

Vannituba (joonisel nr.141 1.50x1.70 kõrgus 2.30m)
1.Seinad: Olemasoleva seinakatte (lakitud paber, osaliselt plaadistus) eemaldamine, pindade ettevalmistus, hüdroisolatsioon ja plaatimine.
2. Lagi: Ripplae või sarnase paigaldus.
3. Põrand: Olemasolevale põrandale plaatimine
4. Lisatööd: Vanni utiliseerimine. Voolukaablite vedamine WC poolsele seinale pesumasinale pistiku ning valamu peegelkapi valgustuse tagamiseks.(Võimalik koridori pistikust väljaspoolt ``kabiini`` või otse koridorist. Vertikaalne sisselõige duzzinurga segisti jaoks veetorudele ja segisti kandade paigaldus koos toruga.

WC ruum
1.Seinad: Olemasoleva seinakatte (lakitud paber )eemaldamine, pindade ettevalmistus seinex paigaldus ja värvimine.
2. Lagi: Ripplae või sarnase paigaldus.
3. Põrand: Olemasolevale põrandale plaatimine arvestusega et samast plaadist tekib kitsas vertikaalne põrandaliist.
4. Lisatööd: Olemasoleva kapi (puitkarkassil) eemaldamine. Kipsist torude katmiseks nurga ehitus tagaseinas vasakul.WC poti paigaldus.


Muud tingimused: Prügi äravedu, utiliseerimine ja koristus tööde teostaja poolt. Hinnapakkumine palun teha töödele ning tööde maht võib suureneda vastavalt ehitaja oskustele (kanalisatsiooni ,veetorustiku paigaldus, duzzinurkade, vannitoakappide, elektripistikute jne paigaldus) mille tasustamises lepitakse kokku eraldi. Kui tellija muudab materjale (näiteks koridori, köögi ja WC põrandakate siis lisatasu kokkuleppel)
Tellija ei eelda põrandate loodimist ning seinade sirgestamist lauskrohvimisega. Seinad peavad jääma visuaalselt korrektsed.
Materjali eest, mille muretseb ehitaja tellijaga kooskõlastatult, tasun ostutšekkide alusel, suuremad materjalid kokkuleppel või toob tellija vastavalt nimekirjale, kuid tellija tasub enda poolt toodud materjali veo 3 korrusele töötunni alusel.
Ettemaksu ei tee, Tööde tasustamine jooksvalt iganädalaselt arvestades proportsionaalselt hinnapakkumist ja tehtud tööde hulka.
Kes soovib võib hinnapakkumise lahti kirjutada tööde osas, et saada tasutud koheselt vastavalt tehtud töödele.

Pildid, video ja failid

Hanke korraldaja: eraisik ID20740

Pakkumised

Pakkumisi kokku: 3

Ettevõte Summa Käibemaks Lisatud Vestlus
Kasutaja ikoon ID42973
Pakkuja profiil Väike nool paremale
6 850€ Ei sisalda Ei sisalda 26.09.2017 Vestlus (4)

Pakkumise kirjeldus:

Tere! Meie poolne tööhind sisaldab kõike mida on märgitud kirjelduses (lisaks ka kanalisatsiooni, veetorustiku paigaldus, dushinurga, vannitoakappide, elektripistikute jne paigaldus):
lammutustööd, tapeedi eemaldus, lagede pahteldus koos värvimisega (ilma loodimiseta), vannitoa ja WC lagede paigaldus, kogu vannitoa ja WC-ga seotuid töid (plaatimine ... Rohkem

Kasutaja ikoon ID40475
Pakkuja profiil Väike nool paremale
6 500€ Ei sisalda Ei sisalda 26.09.2017 Vestlus (3)

Pakkumise kirjeldus:

Tere! Pikaajaline kogemus ehitus-, viimistlustöödes ( 19 aastat ).
Head ! Silver

Kasutaja ikoon ID3098
Pakkuja profiil Väike nool paremale
2 400€ Sisaldab KM Sisaldab KM 26.09.2017 Vestlus (2)

Pakkumise kirjeldus:

Tere.Pakkumiņe maalritöödele,kogemus üle10aasta,ettemaksu ei soovi, võimalus alustada uuel nädalal.Parimatega

Küsimused hanke korraldajale

Küsimus: private ID42973   20.09.2017 23:21
Tere! Teil on lisatud tingimus - Ehitusmaterjalid: Hanke võitja poolt, kuid infost leian, et on soov saada pakkumist töödele. Sooviksin teada, kas pakkumine peab vastama tööle või peab sisaldama ka ehitusmaterjale. Tänan!

Teavita reeglite rikkumisest

Korraldaja vastus: 21.09.2017 08:54

Tere.<br />
Vabandan see viga lipsas sisse hanke koostamise standardtingimutega.<br />
HANKIJA OOTAB PAKKUMIST TÖÖDELE.<br />
Materjalidega lähtume nagu üldises kirjelduses.<br />
Kui tööde teostaja soovib teha teatud töid enda eelistatud materjalidega (näiteks pahtel mida ta teab et on hea ja lihtne lihvida jne) siis hankija tasub need otse kulupõhiselt (isegi kui need on teostajal endal ennem olemas)<br />
Ja samamoodi tellija läheb poodi ning valib seinavärvi tooni ning ootab tööde teostajalt ainult infot ligikaudse koguse eelistatud värvitootja/tüübi kohta.<br />
Kõik mis üle jääb on tellija risk ja kulu.

Teavita reeglite rikkumisest

Lisa küsimus

Lisa küsimus

Minu pakkumine

Reeglid

Pakkumise kirjelduse väli on mõeldud pakkumise detailsemaks lahti kirjutamiseks. Pikema teksti mugavaks sisestamiseks klikkige kasti paremal ülaservas oleval ikoonil.
Pakkumist tehes on keelatud postitada enda kontaktandmeid (nimi, telefon, aadress jne). Me jälgime ja analüüsime pakkumisi, et vältida pettuseid ja reeglite rikkumisi.
Rikkumise puhul kasutajakonto blokeeritakse.

 

Teisi töid samas valdkonnas

Valdkonnas "Korterite remont" on 2 aktiivset tööd

Vannitoa lampide paigaldus + erinevad pisiparandused korteris

Asukoht: Harjumaa, Tallinn
Aega jäänud: 1p 9h
Tehtud pakkumisi: 3

Korteri kapitaalremont ja ümberehitus (täielik siseviimistlus + elektritööd)

Asukoht: Järvamaa
Aega jäänud: 12p 9h
Tehtud pakkumisi: 0

Vanemad teated:

Vaata kõiki

Sellel veebilehel kasutatakse küpsiseid. Kasutamist jätkates nõustute küpsiste kasutamisega.

Sulge
 
Minu pakkumine

Reeglid

Pakkumise kirjelduse väli on mõeldud pakkumise detailsemaks lahti kirjutamiseks. Pikema teksti mugavaks sisestamiseks klikkige kasti paremal ülaservas oleval ikoonil.
Pakkumist tehes on keelatud postitada enda kontaktandmeid (nimi, telefon, aadress jne). Me jälgime ja analüüsime pakkumisi, et vältida pettuseid ja reeglite rikkumisi.
Rikkumise puhul kasutajakonto blokeeritakse.