+ Lisa oma töö      

Otsid ehitajat "Betoonitööd" valdkonnast?

Parima pakkumise ja teostaja leidmiseks lisa oma töö.

Põranda betoneerimine

ID 41614

3127 vaatamist

Prindi

  • check Pakkumiste tegemine
    kuni 30.10.2017
  • check Võitja valik kuni
    06.11.2017
  • 3 Töö teostamine
    ja hinnang
Hanke lõpp: E, 30. oktoober, 2017
Maakond: Harjumaa
Linn: Keila
Tööde algus: E, 06. november, 2017 (Soovituslik)
Tööde lõpp: R, 10. november, 2017 (Soovituslik)
Ehitusmaterjalid: Töö tellija poolt

Töö sisu

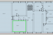
Hanke sisuks on kahekordse büroohoone 2 korruse põranda valu. Joonisel viirutatud alas asuvad pesemisruumid, seal 4 trappi + mõned vee ja kanali otsad. Lõpptulemusena peaks põrand kogu korruse ulatuses olema samas tasapinnas ja piisavalt sile, et selle peale paigaldada parkett. Valupinda kokku 249 m2 ja valu paksus varieerub 6cm kuni 9 cm'ni, kogu ettevalmistus valuks on tehtud.

Pildid, video ja failid

Hanke korraldaja: ettevõte ID40194

Pakkumised

Pakkumisi kokku: 3

Ettevõte Summa Käibemaks Lisatud Vestlus
Kasutaja ikoon ID46513
Pakkuja profiil Väike nool paremale
2 500€ Ei sisalda Ei sisalda 30.10.2017 Vestlus (0)

Pakkumise kirjeldus:

Töödele garantii!

Kasutaja ikoon ID36202
Pakkuja profiil Väike nool paremale
1 250€ Ei sisalda Ei sisalda 30.10.2017 Vestlus (0)

Pakkumise kirjeldus:

Tere.Hind sisaldab betoneerimist ning pinnaviimistlust ja mahukahanemisvuukide lõikamist ,kui on vajalik.Vajadusel võime tarnida ka betooni.

Kasutaja ikoon ID37908
Pakkuja profiil Väike nool paremale
1 850€ Ei sisalda Ei sisalda 30.10.2017 Vestlus (0)

Pakkumise kirjeldus:

Tere. Hind sisaldab betoneerimist(valamist ja lihvimist). Vajalik tehnika ja tööriistad meie poolt. Peale lihvimist katame pinna hooldusvõõba Korotex'ga. Lugupidamisega Heiki

Küsimused hanke korraldajale

Hanke korraldajale ei ole veel küsimusi esitatud.

Lisa küsimus

Lisa küsimus

Minu pakkumine

Reeglid

Pakkumise kirjelduse väli on mõeldud pakkumise detailsemaks lahti kirjutamiseks. Pikema teksti mugavaks sisestamiseks klikkige kasti paremal ülaservas oleval ikoonil.
Pakkumist tehes on keelatud postitada enda kontaktandmeid (nimi, telefon, aadress jne). Me jälgime ja analüüsime pakkumisi, et vältida pettuseid ja reeglite rikkumisi.
Rikkumise puhul kasutajakonto blokeeritakse.

 

Teisi töid samas valdkonnas

Valdkonnas "Betoonitööd" on 2 aktiivset tööd

Kasvuhoone vundamnet

Asukoht: Tartumaa, Tartu
Aega jäänud: 3h 11 min
Tehtud pakkumisi: 1

no-img Pilt puudub

Betoonplats aeda

Asukoht: Harjumaa, Tallinn
Aega jäänud: 1p 3h
Tehtud pakkumisi: 0

Vanemad teated:

Vaata kõiki

Sellel veebilehel kasutatakse küpsiseid. Kasutamist jätkates nõustute küpsiste kasutamisega.

Sulge
 
Minu pakkumine

Reeglid

Pakkumise kirjelduse väli on mõeldud pakkumise detailsemaks lahti kirjutamiseks. Pikema teksti mugavaks sisestamiseks klikkige kasti paremal ülaservas oleval ikoonil.
Pakkumist tehes on keelatud postitada enda kontaktandmeid (nimi, telefon, aadress jne). Me jälgime ja analüüsime pakkumisi, et vältida pettuseid ja reeglite rikkumisi.
Rikkumise puhul kasutajakonto blokeeritakse.