+ Lisa oma töö      

Otsid ehitajat "Vundamenditööd" valdkonnast?

Parima pakkumise ja teostaja leidmiseks lisa oma töö.

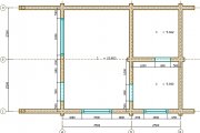
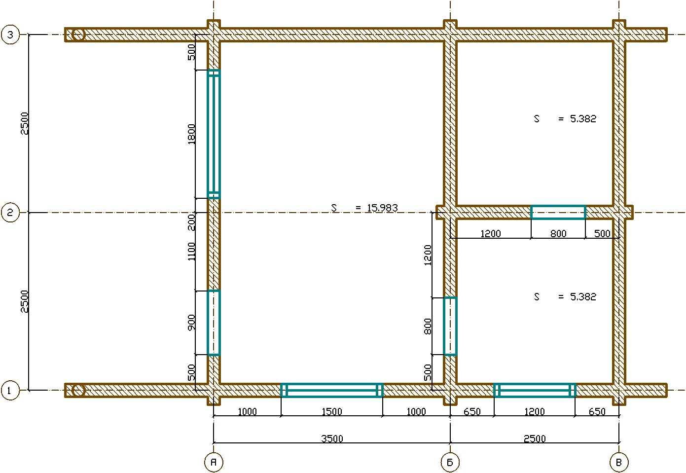
Plaatvundamendi ehitus 30 m2

ID 41691

2439 vaatamist

Prindi

  • check Pakkumiste tegemine
    kuni 09.11.2017
  • check Võitja valik kuni
    16.11.2017
  • 3 Töö teostamine
    ja hinnang
Hanke lõpp: N, 9. november, 2017
Maakond: Tartumaa
Muu asula: Külitse alevik
Tööde algus: K, 08. november, 2017 (Kohustuslik)
Tööde lõpp: R, 17. november, 2017 (Soovituslik)
Ehitusmaterjalid: Töö tegija poolt

Töö sisu

Soovin pakkumist plaatvundamendi ehitusele suurusega 5*6m. Vundament tuleks ehitada EPS L-profiilist. Vundamenti on vaja rajada üks vee äravool, külma vee sissetulek ja toru juhtmestiku jaoks. Kõik kommunikatsioonid jäävad võrku ühendamata. Vajavad lihtsalt vundamenti paigutamist ja juhtimist vunamendist veidi kaugemale.

Töö hõlmab siis, pinnasekoorimist, geotekstiili paigaldust, killustiku ja liiva kohaletoomist, taldmiku ettevalmistust, EPSi paigaldust, armeerimist, kommunikatsioonide paigaldust, betooni valamist.

Pildid, video ja failid

Hanke korraldaja: eraisik ID46581

Pakkumised

Pakkumisi kokku: 0

Küsimused hanke korraldajale

Küsimus: private ID46568   07.11.2017 12:49
Kas peno on ka teil olemas juba või peab ise muretsema ? L-profiili nii kiiresti vast ie saa. Kas võib vertikaalse peno hiljem panna peale valamist ? Kui paju tahate maapinda tõsta maja all ja kas võib ainult kruusaga täita ?

Teavita reeglite rikkumisest

Korraldaja vastus:
Hanke korraldaja ei ole küsimusele veel vastanud

Lisa küsimus

Lisa küsimus

Minu pakkumine

Reeglid

Pakkumise kirjelduse väli on mõeldud pakkumise detailsemaks lahti kirjutamiseks. Pikema teksti mugavaks sisestamiseks klikkige kasti paremal ülaservas oleval ikoonil.
Pakkumist tehes on keelatud postitada enda kontaktandmeid (nimi, telefon, aadress jne). Me jälgime ja analüüsime pakkumisi, et vältida pettuseid ja reeglite rikkumisi.
Rikkumise puhul kasutajakonto blokeeritakse.

 

Teisi töid samas valdkonnas

Valdkonnas "Vundamenditööd" on 8 aktiivset tööd

no-img Pilt puudub

Plaatvundament koos kommunikatsioonidega

Asukoht: Harjumaa
Aega jäänud: 1p 8h
Tehtud pakkumisi: 2

no-img Pilt puudub

Vundamendi projekt

Asukoht: Harjumaa, Tallinn
Aega jäänud: 3p 8h
Tehtud pakkumisi: 1

Vanemad teated:

Vaata kõiki

Sellel veebilehel kasutatakse küpsiseid. Kasutamist jätkates nõustute küpsiste kasutamisega.

Sulge
 
Minu pakkumine

Reeglid

Pakkumise kirjelduse väli on mõeldud pakkumise detailsemaks lahti kirjutamiseks. Pikema teksti mugavaks sisestamiseks klikkige kasti paremal ülaservas oleval ikoonil.
Pakkumist tehes on keelatud postitada enda kontaktandmeid (nimi, telefon, aadress jne). Me jälgime ja analüüsime pakkumisi, et vältida pettuseid ja reeglite rikkumisi.
Rikkumise puhul kasutajakonto blokeeritakse.