+ Lisa oma töö      

Otsid ehitajat "Siseviimistlustööd" valdkonnast?

Parima pakkumise ja teostaja leidmiseks lisa oma töö.

Sanitaar / Viimistlusremont elamukorter

ID 41701

2613 vaatamist

Prindi

  • check Pakkumiste tegemine
    kuni 16.11.2017
  • check Võitja valik kuni
    23.11.2017
  • 3 Töö teostamine
    ja hinnang
Hanke lõpp: N, 16. november, 2017
Maakond: Harjumaa
Tööde algus: K, 15. november, 2017 (Soovituslik)
Tööde lõpp: P, 17. detsember, 2017 (Soovituslik)
Ehitusmaterjalid: Töö tegija poolt

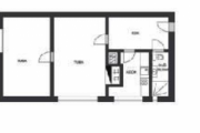
Töö sisu

Korter 38 m2, 1. korrus. sanitaarremonti
Hankes on uus elektri juhtmestik,
Põrandad laminaatparketiga või lauaga katta (laminaat korraldaja poolt, paigaldus materjalid võitja poolt),
seinad pahteldada ja värvida, laed ripplaed (küprokist paigaldada koos süvistavate valgustitega ja värvida, uksed koos paledega vahetada (4tk uksed hanke korraldaja poolt),
wc-dušširuum uuesti ehitada,
radiaatorid värvida ,vannitoa ning köögi torutööd teostada

Uue lahenduse kirjeldus:
Põrandad: 27m2 laminaatparketti, vaipkate või laudis paigaldada (esik, elutuba, magamistuba), 11m2 pvc (köök, esik, wc), Seinad: ca- 90m2 värv,
Laed: 36 m2 ripplagi +värv

Elekter: Juhtmestik korrastada, süvistatud valgustid paigaldus, suurde tupp 2 pesa, esikusse 1, magamistuppa 2 pesa, kööki 4. (Juhtmed, pesad, lülitid hanke võitja poolt)
Esik : Põrand katta laminaatparketiga, seinad tasandada vajadusel katta küprokiga, paigaldada ripplagi (2 süvistavat valgusti ka )
Elutuba: Põrand katta laminaatparketiga või muu materjaliga (materjalid võitja poolt), seinad tasandada värvida ja katta küproc plaadiga (materjal oksjoni võitja poolt), lagi paigaldada ripplagi koos süvitavate valgustite ( 6 valgustid ) , ukse vahetus
Magamistuba: Põrand katta laminaatparketiga või muu materjaliga (materjalid võitja poolt),, seinad tasandada värvida ja katta küproc plaadiga (materjal oksjoni võitja poolt), lagi paigaldada ripplagi koos süvitavate valgustite ( 6 valgustid ) , ukse vahetus
WC: Põrand katta pvc kattega, seinad värvida, ripplagi, wc pott seinale paigaldus, Boileri paigaldus
Köök: Põrand katta pvc kattega, seinad värvida, ripplagi, dushi nurk paigaldada, (San tehnika korraldaja poolt)
Olemasoleva kirjeldus: Korteris on tehtud remont 30a tagasi, põrandad on enam-vähem siledad (laud või vineer) , seinad krohvitud tellis kohati küprok, laed pahteltatud vineer. Seinad on olnud tapetseeritud, on alustatud remonti elutoas seinad küprokiga kaetud siledad, wc on vaja uuesti ehitada seal puit põrand, ja samuti esikus
Hinnapakkumises tuua kõik kokku hind välja tuua vaid materjali maksumus ja töö eraldi ning töö aeg

Pildid, video ja failid

Hanke korraldaja: ettevõte ID45620

Pakkumised

Pakkumisi kokku: 3

Ettevõte Summa Käibemaks Lisatud Vestlus
Kasutaja ikoon ID46590
Pakkuja profiil Väike nool paremale
10 000€ Sisaldab KM Sisaldab KM 08.11.2017 Vestlus (0)

Pakkumise kirjeldus:

Peaksa olema selles hinna vahes

Kasutaja ikoon ID46609
Pakkuja profiil Väike nool paremale
9 000€ Ei sisalda Ei sisalda 14.11.2017 Vestlus (0)
Kasutaja ikoon ID39203
Pakkuja profiil Väike nool paremale
9 400€ Ei sisalda Ei sisalda 16.11.2017 Vestlus (0)

Pakkumise kirjeldus:

Tere

Kõik tööd ja materjal hinnas. Pakume välja Teile sobivad lahendused, teostab vajaliku dokumentatsiooni(kasutusluba) ja ab materjalide valikul. Esiti on materjal pakkumises keskmise klassina. Ei soovita kõige odavamaid materjale ja töövõtteid.


Lugupidamisega
Margus

Küsimused hanke korraldajale

Küsimus: private ID42628   08.11.2017 15:12
Tere!<br />
<br />
1. Milliseid töid hõlmab wc-duširuumi uuesti ehitamine (kas midagi tehtud juba ja milliseid töid täpsemalt soovitakse)?<br />
2. Kas wc-pott ja boiler on hankijal olemas?<br />
3. Andke täpsem torutööde kirjeldus (lihtsam ühendus, torude vedamine vms).<br />

Teavita reeglite rikkumisest

Korraldaja vastus:
Hanke korraldaja ei ole küsimusele veel vastanud

Lisa küsimus

Lisa küsimus

Minu pakkumine

Reeglid

Pakkumise kirjelduse väli on mõeldud pakkumise detailsemaks lahti kirjutamiseks. Pikema teksti mugavaks sisestamiseks klikkige kasti paremal ülaservas oleval ikoonil.
Pakkumist tehes on keelatud postitada enda kontaktandmeid (nimi, telefon, aadress jne). Me jälgime ja analüüsime pakkumisi, et vältida pettuseid ja reeglite rikkumisi.
Rikkumise puhul kasutajakonto blokeeritakse.

 

Teisi töid samas valdkonnas

Valdkonnas "Siseviimistlustööd" on 32 aktiivset tööd

Ventilatsioonitoru vahetus, integreeritud nõudepesumasina ja pliidiplaadi vahetus

Asukoht: Tartumaa, Tartu
Aega jäänud: 7h 42 min
Tehtud pakkumisi: 5

Trepikoja värvimine

Asukoht: Harjumaa, Tallinn
Aega jäänud: 7h 42 min
Tehtud pakkumisi: 5

Vanemad teated:

Vaata kõiki

Sellel veebilehel kasutatakse küpsiseid. Kasutamist jätkates nõustute küpsiste kasutamisega.

Sulge
 
Minu pakkumine

Reeglid

Pakkumise kirjelduse väli on mõeldud pakkumise detailsemaks lahti kirjutamiseks. Pikema teksti mugavaks sisestamiseks klikkige kasti paremal ülaservas oleval ikoonil.
Pakkumist tehes on keelatud postitada enda kontaktandmeid (nimi, telefon, aadress jne). Me jälgime ja analüüsime pakkumisi, et vältida pettuseid ja reeglite rikkumisi.
Rikkumise puhul kasutajakonto blokeeritakse.