+ Lisa oma töö      

Otsid ehitajat "Tuleohutussüsteemide paigaldus" valdkonnast?

Parima pakkumise ja teostaja leidmiseks lisa oma töö.

Automaatne tulekahjusignalisatsiooni paigaldus- kõik hinnas.

ID 41875

3022 vaatamist

Prindi

  • check Pakkumiste tegemine
    kuni 28.12.2017
  • check Võitja valik kuni
    04.01.2018
  • 3 Töö teostamine
    ja hinnang
Hanke lõpp: N, 28. detsember, 2017
Maakond: Harjumaa
Linn: Keila
Tööde algus: P, 01. aprill, 2018 (Soovituslik)
Tööde lõpp: E, 09. aprill, 2018 (Soovituslik)
Ehitusmaterjalid: Töö tegija poolt

Töö sisu

Tere,

Soovin hinnapakkumist automaatsele tulekahjusignalisatsioonile.

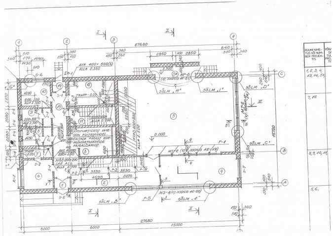
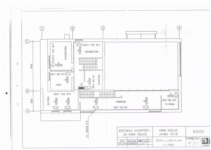
Hoone:
Korrus: 2 korrust.
m2: 509m2
Harjuma,

Majas olemas tulekahjusignalisatsioon aga mitte automaatne.

Soov on saada olemasolevast automaatse või teie poolt pakutud lahendus.

Eesmärk: täita seadusega nõutud punkt.
Väljavalimine toimub vastavalt hinnapakkumisele.
Hinnapakkumine sisaldab kõiki vajalike töid.
Hinnakirjas eraldi tuua töö maksumus ja seadmed.



Jään ootama tagasisidet.



Lugupidamisega,

Andrei

Pildid, video ja failid

Hanke korraldaja: eraisik ID44477

Pakkumised

Pakkumisi kokku: 1

Ettevõte Summa Käibemaks Lisatud Vestlus
Kasutaja ikoon ID32544
Pakkuja profiil Väike nool paremale
10 000€ Ei sisalda Ei sisalda 25.12.2017 Vestlus (0)

Pakkumise kirjeldus:

projekt 2500.-
seadmed ja materjalid 2900.-
töö sh tellingud jms. 4600.-

Küsimused hanke korraldajale

Küsimus: private ID44326   01.12.2017 01:17
Tere<br />
<br />
Palun kirjeldage olemasolevat signalisatsioonisüsteemi.

Teavita reeglite rikkumisest

Korraldaja vastus:
Hanke korraldaja ei ole küsimusele veel vastanud

Lisa küsimus

Lisa küsimus

Minu pakkumine

Reeglid

Pakkumise kirjelduse väli on mõeldud pakkumise detailsemaks lahti kirjutamiseks. Pikema teksti mugavaks sisestamiseks klikkige kasti paremal ülaservas oleval ikoonil.
Pakkumist tehes on keelatud postitada enda kontaktandmeid (nimi, telefon, aadress jne). Me jälgime ja analüüsime pakkumisi, et vältida pettuseid ja reeglite rikkumisi.
Rikkumise puhul kasutajakonto blokeeritakse.

 

Vanemad teated:

Vaata kõiki

Sellel veebilehel kasutatakse küpsiseid. Kasutamist jätkates nõustute küpsiste kasutamisega.

Sulge
 
Minu pakkumine

Reeglid

Pakkumise kirjelduse väli on mõeldud pakkumise detailsemaks lahti kirjutamiseks. Pikema teksti mugavaks sisestamiseks klikkige kasti paremal ülaservas oleval ikoonil.
Pakkumist tehes on keelatud postitada enda kontaktandmeid (nimi, telefon, aadress jne). Me jälgime ja analüüsime pakkumisi, et vältida pettuseid ja reeglite rikkumisi.
Rikkumise puhul kasutajakonto blokeeritakse.