+ Lisa oma töö      

Otsid ehitajat "Katusetööd" valdkonnast?

Parima pakkumise ja teostaja leidmiseks lisa oma töö.

Katus ja katuslaed

ID 4204

5029 vaatamist

Prindi

  • check Pakkumiste tegemine
    kuni 16.05.2007
  • check Võitja valik kuni
    23.05.2007
  • 3 Töö teostamine
    ja hinnang
Hanke lõpp: K, 16. mai, 2007
Maakond: Viljandimaa
Linn: Viljandi
Tööde algus: K, 20. juuni, 2007 (Soovituslik)
Tööde lõpp: R, 01. mai, 2026 (Soovituslik)
Ehitusmaterjalid: Töö tellija poolt

Töö sisu

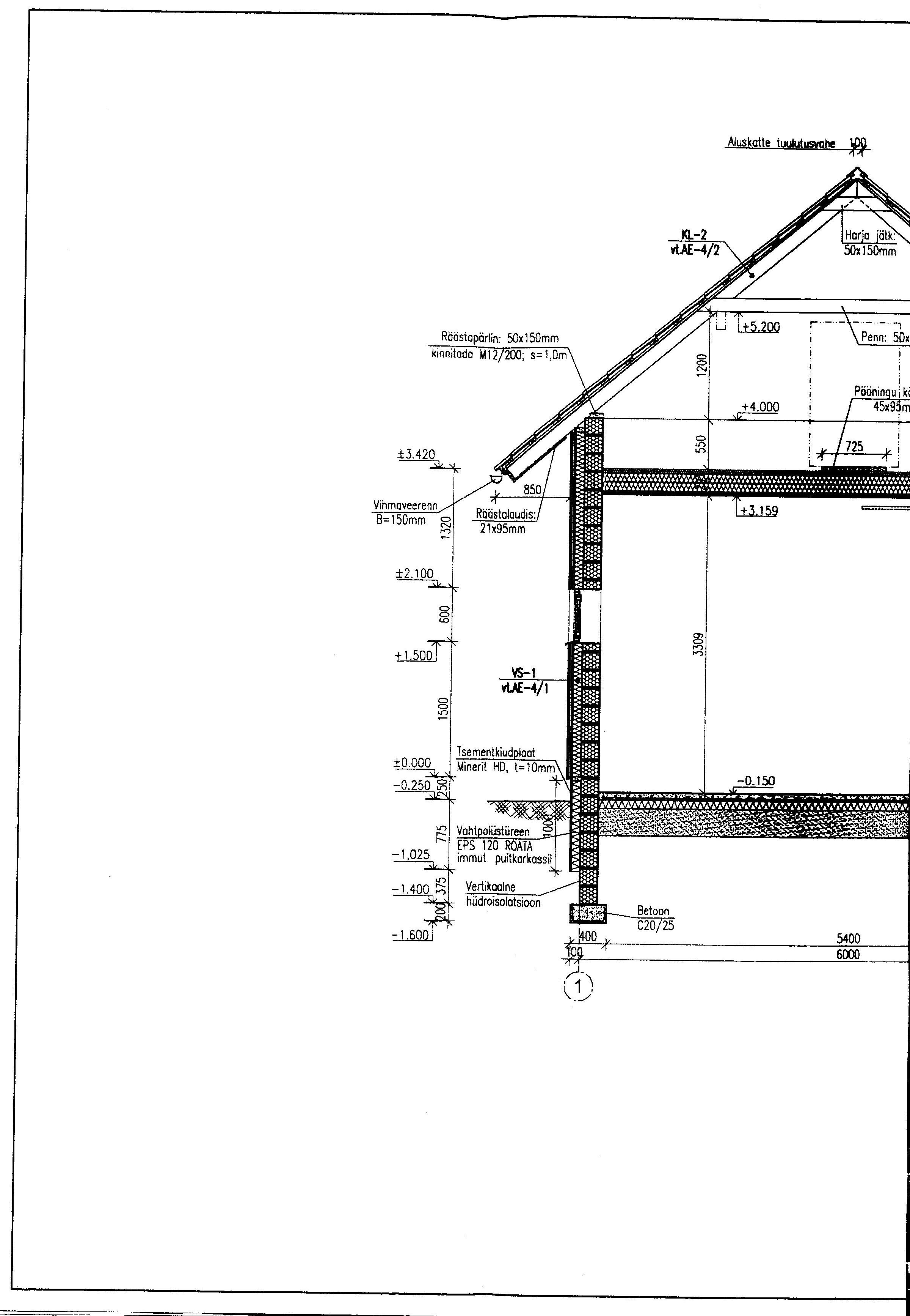
Katuse kandekonstruktsiooniks on hoone põhiosas sarikad 50x200 mm ja kõrvalosas 50x150 mm, põhisammuga 600 mm. Sarikate peale paigaldatakse katuse aluskate, tuulutuslatid, roovitus ja kivimitatsiooniga katuseplekk või kivii katuseprofiil.
Teise korruse katuslae kandekonstruktsiooniks on sarikad 50x200 mm, põhisammuga 600 mm. Sarikate vaheline osa soojustatakse 150 mm mineraalvilla kihiga ja kaetakse tuuletõkkepaberi või –plaadiga. Siseküljele paigaldatakse puidust 50x100 mm ristkarkass, mille vahe täidetakse mineraalvillaga. Sisekülg viimistletakse kipsplaadiga. Projekteeritud katuslae soojajuhtivus U=0,14 W/m2 K. Täpsem katuslae konstruktsioon on toodud joonisel AE-4/2.

Pildid, video ja failid

Hanke korraldaja: eraisik ID6163

Pakkumised

Pakkumisi kokku: 1

Ettevõte Summa Käibemaks Lisatud Vestlus
Kasutaja ikoon ID5993
Pakkuja profiil Väike nool paremale
6 391,2€ Sisaldab KM Sisaldab KM 15.05.2007 Vestlus (0)

Küsimused hanke korraldajale

Küsimus: private ID3232   15.05.2007 15:36
Ja joonis on siis meil kus?

Teavita reeglite rikkumisest

Korraldaja vastus: 01.05.2026 20:19

Tere,saadan joonise emaili teel.Teie e-mail?

Teavita reeglite rikkumisest

Küsimus: private ID3232   15.05.2007 16:58
Probleem seisneb paraku selles, et kui ma soovin seda portaali ka edaspidi kasutada, siis on minu kontaktandmete edastamine enne hanke lõppu paraku keelatud!!!

Teavita reeglite rikkumisest

Korraldaja vastus: 01.05.2026 20:19

Pildid saab vaadata http://foto.k-arvutisalong.ee/klient.k?sid=bb8a6c532c25c1ea33b329dbe2f67f98&valitudgalerii=135081&fin=1&valik=galerii

Teavita reeglite rikkumisest

Küsimus: private ID3232   15.05.2007 17:57
Ilma sisselogimata kahjuks pilte ei näita

Teavita reeglite rikkumisest

Korraldaja vastus: 01.05.2026 20:19

Palun vabandus, http://foto.k-arvutisalong.ee/ siis valige AVALIKUD ALBUMID siis (albumiotsing-albuminimi): Maja ja siis leiate seal Viki maja 8 pilti.

Teavita reeglite rikkumisest

Küsimus: private ID3232   15.05.2007 19:17
Alustame siis uuesti: Mitmekordse majaga tegu on? Jooniseid ja ruutmeetreid oleks ka vaja. Algandmeid ühesõnaga vähekene rohkem. Tänan

Teavita reeglite rikkumisest

Korraldaja vastus:
Hanke korraldaja ei ole küsimusele veel vastanud

Lisa küsimus

Lisa küsimus

Minu pakkumine

Reeglid

Pakkumise kirjelduse väli on mõeldud pakkumise detailsemaks lahti kirjutamiseks. Pikema teksti mugavaks sisestamiseks klikkige kasti paremal ülaservas oleval ikoonil.
Pakkumist tehes on keelatud postitada enda kontaktandmeid (nimi, telefon, aadress jne). Me jälgime ja analüüsime pakkumisi, et vältida pettuseid ja reeglite rikkumisi.
Rikkumise puhul kasutajakonto blokeeritakse.

 

Teisi töid samas valdkonnas

Valdkonnas "Katusetööd" on 14 aktiivset tööd

no-img Pilt puudub

Katusekatte vahetus

Asukoht: Võrumaa, Tsolgo
Aega jäänud: 7p 3h
Tehtud pakkumisi: 6

no-img Pilt puudub

Katuse vahetus uue eterniidi vastu

Asukoht: Harjumaa, Viimsi
Aega jäänud: 6p 3h
Tehtud pakkumisi: 6

Vanemad teated:

Vaata kõiki

Sellel veebilehel kasutatakse küpsiseid. Kasutamist jätkates nõustute küpsiste kasutamisega.

Sulge
 
Minu pakkumine

Reeglid

Pakkumise kirjelduse väli on mõeldud pakkumise detailsemaks lahti kirjutamiseks. Pikema teksti mugavaks sisestamiseks klikkige kasti paremal ülaservas oleval ikoonil.
Pakkumist tehes on keelatud postitada enda kontaktandmeid (nimi, telefon, aadress jne). Me jälgime ja analüüsime pakkumisi, et vältida pettuseid ja reeglite rikkumisi.
Rikkumise puhul kasutajakonto blokeeritakse.