+ Lisa oma töö      

Otsid ehitajat "Üldehitus" valdkonnast?

Parima pakkumise ja teostaja leidmiseks lisa oma töö.

Eramu rekonstruktsioon ja laiendus

ID 42045

4836 vaatamist

Prindi

  • check Pakkumiste tegemine
    kuni 03.02.2018
  • check Võitja valik kuni
    10.02.2018
  • 3 Töö teostamine
    ja hinnang
Hanke lõpp: L, 3. veebruar, 2018
Maakond: Harjumaa
Linn: Tallinn
Tööde algus: E, 04. juuni, 2018 (Soovituslik)
Tööde lõpp: R, 31. august, 2018
Ehitusmaterjalid: Töö tegija poolt

Töö sisu

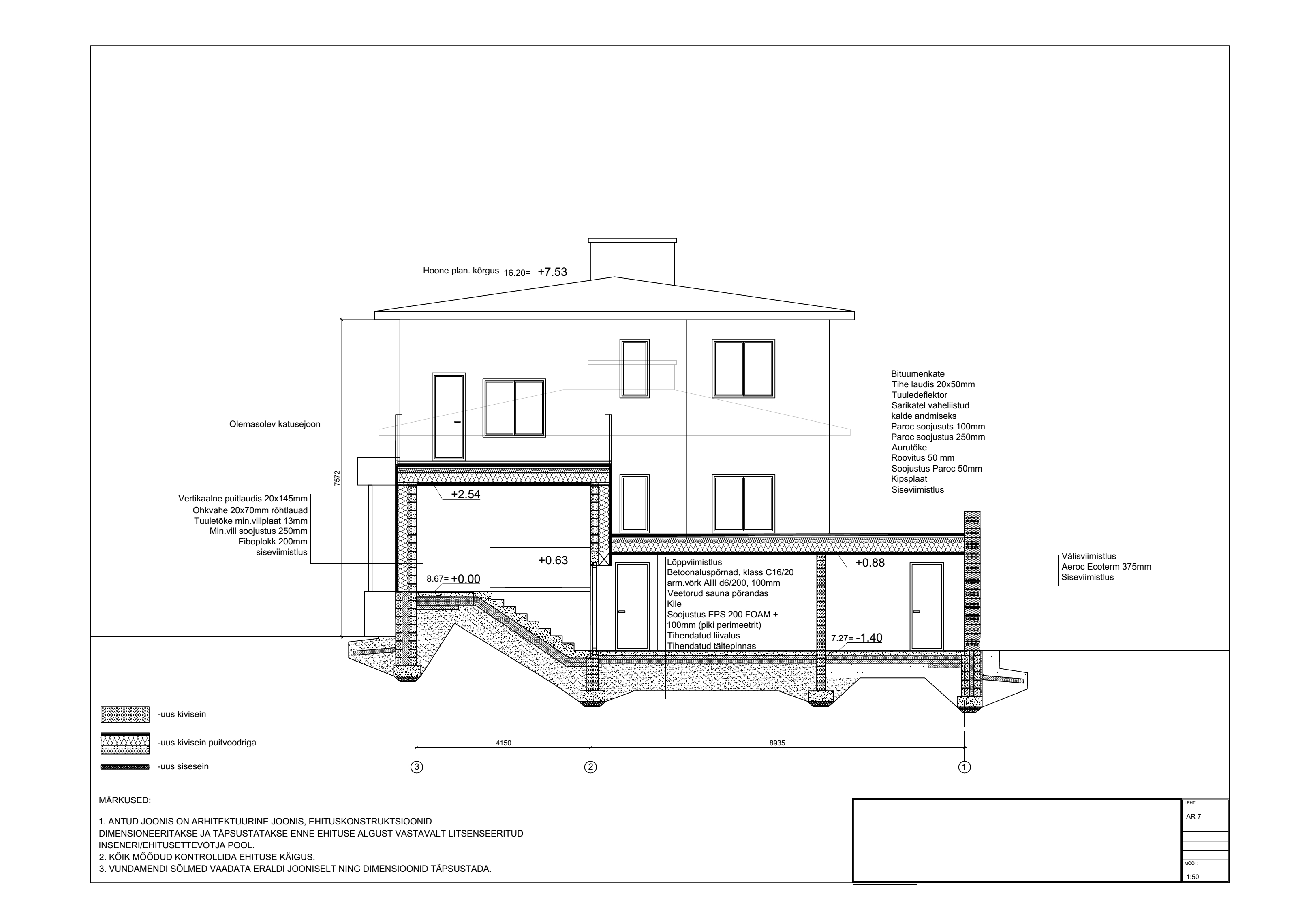
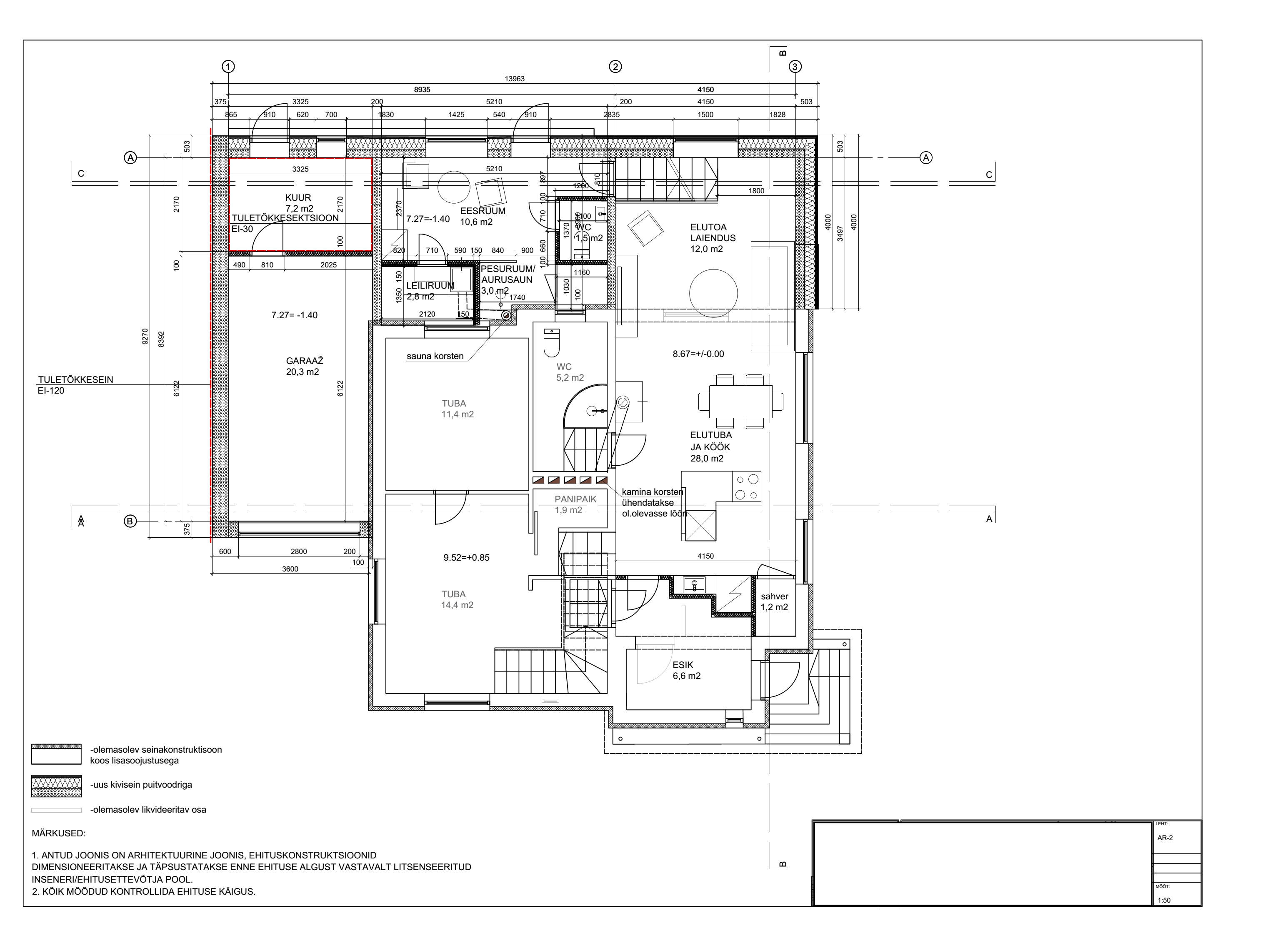
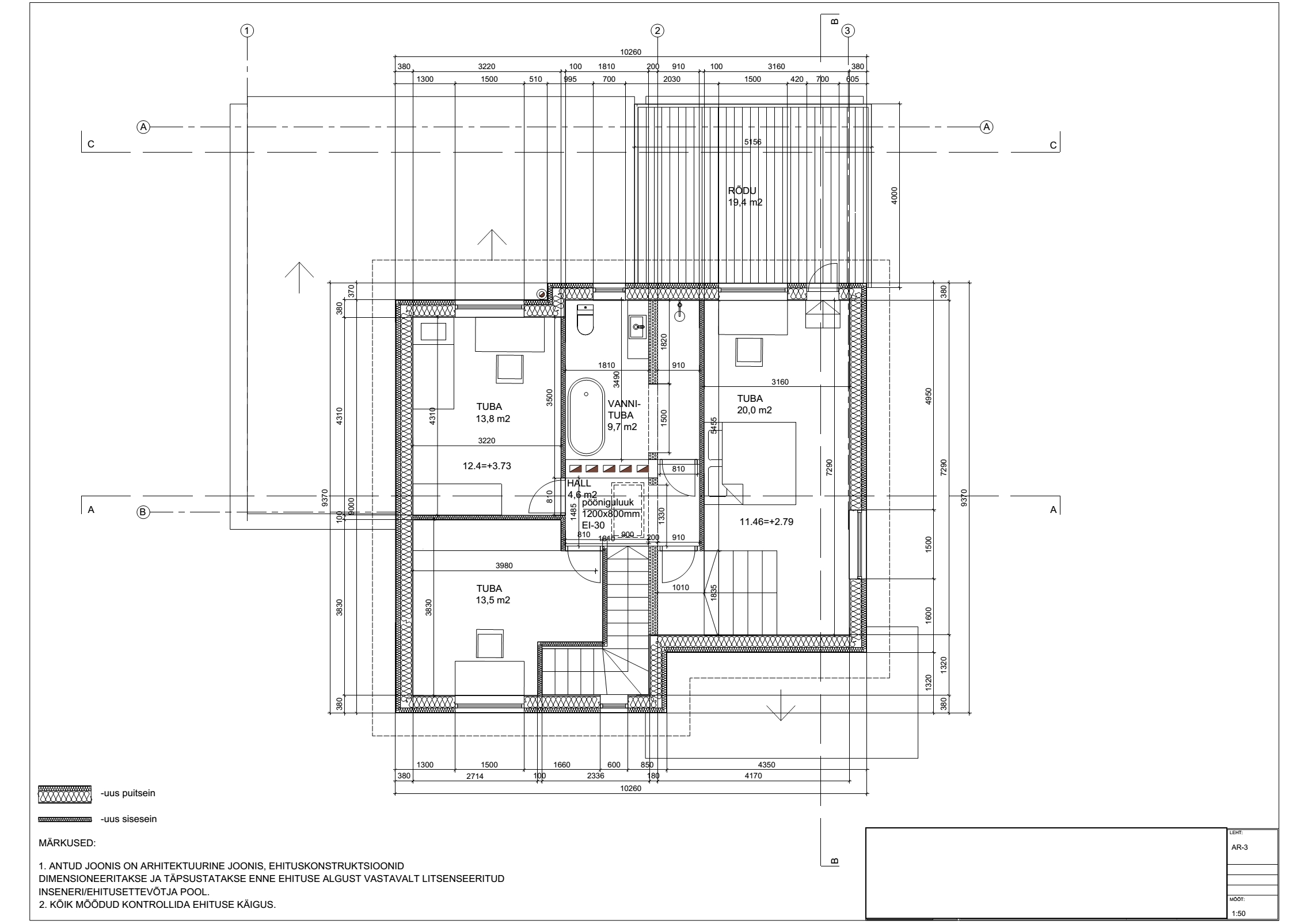
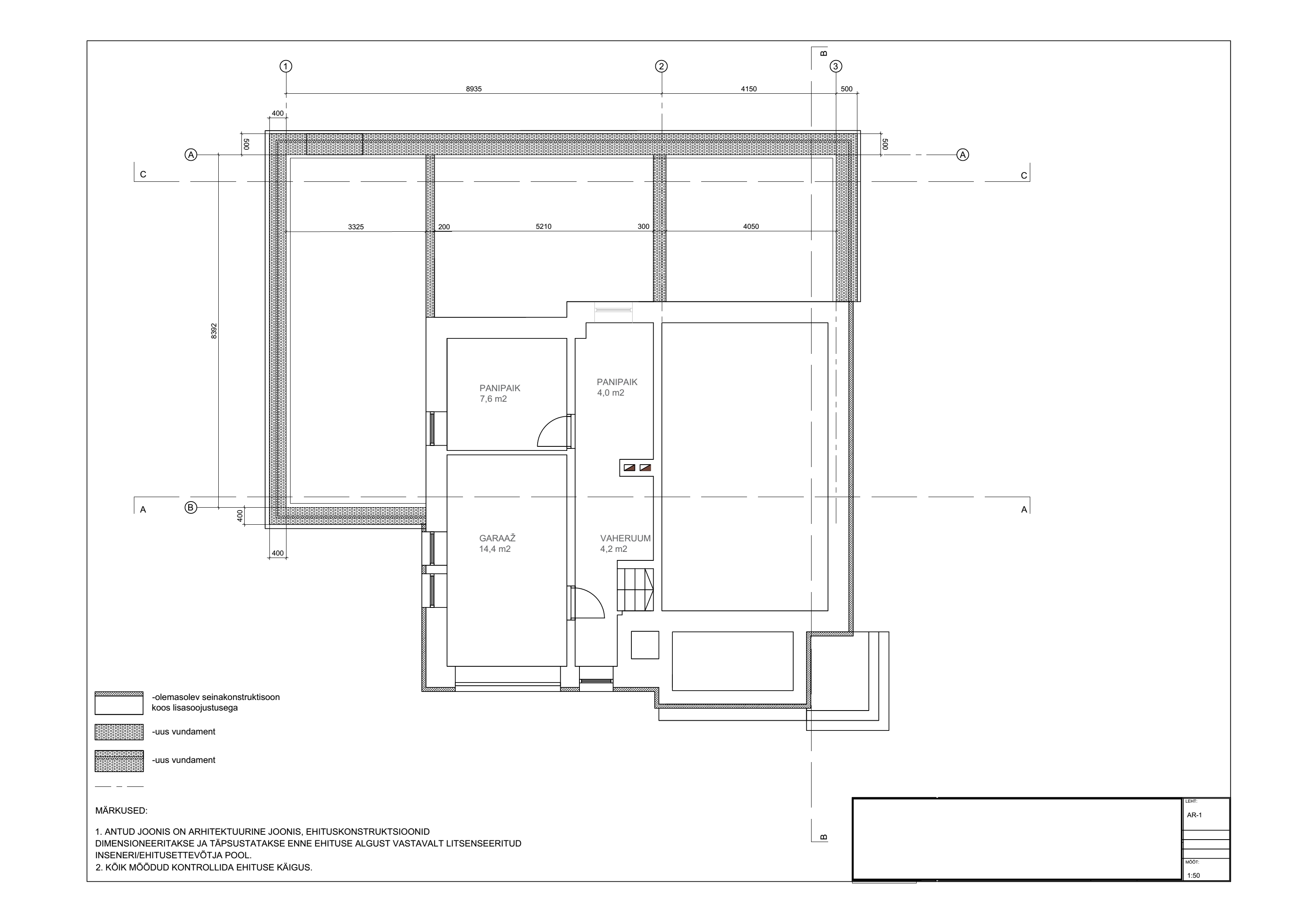
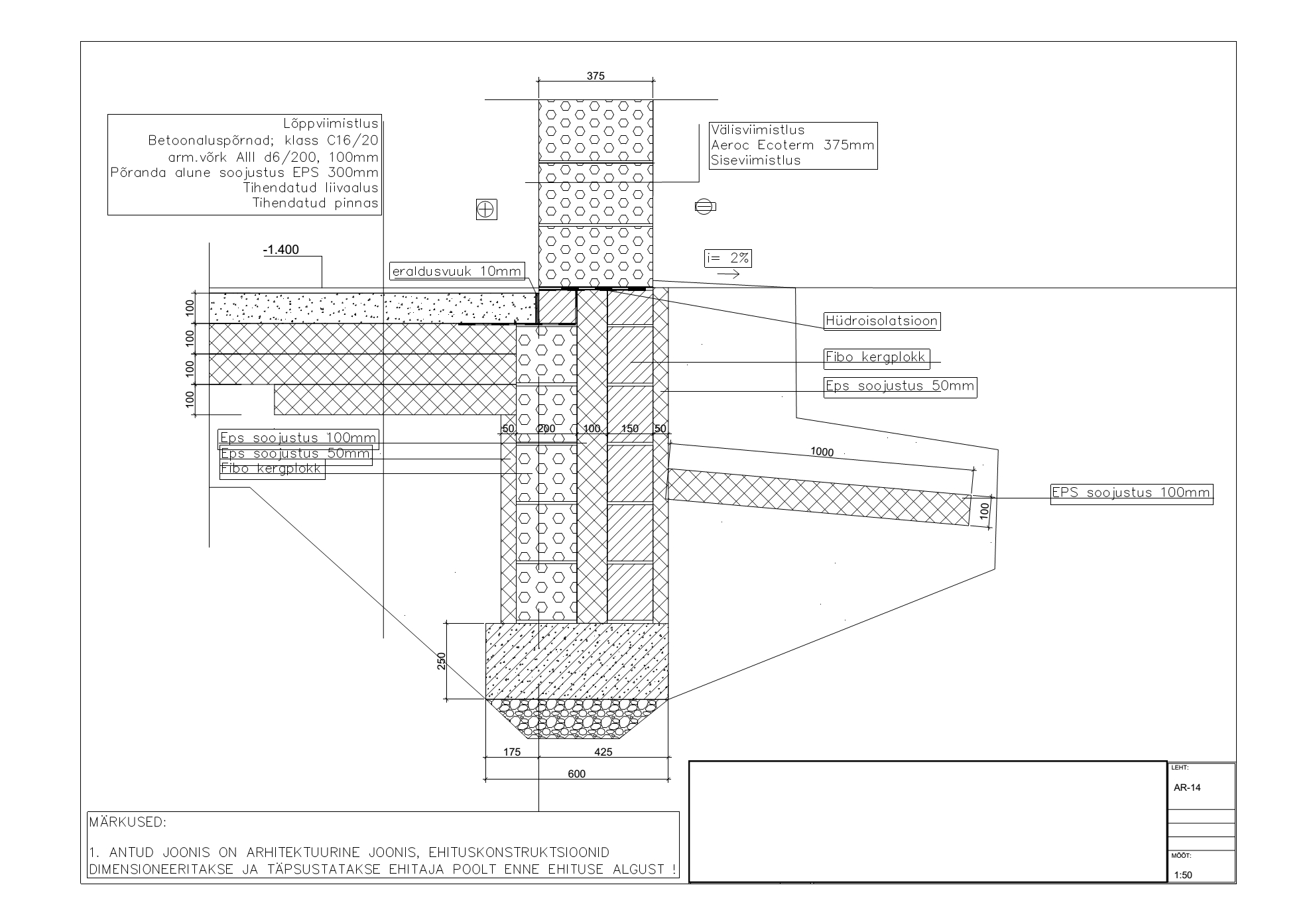
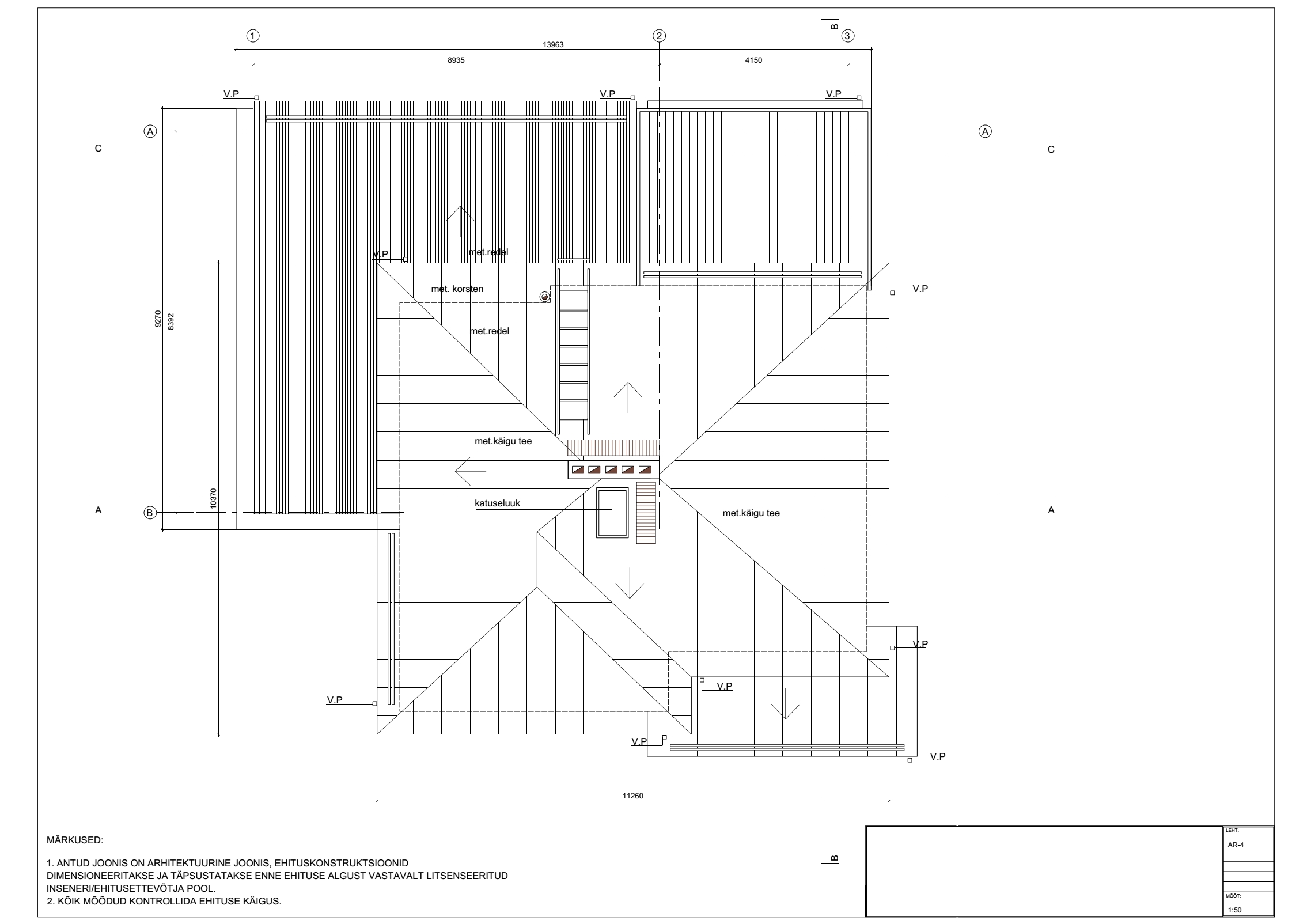
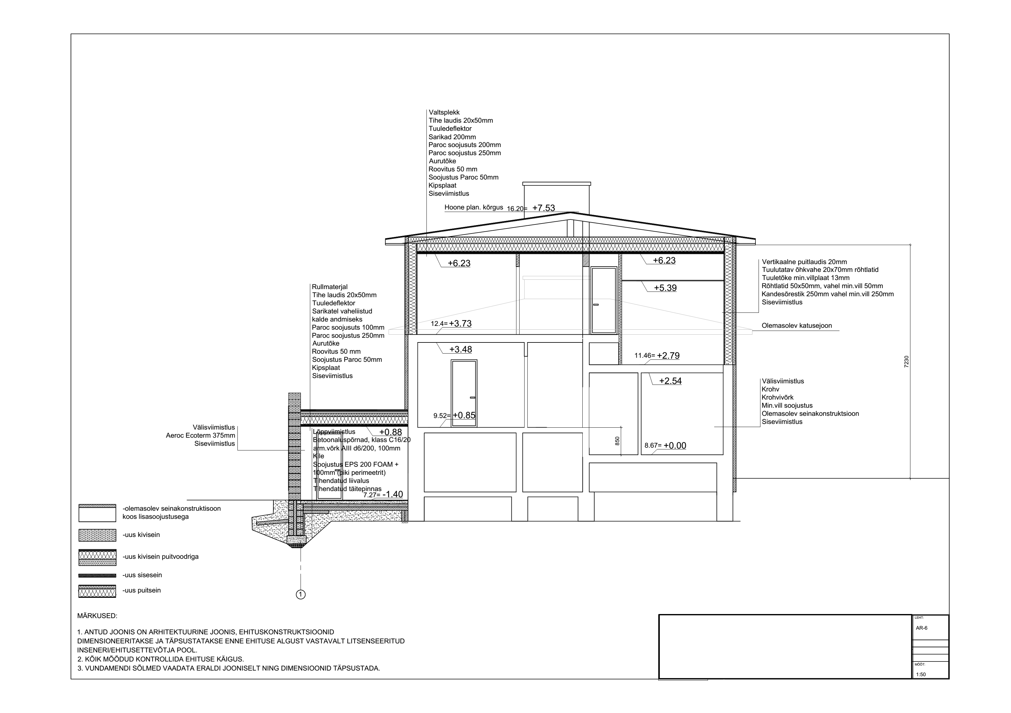
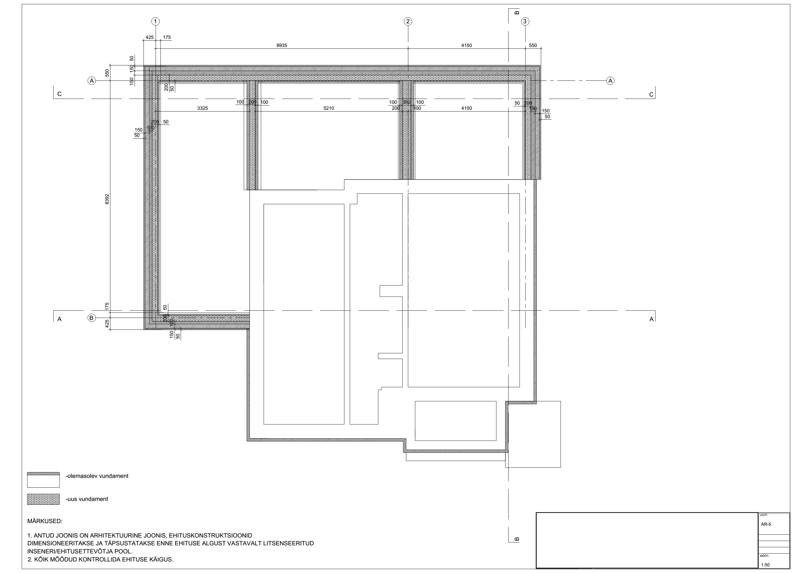
1960-ndatel ehitatud 1,5-kordsele majale teise korruse ja laienduse (garaaž, kuur, saun ja elutoa pikendus) ehitamine.
NB! Ehitusluba on olemas!

Hinnapakkumist soovime kogu ehitusele (vundament, seinad, katus, küte, elekter, fassaadide viimistlus) kuni siseviimistluseni.

Eraldi palume välja tuua:
1. eletritööd,
2. küttesüsteemid (õhk-vesisoojustuse lahendus ja õhksoojuskamina süsteem), palume süsteemide ja paigaldamise hinnad eraldi välja tuua. Õhk-vesisoojuspumba lahendus selline, et oleks ühe pumba taga kogu maja niiskete ruumide põrandaküte, tubades radiaatoritega küte ja maja soe vesi. Õhksoojuskaminaga peab saama kütta teise korruse kõiki kolme tuba.

Sisetöödena on vaja vaid esimese korruse köök-elutoa põrand (köögi osas kiviplaat põrandasoojustusega ning suure toa osas laudpõrand toonõliga) ning saunapõrand (üleni põrandasoojustus ja kivi).

Kõik materjalid arvestada hinnapakkumisse - välja arvatud uksed-aknad, põrandalauad ja -plaadid.

Esimese korruse juurdeehituse mahus võib alternatiivina pakkuda ka lisasoojustust mitte vajavat ehitusplokki.
Teise korruse ja katuse soojustamiseks võib alternatiivina pakkuda ka termovahu (PUR, ICYNENE vms) kasutamist.

Soovime etapiliselt lahti kirjutatud hinnapakkumist lisatud failina (vundamendi kaevamine, vundamendi ehitus, seinte ladumine jne). Mida põhjalikum on pakkumine, seda lihtsam on valikut teha.

Ehitusprahi utiliseerimine peab pakkumises sisalduma.
Olemasoleva tellistest välisvoodri eemaldab seintelt ja platsilt tellija.

Lisatud failides on täpsem kirjeldus nii olemasoleva kui juurde ehitatava kohta.
Kõik täpsustavad küsimused on teretulnud!

Pildid, video ja failid

Hanke korraldaja: eraisik ID46911

Pakkumised

Pakkumisi kokku: 2

Ettevõte Summa Käibemaks Lisatud Vestlus
Kasutaja ikoon ID46987
Pakkuja profiil Väike nool paremale
350 000€ Sisaldab KM Sisaldab KM 12.01.2018 Vestlus (0)
Kasutaja ikoon ID46975
Pakkuja profiil Väike nool paremale
650€ Ei sisalda Ei sisalda 03.02.2018 Vestlus (0)

Pakkumise kirjeldus:

tere. Kuna jäi aega napiks pakkumise tegemisega konkreetsemalt eraldi etappideks lahti kirjutatuna siis paneksin hinnad nii. Majakarp , seinad, must põrand, katus koos materjaliga ja aknad väljast kolmene pakett ja 82mm laia lengiga , rõdu-uks , võiks arvestada põrandaruutmeetri hinda ca 650.- ruut ja ülespoole, täpsemalt saaks teha pakkumise hiljem. ... Rohkem

Küsimused hanke korraldajale

Hanke korraldajale ei ole veel küsimusi esitatud.

Lisa küsimus

Lisa küsimus

Minu pakkumine

Reeglid

Pakkumise kirjelduse väli on mõeldud pakkumise detailsemaks lahti kirjutamiseks. Pikema teksti mugavaks sisestamiseks klikkige kasti paremal ülaservas oleval ikoonil.
Pakkumist tehes on keelatud postitada enda kontaktandmeid (nimi, telefon, aadress jne). Me jälgime ja analüüsime pakkumisi, et vältida pettuseid ja reeglite rikkumisi.
Rikkumise puhul kasutajakonto blokeeritakse.

 

Teisi töid samas valdkonnas

Valdkonnas "Üldehitus" on 31 aktiivset tööd

Maja värvimine

Asukoht: Harjumaa, Saue
Aega jäänud: 2p 5h
Tehtud pakkumisi: 5

Terassi õlitamine, 13,7 ruutu

Asukoht: Harjumaa, Saue
Aega jäänud: 5p 5h
Tehtud pakkumisi: 5

Vanemad teated:

Vaata kõiki

Sellel veebilehel kasutatakse küpsiseid. Kasutamist jätkates nõustute küpsiste kasutamisega.

Sulge
 
Minu pakkumine

Reeglid

Pakkumise kirjelduse väli on mõeldud pakkumise detailsemaks lahti kirjutamiseks. Pikema teksti mugavaks sisestamiseks klikkige kasti paremal ülaservas oleval ikoonil.
Pakkumist tehes on keelatud postitada enda kontaktandmeid (nimi, telefon, aadress jne). Me jälgime ja analüüsime pakkumisi, et vältida pettuseid ja reeglite rikkumisi.
Rikkumise puhul kasutajakonto blokeeritakse.