+ Lisa oma töö      

Otsid ehitajat "Projekteerimine" valdkonnast?

Parima pakkumise ja teostaja leidmiseks lisa oma töö.

Eramu põhiprojekt+ eriosade projektid

ID 42087

4567 vaatamist

Prindi

  • check Pakkumiste tegemine
    kuni 16.01.2018
  • check Võitja valik kuni
    23.01.2018
  • 3 Töö teostamine
    ja hinnang
Hanke lõpp: T, 16. jaanuar, 2018
Maakond: Harjumaa
Linn: Tallinn
Tööde algus: T, 09. jaanuar, 2018 (Soovituslik)
Tööde lõpp: K, 31. jaanuar, 2018 (Soovituslik)
Ehitusmaterjalid: Töö tegija poolt

Töö sisu

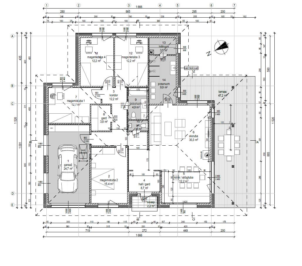
Sooviksin olemasoleva arhitektuurse eelprojekti (EP) põhjal põhiprojekti (PP) koostamist (netopinaga 165 m2).

Hoone on projekteeritud monoliitsest raudbetoonist plaatvundamendile.
Välisseinad laotakse 140mm Columbia betoneeritud ja armeeritud betoonplokkidest, mis kaetakse väljast 250mm EPS soojustuse ja krohviga. Kandvad siseseinad on 140mm ja mittekandvad seinad 90mm paksud (Columbia kivist), ning katuseks puitfermidel kivikatus.

Ehitusluba on juba väljastatud.

Lisaks peale põpiprojekti sooviksin saada ka pakkumist eriosadele:
vee- ja kanalisatsiooniprojekt
kütte- ja ventilatsiooniprojekt
elektriprojekt
nõrkvooluprojekt

Pakkumises palun välja tuua ka projekti orienteeruv valmimise tähtaeg.

Pildid, video ja failid

Hanke korraldaja: eraisik ID42103

Pakkumised

Pakkumisi kokku: 4

Ettevõte Summa Käibemaks Lisatud Vestlus
Kasutaja ikoon ID38306
Pakkuja profiil Väike nool paremale
4 500€ Ei sisalda Ei sisalda 10.01.2018 Vestlus (2)

Pakkumise kirjeldus:

Hind sisaldab:
¤ ilmselt pole olemas kehtivat (1a) geodeesiat, seega panin juurde. Kui selgub, et on siis muudan hinda;
¤ arh.osa põhiprojekti (PP) staadiumis;
¤ elekter-side + vesi-kanalisatsioon + küte-ventilatsioon hoonesisesed ja -välised osa PP staadiumis;
¤ projekt.projektijuhtimine (tagab tähtaegse, kvaliteetse ja ühilduva tulemuse, koos ... Rohkem

Kasutaja ikoon ID46491
Pakkuja profiil Väike nool paremale
4 620€ Sisaldab KM Sisaldab KM 11.01.2018 Vestlus (2)

Pakkumise kirjeldus:

Hinnapakkumises on põhiprojekti staadiumis:
Konstruktiivne projekt (1900 eur)
vee- ja kanalisatsiooniprojekt (850 eur)
kütte- ja ventilatsiooniprojekt (750 eur)
elektriprojekt (670 eur)
nõrkvooluprojekt (450 eur)
Arvestades et arhitektuursest projektist olemas digitaalne alus (nt .dwg või .rvt formaadis)
Mõistlikul määral hinna läbirääkimi ... Rohkem

Kasutaja ikoon ID46671
Pakkuja profiil Väike nool paremale
600€ Ei sisalda Ei sisalda 11.01.2018 Vestlus (0)

Pakkumise kirjeldus:

Tere. Pakkume oma klientidele projekt ja ehitus.Praegu me pakkume oma klientidele ehitust ja projekte.Praegu on kompaania.Ehituse tellimisel on projekt tasuta.Tootame ule eesti.meie kogemused voimaldavad meil pakkuda ehitust uhe ruut meetri poranda pinnal 600eur/m2

Kasutaja ikoon ID46459
Pakkuja profiil Väike nool paremale
1 200€ Ei sisalda Ei sisalda 12.01.2018 Vestlus (0)

Pakkumise kirjeldus:

Tere

Pakkume erisoade projektid:
vee- ja kanalisatsiooniprojekt
kütte- ja ventilatsiooniprojekt
elektriprojekt
nõrkvooluprojekt
kokku:1200.-

Küsimused hanke korraldajale

Küsimus: private ID38306   10.01.2018 10:47
Tere! Kas eriosade projekte soovite nii hoonesisesele osale kui ka hoonevälisele osale?

Teavita reeglite rikkumisest

Korraldaja vastus: 10.01.2018 11:18

Tere,<br />
<br />
Sooviksin eriosade projekti nii seest kui ka väljast.

Teavita reeglite rikkumisest

Küsimus: private ID38306   10.01.2018 11:26
Arusaadav, tänud!

Teavita reeglite rikkumisest

Korraldaja vastus: 10.01.2018 11:40

Tere,<br />
<br />
Tänan Teid pakkumise eest, geodeesia on olemas, mis oleks pakkumine ainult PP-le?

Teavita reeglite rikkumisest

Lisa küsimus

Lisa küsimus

Minu pakkumine

Reeglid

Pakkumise kirjelduse väli on mõeldud pakkumise detailsemaks lahti kirjutamiseks. Pikema teksti mugavaks sisestamiseks klikkige kasti paremal ülaservas oleval ikoonil.
Pakkumist tehes on keelatud postitada enda kontaktandmeid (nimi, telefon, aadress jne). Me jälgime ja analüüsime pakkumisi, et vältida pettuseid ja reeglite rikkumisi.
Rikkumise puhul kasutajakonto blokeeritakse.

 

Teisi töid samas valdkonnas

Valdkonnas "Projekteerimine" on 7 aktiivset tööd

no-img Pilt puudub

1-kordse 120 m2 elumaja põhiprojekt

Asukoht: Harjumaa, Metsanurme
Aega jäänud: 8p 5h
Tehtud pakkumisi: 4

no-img Pilt puudub

Saunamaja eelprojekt ehitusteatiseks

Asukoht: Lääne-Virumaa
Aega jäänud: 1p 5h
Tehtud pakkumisi: 3

Vanemad teated:

Vaata kõiki

Sellel veebilehel kasutatakse küpsiseid. Kasutamist jätkates nõustute küpsiste kasutamisega.

Sulge
 
Minu pakkumine

Reeglid

Pakkumise kirjelduse väli on mõeldud pakkumise detailsemaks lahti kirjutamiseks. Pikema teksti mugavaks sisestamiseks klikkige kasti paremal ülaservas oleval ikoonil.
Pakkumist tehes on keelatud postitada enda kontaktandmeid (nimi, telefon, aadress jne). Me jälgime ja analüüsime pakkumisi, et vältida pettuseid ja reeglite rikkumisi.
Rikkumise puhul kasutajakonto blokeeritakse.