+ Lisa oma töö      

Otsid ehitajat "Betoonitööd" valdkonnast?

Parima pakkumise ja teostaja leidmiseks lisa oma töö.

Betoonpõranda valamine

ID 42195

2734 vaatamist

Prindi

  • check Pakkumiste tegemine
    kuni 24.02.2018
  • check Võitja valik kuni
    03.03.2018
  • 3 Töö teostamine
    ja hinnang
Hanke lõpp: L, 24. veebruar, 2018
Maakond: Põlvamaa
Tööde algus: P, 01. aprill, 2018 (Soovituslik)
Tööde lõpp: E, 30. aprill, 2018 (Soovituslik)
Ehitusmaterjalid: Töö tegija poolt

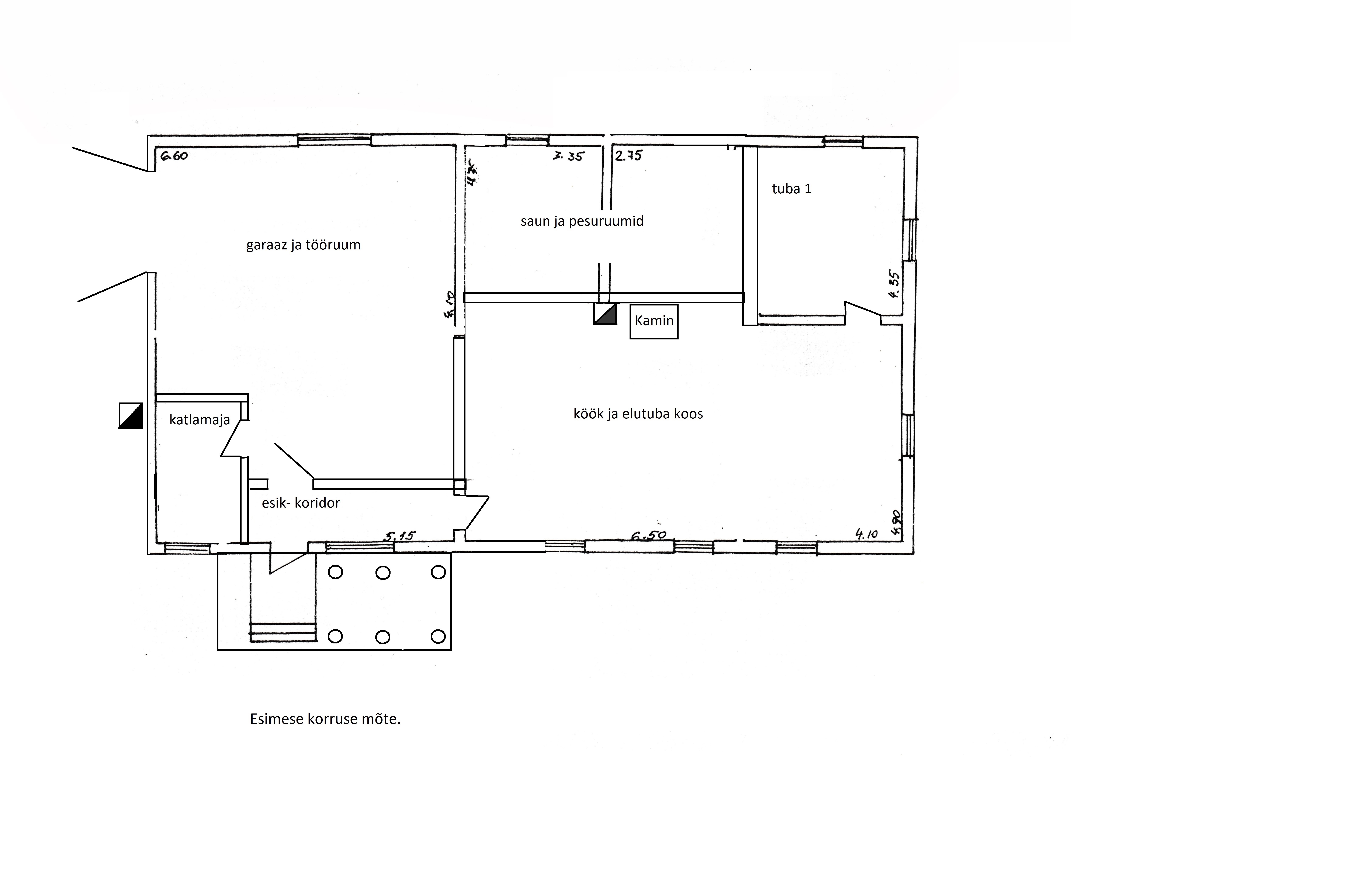
Töö sisu

160 m2 põranda pinda 5ruumi. 10cm paksune kiht valada. Põrandal küttetorustik veetud. Vannitoas kerge kalle trapini teha.


Teie poolt siis betoon koos kopterdamisega


Pildid, video ja failid

Hanke korraldaja: eraisik ID47079

Pakkumised

Pakkumisi kokku: 5

Ettevõte Summa Käibemaks Lisatud Vestlus
Kasutaja ikoon ID38464
Pakkuja profiil Väike nool paremale
2 300€ Ei sisalda Ei sisalda 25.01.2018 Vestlus (0)

Pakkumise kirjeldus:

Tere. Betoon, valu ja lihvimine.

Kasutaja ikoon ID46671
Pakkuja profiil Väike nool paremale
8€ Sisaldab KM Sisaldab KM 25.01.2018 Vestlus (0)

Pakkumise kirjeldus:

8 euri ainult töö raha.

Kasutaja ikoon ID41471
Pakkuja profiil Väike nool paremale
22€ Sisaldab KM Sisaldab KM 28.01.2018 Vestlus (0)

Pakkumise kirjeldus:

Tere selline oleks meiepoolne ruutmeeyri hind koos betooni pumpamise, valamise ja pinna viimistlusega vastavalt kliendi soovile.

Kasutaja ikoon ID46537
Pakkuja profiil Väike nool paremale
2 576€ Ei sisalda Ei sisalda 01.02.2018 Vestlus (0)

Pakkumise kirjeldus:

Hind sisaldab betooni, valamist, lihvimist, servalinti. Täpne hind selgub peale ülevaatust.

Kasutaja ikoon ID36202
Pakkuja profiil Väike nool paremale
16€ Ei sisalda Ei sisalda 19.02.2018 Vestlus (0)

Pakkumise kirjeldus:

Tere.Hind on 16 €-i ruutmeeter ,sisaldab betooni ,betoneerimist ning pinnaviimistlust.

Küsimused hanke korraldajale

Hanke korraldajale ei ole veel küsimusi esitatud.

Lisa küsimus

Lisa küsimus

Minu pakkumine

Reeglid

Pakkumise kirjelduse väli on mõeldud pakkumise detailsemaks lahti kirjutamiseks. Pikema teksti mugavaks sisestamiseks klikkige kasti paremal ülaservas oleval ikoonil.
Pakkumist tehes on keelatud postitada enda kontaktandmeid (nimi, telefon, aadress jne). Me jälgime ja analüüsime pakkumisi, et vältida pettuseid ja reeglite rikkumisi.
Rikkumise puhul kasutajakonto blokeeritakse.

 

Teisi töid samas valdkonnas

Valdkonnas "Betoonitööd" on 6 aktiivset tööd

Betoonist platsi valamine väljas.

Asukoht: Harjumaa, Luige
Aega jäänud: 8h 52 min
Tehtud pakkumisi: 4

Betoonpõranda valu

Asukoht: Harjumaa, Jõelähtme
Aega jäänud: 2p 8h
Tehtud pakkumisi: 3

Vanemad teated:

Vaata kõiki

Sellel veebilehel kasutatakse küpsiseid. Kasutamist jätkates nõustute küpsiste kasutamisega.

Sulge
 
Minu pakkumine

Reeglid

Pakkumise kirjelduse väli on mõeldud pakkumise detailsemaks lahti kirjutamiseks. Pikema teksti mugavaks sisestamiseks klikkige kasti paremal ülaservas oleval ikoonil.
Pakkumist tehes on keelatud postitada enda kontaktandmeid (nimi, telefon, aadress jne). Me jälgime ja analüüsime pakkumisi, et vältida pettuseid ja reeglite rikkumisi.
Rikkumise puhul kasutajakonto blokeeritakse.