+ Lisa oma töö      

Otsid ehitajat "Projekteerimine" valdkonnast?

Parima pakkumise ja teostaja leidmiseks lisa oma töö.

Veevarustuse ja kanalisatsiooni projekteerimine

ID 42226

1015 vaatamist

Prindi

  • check Pakkumiste tegemine
    kuni 28.02.2018
  • check Võitja valik kuni
    07.03.2018
  • 3 Töö teostamine
    ja hinnang
Hanke lõpp: K, 28. veebruar, 2018
Maakond: Tartumaa
Linn: Tartu
Tööde algus: E, 29. jaanuar, 2018 (Soovituslik)
Tööde lõpp: K, 28. veebruar, 2018 (Soovituslik)
Ehitusmaterjalid: Töö tellija poolt

Töö sisu

Plaanis remont korteris, tahame kööki teises ruumis teha. On vaja torud õigesti üle viia. Seoses sellega on vaja teha projekti.
Viiekorruseline paneelmaja, korter asub viiendal korrusel.

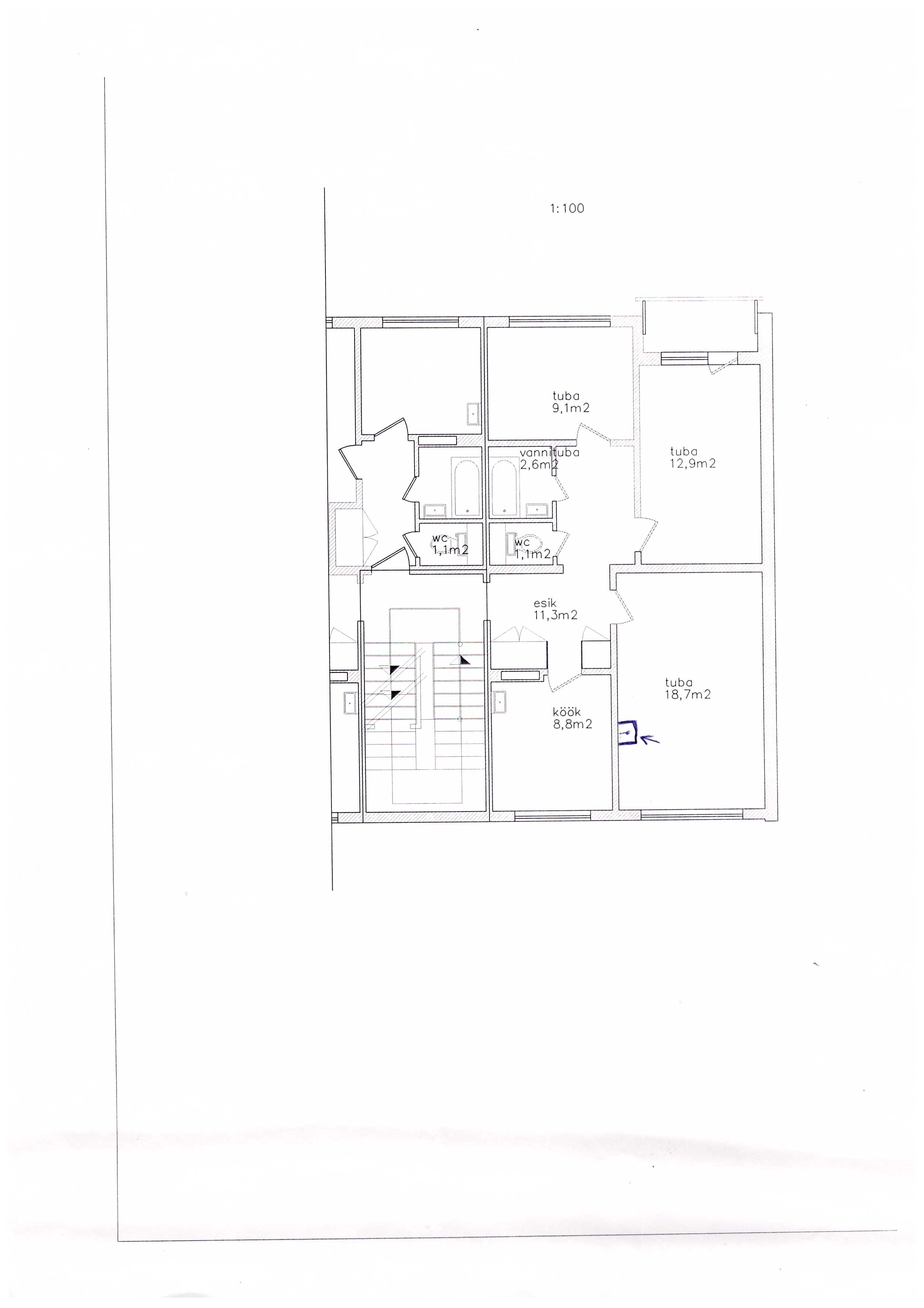
Piltides lisatud korteri plaan, kus noolega märgitud koht, kuhu on planeeritud valamu.

Pildid, video ja failid

Hanke korraldaja: eraisik ID47108

Pakkumised

Pakkumisi kokku: 1

Ettevõte Summa Käibemaks Lisatud Vestlus
Kasutaja ikoon ID38306
Pakkuja profiil Väike nool paremale
500€ Ei sisalda Ei sisalda 30.01.2018 Vestlus (0)

Pakkumise kirjeldus:

kogenud insener koostab vajaliku projekti

Küsimused hanke korraldajale

Hanke korraldajale ei ole veel küsimusi esitatud.

Lisa küsimus

Lisa küsimus

Minu pakkumine

Reeglid

Pakkumise kirjelduse väli on mõeldud pakkumise detailsemaks lahti kirjutamiseks. Pikema teksti mugavaks sisestamiseks klikkige kasti paremal ülaservas oleval ikoonil.
Pakkumist tehes on keelatud postitada enda kontaktandmeid (nimi, telefon, aadress jne). Me jälgime ja analüüsime pakkumisi, et vältida pettuseid ja reeglite rikkumisi.
Rikkumise puhul kasutajakonto blokeeritakse.

 

Teisi töid samas valdkonnas

Valdkonnas "Projekteerimine" on 7 aktiivset tööd

no-img Pilt puudub

1-kordse 120 m2 elumaja põhiprojekt

Asukoht: Harjumaa, Metsanurme
Aega jäänud: 8p 8h
Tehtud pakkumisi: 4

no-img Pilt puudub

Saunamaja eelprojekt ehitusteatiseks

Asukoht: Lääne-Virumaa
Aega jäänud: 1p 8h
Tehtud pakkumisi: 3

Vanemad teated:

Vaata kõiki

Sellel veebilehel kasutatakse küpsiseid. Kasutamist jätkates nõustute küpsiste kasutamisega.

Sulge
 
Minu pakkumine

Reeglid

Pakkumise kirjelduse väli on mõeldud pakkumise detailsemaks lahti kirjutamiseks. Pikema teksti mugavaks sisestamiseks klikkige kasti paremal ülaservas oleval ikoonil.
Pakkumist tehes on keelatud postitada enda kontaktandmeid (nimi, telefon, aadress jne). Me jälgime ja analüüsime pakkumisi, et vältida pettuseid ja reeglite rikkumisi.
Rikkumise puhul kasutajakonto blokeeritakse.