+ Lisa oma töö      

Otsid ehitajat "Üldehitus" valdkonnast?

Parima pakkumise ja teostaja leidmiseks lisa oma töö.

Hange on lõppenud!

Võitjaks osutus kasutaja ID 46975

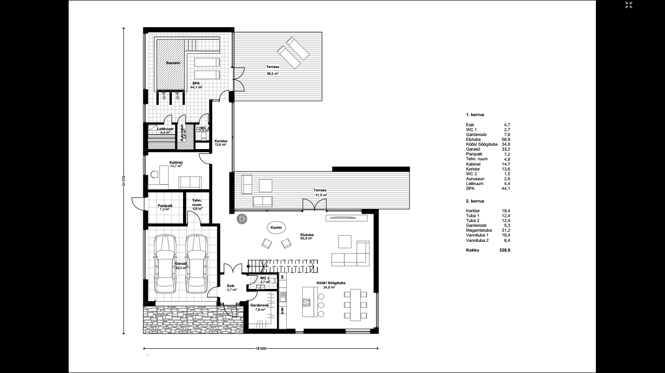
Võtmed kätte maja (2-korruseline)

ID 42407

3383 vaatamist

Prindi

  • check Pakkumiste tegemine
    kuni 24.02.2018
  • check Võitja valik kuni
    03.03.2018
  • 3 Töö teostamine
    ja hinnang
Hanke lõpp: L, 24. veebruar, 2018
Maakond: Tartumaa
Muu asula: Nõo alevik
Tööde algus: T, 01. mai, 2018 (Soovituslik)
Tööde lõpp: E, 05. november, 2018 (Soovituslik)
Ehitusmaterjalid: Töö tegija poolt

Töö sisu

Tere,

Sooviks hinnapakkumist majale. Lisaks pakkuda eraldi ka "valge karbi" kujuna.
Pakkuda ka võib teisi materjale mis pakkuja poolt tundub, et võiksid paremad olla.
Krunt on tasane ja kõrghaljastus puudub. Hind peab sisaldama ka ehitusloa taotlust.



1. Lintvundament
1.1 Mahamärkimine, teostusjoonised
1.2 Pinnase koorimine, kaevetööd
1.3 Vundamendi taldmiku killustikupadja rajamine
1.4 Vundamendi taldmiku betoneerimine
1.5 Vundamendi müüritise ladumine Fibo
1.6 Vertikaalne soojustus
1.7 Tagasitäide liivaga, tihendamine kihtide kaupa, kihio paksus max. 500mm
1.8 Terrassi vundamendipostide rajamine

2.Katus ja vihmavesi


3. Välisfassaad ja terrass
3.1 Fassaadi alusroovituse paigaldus
3.2 Fassaad - krohv (pakkuda ka kiviga hind eraldi)
3.3 Aknapalede paigaldus
3.4 Terass vastavalt plaani suurusele (puit-plastik komposiit)
3.5 Vundamendi sokli viimistlus - krohv

4.Üldehitus
4.1 Põranda horisontaalne soojustus,vähemalt EPS100 150mm
4.2 Põrandaplaadi betoneerimine (kile; armatuurvõrk Ø6 150x150; betoon C25/30)
4.3 Saun
4.3.1 Sauna seinte karkassi paigaldus koos soojustamisega
4.3.2 Sauna voodrilaua paigaldus
4.3.3 Sauna lava ehitus
4.3.4 Aurusauna ehitus
4.4 Saunakerise paigaldus (elektriküttega keris)
4.5 Kamin (Ahi/moodukamin)
4.5.1 Kahe lõõriga moodulkorsten
4.8 Laematerjalide paigaldus - kips
4.9 Kandvate siseseinte ehitus
4.10 Jäigastavate-ja siseseinte ehitus
4.11 Akende/uste palede viimistlus

5.Eriosad
5.1 Küte
5.1.1 Pelletkatel
5.2 Põrandakütte kollektorsõlm
5.3 Põrandakütte torustik (mõlemal korrusel)
5.4 Soojustagastusega sundventilatsioon
5.5 Elektritööd
5.5.1Maanduselektroodide paigaldus, maanduse teostamine, mõõtmine
5.5.2 Kilbi komplekteerimine ja paigaldamine
5.5.3 Majasisene kaabelduse paigaldamine
5.5.4 Pistikupesade ja lülitite paigaldamine
5.5.5Nõrkvoolu süsteemi ehitus (valve, side, TV)

5.6 Vesi ja kanalisatsioon
Tarbeveesõlme ehitus
Tarbeveetorustik
Veetrassi läbiviik vundamendist - 1jm majast
Kanalisatsioonitorustiku hoonesisene paigaldus - 1jm majast
Majaväline kastmiskraan 2tk

6. Sise-viimistlustööd
6.1 Plaatimistööd - Plaadid tellija poolt
6.2 Plaaditavate põrandate nakkedispersioon + hüdroisolatsioon
6.3 Plaaditavate seinte nakkedispersioon + hüdroisolatsioon
6.4 Plaatide asukohad: Pesemisruum põrand+sein; Esik - põrand
6.5 Naturaalparketi paigaldus ülejäänud ruumidesse /vastavalt plaanile- Parkett tellija poolt
6.6 Põrandaliistud
6.7 Lagede viimistlus, pahteldamine ja värvimine
6.8 Seinte viimistlus, pahteldamine ja värvimine (tapeet tellija poolt ja paigaldus hinnas)
6.9 Klaasist saunauks
6.10 Avapõskede paigaldus

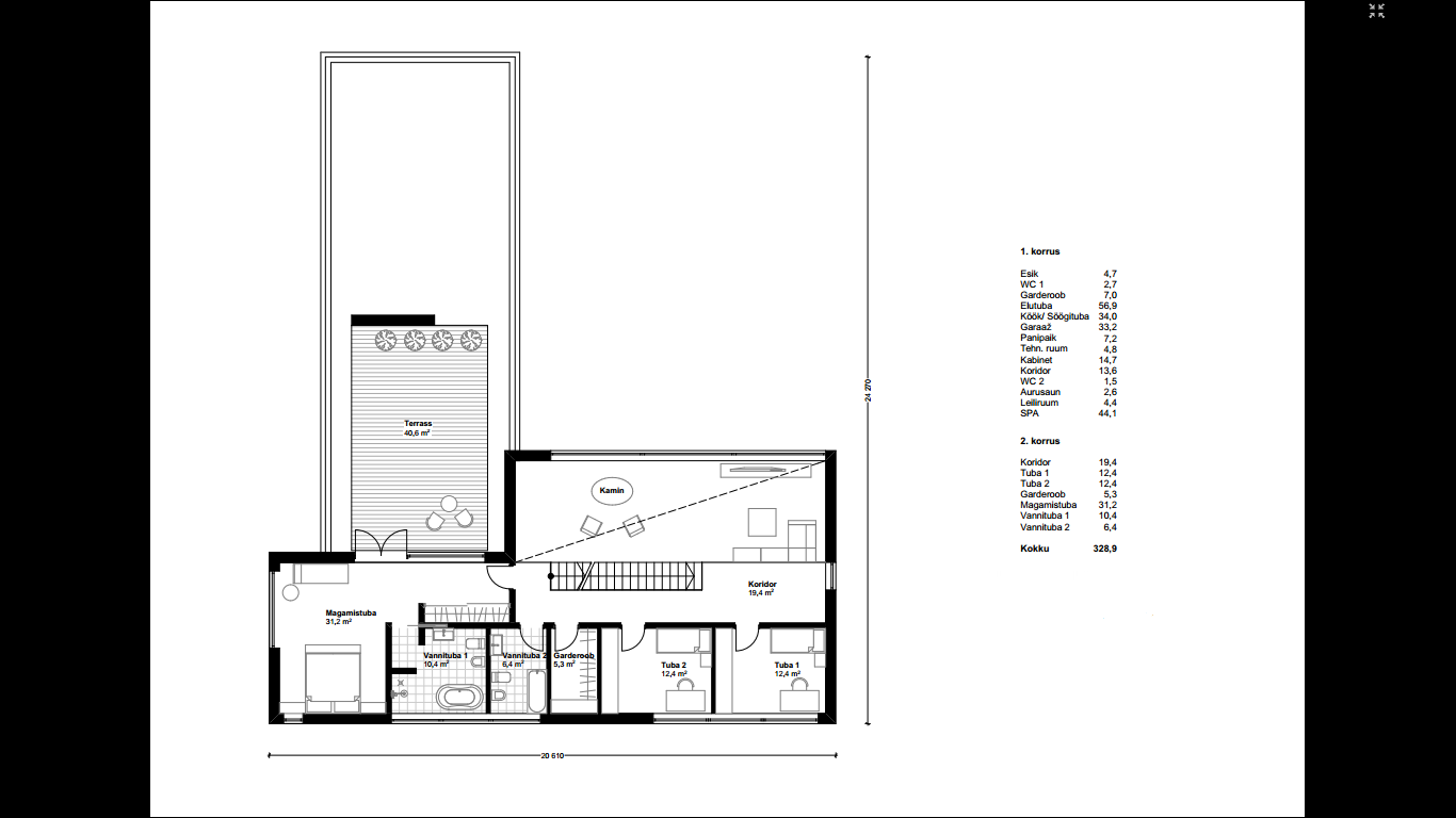
Teisel korrusel ehitafa garderoobist ja vannitoast neljas tuba.

Pildid, video ja failid

Hanke korraldaja: eraisik ID34349

Pakkumised

Pakkumisi kokku: 2

Ettevõte Summa Käibemaks Lisatud Vestlus
Kasutaja ikoon ID46671
Pakkuja profiil Väike nool paremale
800€ Sisaldab KM Sisaldab KM 22.02.2018 Vestlus (0)

Pakkumise kirjeldus:

Tere. Pakkume oma klientidele projekt ja ehitus.Praegu me pakkume oma klientidele ehitust ja projekte.Tootame ule eesti.meie kogemused voimaldavad meil pakkuda ehitust uhe ruut meetri poranda pinnal 800 eur/m2.
Meil on ule 15 aasta kogemusi.

Kasutaja ikoon ID46975
Pakkuja profiil Väike nool paremale
720€ Ei sisalda Ei sisalda 24.02.2018 Vestlus (1)

Pakkumise kirjeldus:

tere. Pakkumine esialgne ja tehtud arvestusega 720.- euri põrandaruutmeetri kohta. See hind sisaldab majakarbi ehitust, ehk väljast valmis . Täpsem hind juba kui asi konkreetsemaks läheks . Ettemaks on materjalidele ja jooksvate kulude katteks, töörahad jaotaks etappide kaupa, peale etappide valmimist. Saate ka tutvuda momendil ehituses olevate majade ... Rohkem

Küsimused hanke korraldajale

Hanke korraldajale ei ole veel küsimusi esitatud.

Lisa küsimus

Lisa küsimus

Minu pakkumine

Reeglid

Pakkumise kirjelduse väli on mõeldud pakkumise detailsemaks lahti kirjutamiseks. Pikema teksti mugavaks sisestamiseks klikkige kasti paremal ülaservas oleval ikoonil.
Pakkumist tehes on keelatud postitada enda kontaktandmeid (nimi, telefon, aadress jne). Me jälgime ja analüüsime pakkumisi, et vältida pettuseid ja reeglite rikkumisi.
Rikkumise puhul kasutajakonto blokeeritakse.

 

Teisi töid samas valdkonnas

Valdkonnas "Üldehitus" on 46 aktiivset tööd

Seinte Värvimis tööd

Asukoht: Harjumaa, Tallinn
Aega jäänud: 1p 1h
Tehtud pakkumisi: 6

Vannitoa remont

Asukoht: Harjumaa, Laagri
Aega jäänud: 1h 52 min
Tehtud pakkumisi: 5

Vanemad teated:

Vaata kõiki

Sellel veebilehel kasutatakse küpsiseid. Kasutamist jätkates nõustute küpsiste kasutamisega.

Sulge
 
Minu pakkumine

Reeglid

Pakkumise kirjelduse väli on mõeldud pakkumise detailsemaks lahti kirjutamiseks. Pikema teksti mugavaks sisestamiseks klikkige kasti paremal ülaservas oleval ikoonil.
Pakkumist tehes on keelatud postitada enda kontaktandmeid (nimi, telefon, aadress jne). Me jälgime ja analüüsime pakkumisi, et vältida pettuseid ja reeglite rikkumisi.
Rikkumise puhul kasutajakonto blokeeritakse.