+ Lisa oma töö      

Otsid ehitajat "Elektritööd" valdkonnast?

Parima pakkumise ja teostaja leidmiseks lisa oma töö.

Uue eramu elektriprojekt ja projektijärgne apigaldiste tegemine

ID 42449

2216 vaatamist

Prindi

  • check Pakkumiste tegemine
    kuni 28.02.2018
  • check Võitja valik kuni
    07.03.2018
  • 3 Töö teostamine
    ja hinnang
Hanke lõpp: K, 28. veebruar, 2018
Maakond: Harjumaa
Muu asula: Saku vald
Tööde algus: E, 28. mai, 2018 (Soovituslik)
Tööde lõpp: P, 10. juuni, 2018 (Soovituslik)
Ehitusmaterjalid: Töö tegija poolt

Töö sisu

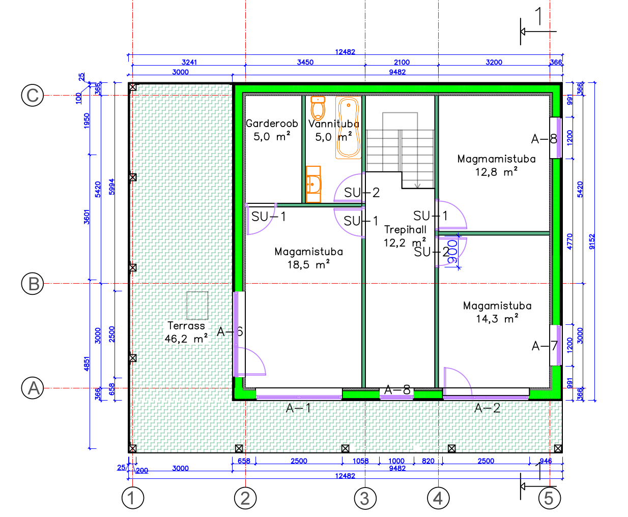
Sooviks ehitatavale eramajale pakkumist elektriprojekti koostamisele ja elektrisüsteemi väljaehitamisele (sisetööd, välitööd, liitumine).

Maja väliseinad on tehases toodetud seinamoodulid, sinna valatakse juhtmekõrid ja pesad sisse projektijärgsetesse kohtadesse.

Siseseinad on enamus Col kivi 140 või 90, teisel korrusel tubade vahelised seinad on kips karkassil, koridor Col 90 kivi.

Igasse tuppa tuleb lüliti (suur tuba, köök ja vanitoad on kaheste lülititega) + ning nende kõrvale põrandakütte regulaatori pesa (ainult toide, andmeside on juhtmevaba), trepil kohal valguse lülitid 1 ja 2 korrusel.

Nõrkvoolu paigaldisi pole plaanis.

Stepslite asukohad on 2-3 asukohta igas ruumis. Tehnoruumis Õhk-vesi soojuspumba (sise/väliosa), ventilatsiooni toide.

Kilbi, kui võimalik, paigaldkas tehnoruumi.

Pildid, video ja failid

Hanke korraldaja: eraisik ID47358

Pakkumised

Pakkumisi kokku: 0

Küsimused hanke korraldajale

Hanke korraldajale ei ole veel küsimusi esitatud.

Lisa küsimus

Lisa küsimus

Minu pakkumine

Reeglid

Pakkumise kirjelduse väli on mõeldud pakkumise detailsemaks lahti kirjutamiseks. Pikema teksti mugavaks sisestamiseks klikkige kasti paremal ülaservas oleval ikoonil.
Pakkumist tehes on keelatud postitada enda kontaktandmeid (nimi, telefon, aadress jne). Me jälgime ja analüüsime pakkumisi, et vältida pettuseid ja reeglite rikkumisi.
Rikkumise puhul kasutajakonto blokeeritakse.

 

Teisi töid samas valdkonnas

Valdkonnas "Elektritööd" on 8 aktiivset tööd

Põrandakütte reostaadi paigaldus

Asukoht: Harjumaa, Rannamõisa
Aega jäänud: 2p 7h
Tehtud pakkumisi: 6

no-img Pilt puudub

Soovin hinnapakkumist elektritöödele 3-toalises korteris Lasnamäel

Asukoht: Harjumaa, Tallinn
Aega jäänud: 4p 7h
Tehtud pakkumisi: 6

Vanemad teated:

Vaata kõiki

Sellel veebilehel kasutatakse küpsiseid. Kasutamist jätkates nõustute küpsiste kasutamisega.

Sulge
 
Minu pakkumine

Reeglid

Pakkumise kirjelduse väli on mõeldud pakkumise detailsemaks lahti kirjutamiseks. Pikema teksti mugavaks sisestamiseks klikkige kasti paremal ülaservas oleval ikoonil.
Pakkumist tehes on keelatud postitada enda kontaktandmeid (nimi, telefon, aadress jne). Me jälgime ja analüüsime pakkumisi, et vältida pettuseid ja reeglite rikkumisi.
Rikkumise puhul kasutajakonto blokeeritakse.