+ Lisa oma töö      

Otsid ehitajat "Korterite remont" valdkonnast?

Parima pakkumise ja teostaja leidmiseks lisa oma töö.

Hange on lõppenud!

Võitjaks osutus kasutaja ID 46427

Korraldaja hinnang tehtud tööle

5.0
10.06.2018
Töökiirus: 12345
Kvaliteet: 12345
Hind: 12345

Väga asjalik mees. Soovitan kindlasti ja juba olen ka soovitanud. - Tarmo T.

Terve korteri renoveerimistööd 68m²

ID 42555

5130 vaatamist

Prindi

  • check Pakkumiste tegemine
    kuni 14.03.2018
  • check Võitja valik kuni
    21.03.2018
  • 3 Töö teostamine
    ja hinnang
Hanke lõpp: K, 14. märts, 2018
Maakond: Tartumaa
Linn: Tartu
Tööde algus: E, 19. märts, 2018 (Kohustuslik)
Tööde lõpp: N, 19. aprill, 2018
Ehitusmaterjalid: Töö tellija poolt

Töö sisu

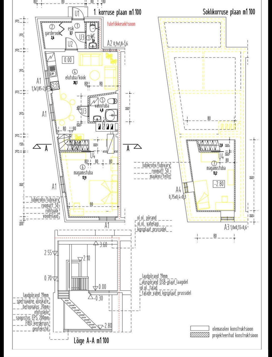
Korter põrandapindalaga ca 68m², millest esimesel korrusel 54m² ning soklikorrusel ca 14m².
Vaja teha järgnevad tööd.
Esimese asjana lammutustööd: pörandad, laed puhtaks ning vaheseinad täiesti minema, kuna wc ja vannituba tulevad uude kohta.
Ehitusööd:
Musta lae kõrgus 3.5m lagi tuua 3m peale metallkarkassiga ja paigaldada ühekordne kipsplaat. Kõik põrandad v.a vannituba(ca 4m² ) laudpõrandad laagidel.
Seintes lubikrohv, vajalik paranduste tegimine ning viimislus lõppvärviga.
Vaja teha terve korteri elektritööd, torutööd.
Lõpplahenduses tuleb avatud köök/elutuba, ning 2 eraldi magamistuba-1 esimesel korrusel 2. soklikorrusel.

Vannituba 4m²: põrand ja seinad plaadi alla, sisustuse paigaldan ise.
Wc 1.6m²: seinad kips+värv, põrand laud.

Võimalusel võtaksin kõik tööd ühelt tegijalt, kuid võib ka pakkuda etapiti.
Materjalid minu poolt.
Pakkumises palun välja tuua m² hinnad ja elektritöödel ning torutöödel komplekti hinnad.

Pildid, video ja failid

Hanke korraldaja: ettevõte ID44458

Pakkumised

Pakkumisi kokku: 5

Ettevõte Summa Käibemaks Lisatud Vestlus
Kasutaja ikoon ID47038
Pakkuja profiil Väike nool paremale
40€ Ei sisalda Ei sisalda 12.03.2018 Vestlus (6)

Pakkumise kirjeldus:

Tere,lammutustööd 3€/m2 , plaatimine 28€/m2 , põrand 40€/m2 , lagi 18€/m2 , sein(kips&maalerdus) 11€/m2 , elektri-ja torutööde, ning krohvi parandustööde hind 17€/h

Kasutaja ikoon ID46427
Pakkuja profiil Väike nool paremale
800€ Sisaldab KM Sisaldab KM 13.03.2018 Vestlus (4)

Pakkumise kirjeldus:

Pakuksin elektritööde terviklahendust kogu korterile. Pakkumise hind sisaldab ainult tööraha kuna materjalid pidid tulema teie poolt nagu ma aru sain. Hind sisaldab kõike, kaablite seintesse freesimist ja vedamist, kilbi paigaldust ja ühendamist, pistikupesade ja valgustite paigaldust.

Kasutaja ikoon ID47339
Pakkuja profiil Väike nool paremale
22€ Sisaldab KM Sisaldab KM 14.03.2018 Vestlus (0)

Pakkumise kirjeldus:

Tervist pakkumine tehtud tunnitööle ilma materjalita,aga saame aidata materjali ostu ja transpordiga.Töö on lepinguline ja garantiiga.Ettemaks on korteri üürimiseks töölistele kuna tegu Saaremaa Firmaga.

Tervitades.Tiit

Kasutaja ikoon ID39359
Pakkuja profiil Väike nool paremale
18€ Sisaldab KM Sisaldab KM 14.03.2018 Vestlus (0)

Pakkumise kirjeldus:

Tere!

Hind sisaldab ühete töömeest.
Töödele 12 kuu garantii.

Kasutaja ikoon ID44108
Pakkuja profiil Väike nool paremale
12€ Ei sisalda Ei sisalda 14.03.2018 Vestlus (0)

Pakkumise kirjeldus:

Tere!

Meiepoolne pakkumine tunnitööde alusel:

Lammutustööd 12 €/h

Renoveerimistööd 17 €/h


Ekektri ja torutööd vastavalt kokkuleppele peale objekti ülevaatust.


Omame varasemat renoveerimiskogemust.

Ettevõte omab MTR registreeringut.



Ladusale koostööle lootma jäädes.

Rainer,

Küsimused hanke korraldajale

Küsimus: private ID3098   13.03.2018 16:07
Tere.Kas tunnihinda on mõtet pakkuda,ei hakkaks isegi üritama konkreetseid hindu mõtlema,kõikumine võib tulla ikkagi üle 100protsendi

Teavita reeglite rikkumisest

Korraldaja vastus: 13.03.2018 19:33

Tere, pakkuda on ikka mõtet, hinnaklass näitab ära kas saame kaubale või mitte!

Teavita reeglite rikkumisest

Lisa küsimus

Lisa küsimus

Minu pakkumine

Reeglid

Pakkumise kirjelduse väli on mõeldud pakkumise detailsemaks lahti kirjutamiseks. Pikema teksti mugavaks sisestamiseks klikkige kasti paremal ülaservas oleval ikoonil.
Pakkumist tehes on keelatud postitada enda kontaktandmeid (nimi, telefon, aadress jne). Me jälgime ja analüüsime pakkumisi, et vältida pettuseid ja reeglite rikkumisi.
Rikkumise puhul kasutajakonto blokeeritakse.

 

Teisi töid samas valdkonnas

Valdkonnas "Korterite remont" on 4 aktiivset tööd

Ukselingi vahetus

Asukoht: Harjumaa, Tallinn
Aega jäänud: 1p 9h
Tehtud pakkumisi: 1

Vanemad teated:

Vaata kõiki

Sellel veebilehel kasutatakse küpsiseid. Kasutamist jätkates nõustute küpsiste kasutamisega.

Sulge
 
Minu pakkumine

Reeglid

Pakkumise kirjelduse väli on mõeldud pakkumise detailsemaks lahti kirjutamiseks. Pikema teksti mugavaks sisestamiseks klikkige kasti paremal ülaservas oleval ikoonil.
Pakkumist tehes on keelatud postitada enda kontaktandmeid (nimi, telefon, aadress jne). Me jälgime ja analüüsime pakkumisi, et vältida pettuseid ja reeglite rikkumisi.
Rikkumise puhul kasutajakonto blokeeritakse.