+ Lisa oma töö      

Otsid ehitajat "Projekteerimine" valdkonnast?

Parima pakkumise ja teostaja leidmiseks lisa oma töö.

Ühekordsele ühepereelamu eriosade projektid

ID 42577

3003 vaatamist

Prindi

  • check Pakkumiste tegemine
    kuni 21.03.2018
  • check Võitja valik kuni
    28.03.2018
  • 3 Töö teostamine
    ja hinnang
Hanke lõpp: K, 21. märts, 2018
Maakond: Harjumaa
Tööde algus: N, 22. märts, 2018 (Soovituslik)
Tööde lõpp: P, 15. aprill, 2018 (Soovituslik)
Ehitusmaterjalid: Töö tegija poolt

Töö sisu

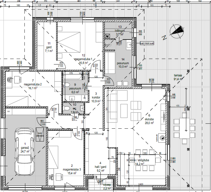
Sooviksin tellida ühekordsele ühepereelamule järgnevad eriosade projektid TP mahus:


Vesi- ja kanalisatsioon (vallalt on väljastatud tehnilised tingimused, liitumispunktid asuvad kinnistu piiril)

Kütte- ja ventilatsioon (maaküte eeldatavasti Nibe ja soojustagastusega ventilatsioon)

Elekter- ja nõrkvool (kinnistu piiril on välja ehitatud liitumispunkt elektriga liitumiseks, leping olemas)

Projekteerimisel tuleb kasutada EV kehtivaid ehitusnorme ja eeskirju.
Projekteerimistööde teostamiseks peab projekteerija omama vajalikke lubasi ja registreeringuid majandustegevuse registris.

Eelprojekt ,joonised ja geoalus on olemas ka .dwg formaadis.

Pildid, video ja failid

Hanke korraldaja: eraisik ID42103

Pakkumised

Pakkumisi kokku: 6

Ettevõte Summa Käibemaks Lisatud Vestlus
Kasutaja ikoon ID44686
Pakkuja profiil Väike nool paremale
260€ Ei sisalda Ei sisalda 15.03.2018 Vestlus (2)

Pakkumise kirjeldus:

Tere!
Esitame pakkumise antud hoone elektriprojektile tööprojekti mahus, mis sisaldab endas paigaldusplaane (tugev-, nõrkvool(TV, side, ATS, AVS)), maandusskeemi, kilbiskeemi, struktsuurskeemi, seletuskirja ning spetsifikatsiooni. Projekti esitame kahel paberikoopial ning digitaalsel kujul digiallkirjastatuna. Tööde teostamiseks on vajalikud hoone alu ... Rohkem

Kasutaja ikoon ID46491
Pakkuja profiil Väike nool paremale
2 450€ Sisaldab KM Sisaldab KM 15.03.2018 Vestlus (2)

Pakkumise kirjeldus:

Tere
Kirjutan lahti millest koosneb hind:
VK projektid - välis ja sisevõrk 800 eur
KV projektid - sisevõrk 700 eur
ET ja NV projektiosad - 950 eur välis ja sisevõrk

Kõik registreeringud MTRis ja pädevad vastutavad isikud olemas. Kogemus turul - 6 aastat.

Kasutaja ikoon ID33873
Pakkuja profiil Väike nool paremale
1 100€ Ei sisalda Ei sisalda 18.03.2018 Vestlus (2)

Pakkumise kirjeldus:

Hind sisaldab VK ja KV projekte TP mahus.

Kasutaja ikoon ID47328
Pakkuja profiil Väike nool paremale
850€ Ei sisalda Ei sisalda 18.03.2018 Vestlus (0)

Pakkumise kirjeldus:

Hind sisaldab Tugev- ja nõrkvoolu elektriprojektisid põhiprojekti mahus.

Kasutaja ikoon ID46459
Pakkuja profiil Väike nool paremale
350€ Sisaldab KM Sisaldab KM 19.03.2018 Vestlus (2)

Pakkumise kirjeldus:

Elektri- ja nõrkvooluprojekti hind - 350.-

Kasutaja ikoon ID43007
Pakkuja profiil Väike nool paremale
1 800€ Ei sisalda Ei sisalda 19.03.2018 Vestlus (0)

Pakkumise kirjeldus:

Tere,

Elektriprojekt - 450+km
Nõrkvooluprojekt - 250+km
KVVJK projektid kokku: 1100+km

Heade soovidega,

Küsimused hanke korraldajale

Küsimus: private ID44686   15.03.2018 09:43
Kas soovite pakkumist eriosadele eraldi või koos, komplektselt?<br />
Kas eramu tuleks targamaja lahendusega?

Teavita reeglite rikkumisest

Korraldaja vastus: 15.03.2018 11:21

Tere,<br />
<br />
Eramu ei tule targamaja lahendusega, eriosade projektid sooviksin Tellida eraldi(võib teha pakkumise ka koos).<br />
<br />
Terv,<br />
<br />
J

Teavita reeglite rikkumisest

Lisa küsimus

Lisa küsimus

Minu pakkumine

Reeglid

Pakkumise kirjelduse väli on mõeldud pakkumise detailsemaks lahti kirjutamiseks. Pikema teksti mugavaks sisestamiseks klikkige kasti paremal ülaservas oleval ikoonil.
Pakkumist tehes on keelatud postitada enda kontaktandmeid (nimi, telefon, aadress jne). Me jälgime ja analüüsime pakkumisi, et vältida pettuseid ja reeglite rikkumisi.
Rikkumise puhul kasutajakonto blokeeritakse.

 

Teisi töid samas valdkonnas

Valdkonnas "Projekteerimine" on 7 aktiivset tööd

no-img Pilt puudub

1-kordse 120 m2 elumaja põhiprojekt

Asukoht: Harjumaa, Metsanurme
Aega jäänud: 8p 9h
Tehtud pakkumisi: 4

no-img Pilt puudub

Saunamaja eelprojekt ehitusteatiseks

Asukoht: Lääne-Virumaa
Aega jäänud: 1p 9h
Tehtud pakkumisi: 3

Vanemad teated:

Vaata kõiki

Sellel veebilehel kasutatakse küpsiseid. Kasutamist jätkates nõustute küpsiste kasutamisega.

Sulge
 
Minu pakkumine

Reeglid

Pakkumise kirjelduse väli on mõeldud pakkumise detailsemaks lahti kirjutamiseks. Pikema teksti mugavaks sisestamiseks klikkige kasti paremal ülaservas oleval ikoonil.
Pakkumist tehes on keelatud postitada enda kontaktandmeid (nimi, telefon, aadress jne). Me jälgime ja analüüsime pakkumisi, et vältida pettuseid ja reeglite rikkumisi.
Rikkumise puhul kasutajakonto blokeeritakse.