+ Lisa oma töö      

Otsid ehitajat "Renoveerimine" valdkonnast?

Parima pakkumise ja teostaja leidmiseks lisa oma töö.

Maalritööd Tallinna kesklinnas

ID 42597

1952 vaatamist

Prindi

  • check Pakkumiste tegemine
    kuni 22.03.2018
  • check Võitja valik kuni
    29.03.2018
  • 3 Töö teostamine
    ja hinnang
Hanke lõpp: N, 22. märts, 2018
Maakond: Harjumaa
Linn: Tallinn
Tööde algus: R, 16. märts, 2018 (Soovituslik)
Tööde lõpp: R, 30. märts, 2018 (Soovituslik)
Ehitusmaterjalid: Töö tegija poolt

Töö sisu

Otsin maalrit.

Tarvis teostada järgnevad tööd:
- värvida seinad ja laed 38m2 korteris (välja arvatud vannituba 2.5m2). Korteris on ainult köök sees, ülejäänud mööbel välja viidud. Seinu katab hetkel värv, tapeete ei ole. Siin-seal on vaja täita kruviaugud, ehk ka pahteldada mõnda nurka. Seintes ei ole mõrasid või midagi muud taolist. Seina hinnanguliselt 40m ehk ca 100m2 + lagi = ca 135-140 m2 kokku värvitavat pinda.
- värvida üle ukseliistud ja 3 x aknalauda
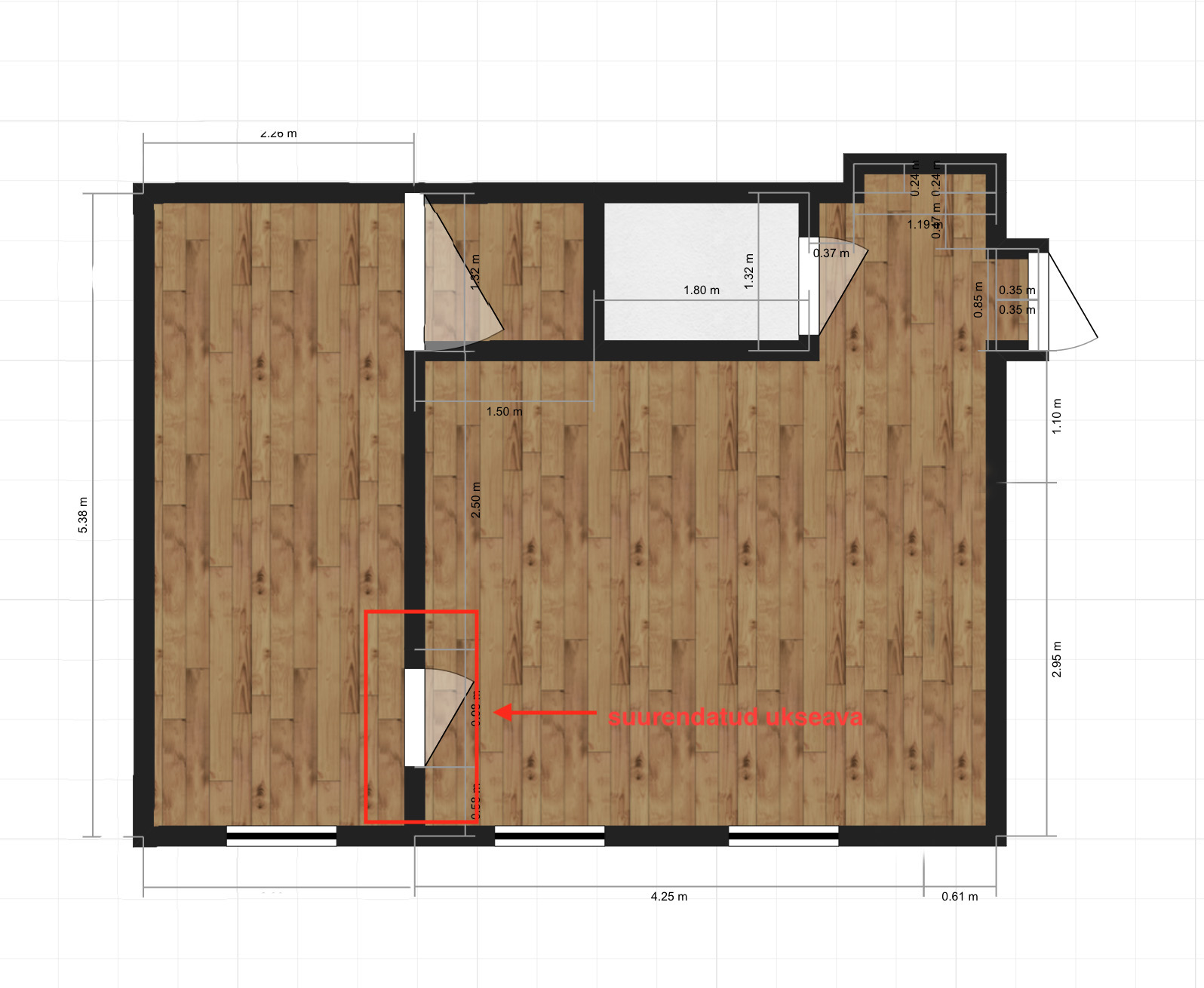
- suurendada ukseava - eemaldada uksepiidad/liistud, võtta maha mittekandvat kipsseina umbes 1 meetri ulatuses. Ja ehitada/viimistleda ukseava. Ust sinna esialgu ei paigaldata.
- vaadata üle ja kinnitada korralikult põrandaliistud
- ehitusprahi äravedu


Ettevalmistus tehtud - kõik, mis seintelt võimalik ära võtta on ära võetud.

Töö aeg - esimesel võimalusel
Asukoht - Tallinn, Kesklinn

Pildid, video ja failid

Hanke korraldaja: eraisik ID47513

Pakkumised

Pakkumisi kokku: 9

Ettevõte Summa Käibemaks Lisatud Vestlus
Kasutaja ikoon ID47060
Pakkuja profiil Väike nool paremale
4 395€ Ei sisalda Ei sisalda 17.03.2018 Vestlus (0)

Pakkumise kirjeldus:

Tere , esmaspaeval saame alustada ! Kui teile soobib .

Kasutaja ikoon ID47528
Pakkuja profiil Väike nool paremale
2 100€ Ei sisalda Ei sisalda 18.03.2018 Vestlus (0)

Pakkumise kirjeldus:

Hind on materjalideta.

Kasutaja ikoon ID44917
Pakkuja profiil Väike nool paremale
1 780€ Ei sisalda Ei sisalda 18.03.2018 Vestlus (0)

Pakkumise kirjeldus:

Pakkumisele ei lisandu km,võimalik alustada koheselt,tööaeg 9 päeva.

Kasutaja ikoon ID34985
Pakkuja profiil Väike nool paremale
3 000€ Sisaldab KM Sisaldab KM 18.03.2018 Vestlus (0)

Pakkumise kirjeldus:

Tehtud töödele garantii 2 aastat.

Kasutaja ikoon ID37252
Pakkuja profiil Väike nool paremale
1 198€ Ei sisalda Ei sisalda 19.03.2018 Vestlus (0)

Pakkumise kirjeldus:

Töö kiire ja korralik. Alustada saaks alates 21.03.18.a. Teostus kuni 1 nädal.

Kasutaja ikoon ID43974
Pakkuja profiil Väike nool paremale
1 800€ Ei sisalda Ei sisalda 19.03.2018 Vestlus (0)

Pakkumise kirjeldus:

Tere.

Köögimööbli ja põrandate kinni katmine, teipimine.
Demontaaz pistikute ,lülitite, valgustite jne(et saaks korralikult värvida ka nende tagant) ja tagasi paigaldus.
Seinte kohtparandused vajadusel akrüül, värv 2 korda (soovitan värvida korraliku siidmatt pestav seinavärviga mis on vastupidav korduvale pesemisele.
Lae värvimine 2 kord ... Rohkem

Kasutaja ikoon ID43740
Pakkuja profiil Väike nool paremale
2 000€ Sisaldab KM Sisaldab KM 20.03.2018 Vestlus (0)

Pakkumise kirjeldus:

Tere
Ettemaksu soovime materjali ostuks. Töö kvaliteetne ja garantiiga. Lugupidamisega.

Kasutaja ikoon ID42628
Pakkuja profiil Väike nool paremale
2 300€ Ei sisalda Ei sisalda 21.03.2018 Vestlus (0)

Pakkumise kirjeldus:

Tere!

Pakkumine sisaldab:
* seinte ja lagede pahtliparandused, lihvimine, värvimine (arvestuslik töömaht 140m2)
* ukseliistude ja aknalaudade üle värvimine
* ukseava suurendamine-kipsseina lammutus 1m ulatuses, uue ukseava ehitus, palede viimistlus
* põrandaliistude kinnituse kontroll ja vajadusel uuesti kinnitamine
* meie poolt tekitatud ehitu ... Rohkem

Kasutaja ikoon ID46969
Pakkuja profiil Väike nool paremale
55€ Sisaldab KM Sisaldab KM 21.03.2018 Vestlus (0)

Pakkumise kirjeldus:

Tere

tööhind ja materjaalid on 55.-m2* 38= 2100 eur
kõik teised tööd on 10 eur tund
kohapeal on vaja vaadata töö kirjeldus
garantii 2 aasta,otse firmast

lugupidamisega

Küsimused hanke korraldajale

Küsimus: private ID42628   16.03.2018 14:52
Tere!<br />
<br />
Kas parkimisvõimalus on olemas või arvestada tasulise parkmisega?<br />
Kas põrandaliistud on olemas?

Teavita reeglite rikkumisest

Korraldaja vastus: 16.03.2018 15:18

Parkimiskoht on olemas ja see on tasuta.<br />
Põrandaliistud olemas, tuleb uuesti kinnitada.

Teavita reeglite rikkumisest

Küsimus: private ID46040   17.03.2018 23:13
Tere,<br />
<br />
Kas oleks võimalik lisada pilte hetkeolukorrast (samuti värvimist vajavatest aknalaudadest). Mis materjalist on värvimist vajavad ukseliistud? Kas tubades tulevad seinad sama tooni, ehk mitu erinevat tooni on planeeritud?<br />
<br />
Tänan.

Teavita reeglite rikkumisest

Korraldaja vastus:
Hanke korraldaja ei ole küsimusele veel vastanud

Lisa küsimus

Lisa küsimus

Minu pakkumine

Reeglid

Pakkumise kirjelduse väli on mõeldud pakkumise detailsemaks lahti kirjutamiseks. Pikema teksti mugavaks sisestamiseks klikkige kasti paremal ülaservas oleval ikoonil.
Pakkumist tehes on keelatud postitada enda kontaktandmeid (nimi, telefon, aadress jne). Me jälgime ja analüüsime pakkumisi, et vältida pettuseid ja reeglite rikkumisi.
Rikkumise puhul kasutajakonto blokeeritakse.

 

Teisi töid samas valdkonnas

Valdkonnas "Renoveerimine" on 2 aktiivset tööd

no-img Pilt puudub

Renoveerimisprojekti koostamine

Asukoht: Läänemaa, Matsalu
Aega jäänud: 1p 22h
Tehtud pakkumisi: 4

Saunamaja renoveerimine väljastpoolt

Asukoht: Ida-Virumaa, Kiviõli
Aega jäänud: 13p 22h
Tehtud pakkumisi: 1

Vanemad teated:

Vaata kõiki

Sellel veebilehel kasutatakse küpsiseid. Kasutamist jätkates nõustute küpsiste kasutamisega.

Sulge
 
Minu pakkumine

Reeglid

Pakkumise kirjelduse väli on mõeldud pakkumise detailsemaks lahti kirjutamiseks. Pikema teksti mugavaks sisestamiseks klikkige kasti paremal ülaservas oleval ikoonil.
Pakkumist tehes on keelatud postitada enda kontaktandmeid (nimi, telefon, aadress jne). Me jälgime ja analüüsime pakkumisi, et vältida pettuseid ja reeglite rikkumisi.
Rikkumise puhul kasutajakonto blokeeritakse.