+ Lisa oma töö      

Otsid ehitajat "Vundamenditööd" valdkonnast?

Parima pakkumise ja teostaja leidmiseks lisa oma töö.

Vundamendi ehitus

ID 42619

5523 vaatamist

Prindi

  • check Pakkumiste tegemine
    kuni 01.04.2018
  • check Võitja valik kuni
    08.04.2018
  • 3 Töö teostamine
    ja hinnang
Hanke lõpp: P, 1. aprill, 2018
Maakond: Harjumaa
Muu asula: Harku Vald
Tööde algus: T, 10. aprill, 2018 (Soovituslik)
Tööde lõpp: L, 30. juuni, 2018 (Soovituslik)
Ehitusmaterjalid: Töö tegija poolt

Töö sisu

Sooviks hoone lintvundamendi ja aluspõranda ehituse pakkumist. Pakkumises tuua välja eraldi töö hind ja materjali kulu.

Krundil ca 20- 50cm mulda ja siis lubjakivi.


Pakkumine :

Vundamendi süvendi kaevamine
Hoone telgede maha märkimine geodeedi poolt
Tihendatud killustikust aluse ehitus
Taldmiku ehitus VORMEST vormidega
Vundamendi müüride ladumine FIBO 5
Hüdroisolatsioon
Vertikaalne ja horisontaalne soojustus
Tagasitäide

Aluspõranda ehitus:
Tihendatud liivpinnase ehitus
Torustike paigaldus Vesi ja Kanal.
Põranda soojutuse paigaldus
Ehituskile paigaldus
Põranda armeerimine
Põrandakütte torustike paigaldus kõik ruumid
(Võimalusel elektri vedamine põranda seest)
Betooni valamine
Vundamendi teostus koos joonistega

Materjalid ja tööriistad pakkuja poolt. Transport ja ööbimine pakkuja poolt





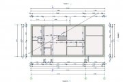
Pildid, video ja failid

Hanke korraldaja: eraisik ID47072

Pakkumised

Pakkumisi kokku: 3

Ettevõte Summa Käibemaks Lisatud Vestlus
Kasutaja ikoon ID43779
Pakkuja profiil Väike nool paremale
1€ Sisaldab KM Sisaldab KM 19.03.2018 Vestlus (0)

Pakkumise kirjeldus:

1m2=150.-€

Kasutaja ikoon ID46738
Pakkuja profiil Väike nool paremale
28 796,8€ Ei sisalda Ei sisalda 20.03.2018 Vestlus (0)

Pakkumise kirjeldus:

Kokku Töö Meh. Materjal
1 Geodeetiline mõõdistamine kmpl. 1 370,0 250,0 20,0 100,0
2 Pinnase koorimine ning ladustamine objektil h 14 588,0 0,0 588,0 0,0
3 Kraavide kaevamine (1,2m x 0,8m) h 6 ... Rohkem

Kasutaja ikoon ID46975
Pakkuja profiil Väike nool paremale
29 300€ Sisaldab KM Sisaldab KM 28.03.2018 Vestlus (0)

Pakkumise kirjeldus:

Tere. Pakkumises geodeetilised mõõtetööd, kaevetööd roxoniga 2,5t , killupadi, alusvöö, vormest , betoonivalu, fibosokkel, välishüdro, sokli välissoojustus , tagasitäide seest ja väljast, põrandasoojustus 200mm , kondensioonikile, armatuurvõrk 5mm , kandurid , betoonivalu 8-9cm . Hinnas ka kõik torutööd, põrandatorutööd, el kaabel vundam ... Rohkem

Küsimused hanke korraldajale

Küsimus: private ID39203   19.03.2018 09:51
Tere Soovite pakkumist!<br />
<br />
Vundamendi süvendi kaevamine<br />
/kas ja kuhu kantakse pinnas?<br />
Hoone telgede maha märkimine geodeedi poolt<br />
/kas ka ehitusjärgne?<br />
Tihendatud killustikust aluse ehitus<br />
/vundamendi joonis?<br />
Taldmiku ehitus VORMEST vormidega<br />
/joonis?<br />
<br />
Vertikaalne ja horisontaalne soojustus<br />
/projekt ehk soojustuse materjal +paksus?<br />
<br />
<br />
Aluspõranda ehitus:<br />
Torustike paigaldus Vesi ja Kanal.<br />
/projekt? Teadmata kogus ja maht?<br />
Põranda soojutuse paigaldus<br />
/teadmata materjal +kogus+paksus<br />
Põranda armeerimine<br />
/betoonimark+paksus<br />
Põrandakütte torustike paigaldus kõik ruumid<br />
/projekt? <br />
(Võimalusel elektri vedamine põranda seest)<br />
/projekt?<br />
Betooni valamine<br />
/mark?<br />
Vundamendi teostus koos joonistega?!<br />
<br />
Palun teostage hange projekteerimises, kus märgitakse puudused ja tehakse erisüsteemidele joonised. Nõnda saate adekvaatsed hinnapakkumised. Kui jätate jooniste vorpimise antud hanke võitja teha, siis on ainult üks suund- up. Lõpptulemus 3-kordne hind. <br />
<br />
Edu

Teavita reeglite rikkumisest

Korraldaja vastus: 19.03.2018 21:16

Aitäh info eest.

Teavita reeglite rikkumisest

Küsimus: private ID46975   19.03.2018 21:21
Kas saaksite lisada seletuskirja ja esimese korruse joonise? Kaugel on vundamendist kanal, vesi ja elekter? Kas trasside toomist vundamenti ka soovite? Kas on olemas kõvapinnasega tee vundamendini, või tuleb see ehituskäigus rajada?

Teavita reeglite rikkumisest

Korraldaja vastus: 19.03.2018 21:37

Maja väliseid kommunikatsioone pole vaja rajada. Ainult maja sisesed. Esimene joonis peaks olema maja esimene korrus. Vundamendini kõvapinnasega teed pole. Teest vundamendini on ca 6m. Võite teha eraldi hinnapakkumise ja mis see sisaldab. Ette tänades

Teavita reeglite rikkumisest

Lisa küsimus

Lisa küsimus

Minu pakkumine

Reeglid

Pakkumise kirjelduse väli on mõeldud pakkumise detailsemaks lahti kirjutamiseks. Pikema teksti mugavaks sisestamiseks klikkige kasti paremal ülaservas oleval ikoonil.
Pakkumist tehes on keelatud postitada enda kontaktandmeid (nimi, telefon, aadress jne). Me jälgime ja analüüsime pakkumisi, et vältida pettuseid ja reeglite rikkumisi.
Rikkumise puhul kasutajakonto blokeeritakse.

 

Vanemad teated:

Vaata kõiki

Sellel veebilehel kasutatakse küpsiseid. Kasutamist jätkates nõustute küpsiste kasutamisega.

Sulge
 
Minu pakkumine

Reeglid

Pakkumise kirjelduse väli on mõeldud pakkumise detailsemaks lahti kirjutamiseks. Pikema teksti mugavaks sisestamiseks klikkige kasti paremal ülaservas oleval ikoonil.
Pakkumist tehes on keelatud postitada enda kontaktandmeid (nimi, telefon, aadress jne). Me jälgime ja analüüsime pakkumisi, et vältida pettuseid ja reeglite rikkumisi.
Rikkumise puhul kasutajakonto blokeeritakse.