+ Lisa oma töö      

Otsid ehitajat "Elektritööd" valdkonnast?

Parima pakkumise ja teostaja leidmiseks lisa oma töö.

30 m2 korteri elektritööd Tallinnas

ID 42719

2330 vaatamist

Prindi

  • check Pakkumiste tegemine
    kuni 09.04.2018
  • check Võitja valik kuni
    16.04.2018
  • 3 Töö teostamine
    ja hinnang
Hanke lõpp: E, 9. aprill, 2018
Maakond: Harjumaa
Linn: Tallinn
Tööde algus: E, 30. aprill, 2018 (Soovituslik)
Tööde lõpp: P, 13. mai, 2018 (Soovituslik)
Ehitusmaterjalid: Töö tellija poolt

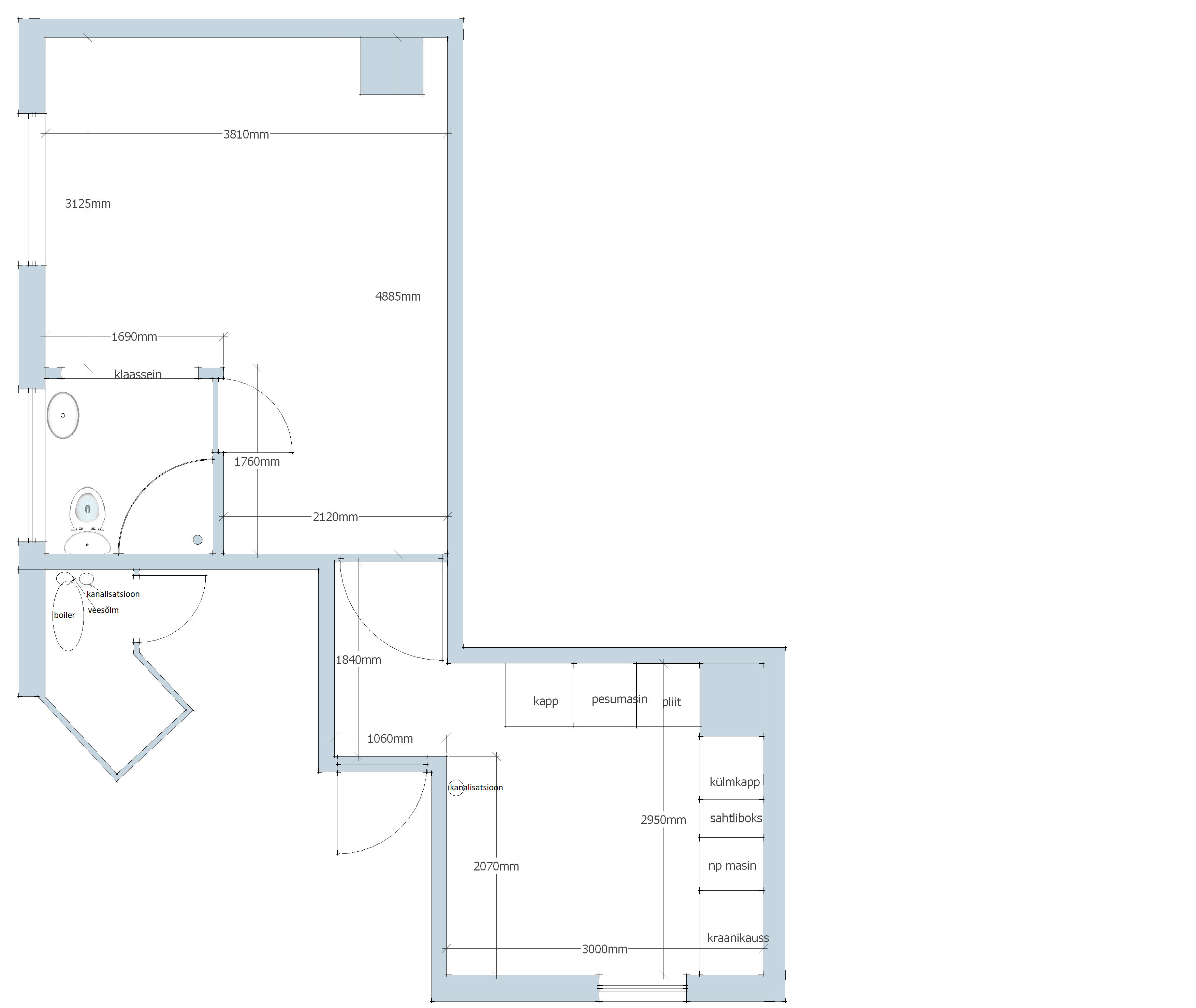
Töö sisu

Kapitaalremondis oleva 30 m2 korteri elektritööd Tallinnas, Nõmmel:

- elektrikilbi paigaldus korterisse
- kaabeldus
- pistikupesade, lülitite paigaldus
- vannitoa 3 m2, esiku 2 m2 ja köögi 6 m2 põrandakütte paigaldus

Palun ka orienteeruvat materjalide hinda.

Tööde aeg: mai esimene pool

Pildid, video ja failid

Hanke korraldaja: eraisik ID47615

Pakkumised

Pakkumisi kokku: 6

Ettevõte Summa Käibemaks Lisatud Vestlus
Kasutaja ikoon ID43007
Pakkuja profiil Väike nool paremale
1 000€ Ei sisalda Ei sisalda 27.03.2018 Vestlus (0)

Pakkumise kirjeldus:

Materjali umbkaudne hind:
Kilp: 150 eur
Pistikupesad ja lülitid: 100 eur
Kaabel: 200 eur
Pōrandaküte koos termostaatidega: 350 eur

Kasutaja ikoon ID47060
Pakkuja profiil Väike nool paremale
1 200€ Ei sisalda Ei sisalda 28.03.2018 Vestlus (0)

Pakkumise kirjeldus:

Tere , saan pakkuda see hind. Hind sisseldab töö ja materjalid (370 euro )Kui vaja saame kutsuda inspektori( 250euro).Kvaliteed ja kiirus meie pool.

Kasutaja ikoon ID45265
Pakkuja profiil Väike nool paremale
850€ Sisaldab KM Sisaldab KM 30.03.2018 Vestlus (0)

Pakkumise kirjeldus:

tööraha. Ei sisalda materjalide ja tarvikute maksumust

Kasutaja ikoon ID25180
Pakkuja profiil Väike nool paremale
800€ Ei sisalda Ei sisalda 01.04.2018 Vestlus (0)

Pakkumise kirjeldus:

Soovitud elektritööd ilma materjalideta. Orienteeruv materjalide maksumus 600.- euro. Lugupidamisega.

Kasutaja ikoon ID46910
Pakkuja profiil Väike nool paremale
1 242€ Ei sisalda Ei sisalda 08.04.2018 Vestlus (0)

Pakkumise kirjeldus:

Orienteeruv materjalide maksumus 694+km.

Kasutaja ikoon ID19451
Pakkuja profiil Väike nool paremale
1 030€ Sisaldab KM Sisaldab KM 09.04.2018 Vestlus (0)

Pakkumise kirjeldus:

Soovitud tööd.Materjalid vastavalt vajadusele tellijalt.

Küsimused hanke korraldajale

Küsimus: private ID19451   27.03.2018 13:37
Tere!<br />
Paluks veidi täpsemat olukorra tutvustust !<br />
Puitmaja,kivimaja,paneelmaja ?<br />
Mida tehakse olemasolevate seintega ? (lähevad kipsi alla ? lihtsalt pahteldatakse ? j.n.e.)<br />
Millest laed ja kuidas viimistletakse ?<br />
Põrandate olukord ja edaspidine viimistlus ?

Teavita reeglite rikkumisest

Korraldaja vastus: 27.03.2018 17:15

Tere!<br />
<br />
Tegemist on vana puitmajaga, korter on esimesel korrusel. Praegu on korter enam-vähem tühjaks lammutatud ja hetkel on köögi-esiku põrandaks vana peno ja toas vana põrandalaud. Need lammutatakse ka ära, samuti võetakse alla laed ja selle peal olev saepuru. Välise koridoriga ühised seinad (üks köögi sein, esiku sein ja vannitota sein ehitatakse päris uued ja kips tuleb peale. Toa pikk parempoolne sein jääb vana kipsi alla ja sinna on kaabeldus ilmselt vaja süvistada. Toa otsasein läheb uue kipsi alla aga ilma karkassita, sest on soojustatud ja peal saepuruplaat. Toa ja vannitoa akendega sein on plaanis krohvida. Laed tulevad kipsist, toa ja köögi lakke on vaja paigaldada infrapuna küttepaneelid (1,15x0,8 m ja 1,2x0,6 m - olemas koos termostaatidega). Kõik põrandad ehitatakse uued, toa, esiku ja köögi põrand läheb parketi alla ja esikusse ja kööki lisaks ka põrandaküte. Vannituba hetkel pole - ehitatakse uus, läheb plaatimisele (va aknaga sein, mis krohvi alla), põrandale põrandaküte. Vannitoa ja toa vahesein on plaanis teha mattklaasist. Elektrikilp asub välisukse kõrval, esiku seinal (see sein tuleb uus). Köögi ja toa lakke tuleb tugitala, et teist korrust toestada. Ehitus-lammutustööde algus on plaanitud 16. aprill.

Teavita reeglite rikkumisest

Lisa küsimus

Lisa küsimus

Minu pakkumine

Reeglid

Pakkumise kirjelduse väli on mõeldud pakkumise detailsemaks lahti kirjutamiseks. Pikema teksti mugavaks sisestamiseks klikkige kasti paremal ülaservas oleval ikoonil.
Pakkumist tehes on keelatud postitada enda kontaktandmeid (nimi, telefon, aadress jne). Me jälgime ja analüüsime pakkumisi, et vältida pettuseid ja reeglite rikkumisi.
Rikkumise puhul kasutajakonto blokeeritakse.

 

Teisi töid samas valdkonnas

Valdkonnas "Elektritööd" on 5 aktiivset tööd

Vana talu elektrisüsteemi uuendamine (kilp, pistikud, välivalgustus, EV valmidus)

Asukoht: Raplamaa, Suurekivi
Aega jäänud: 1p 5h
Tehtud pakkumisi: 5

Kaablite vahetus paneelmaja korteris ja siseviimistlus

Asukoht: Harjumaa, Tallinn
Aega jäänud: 6p 5h
Tehtud pakkumisi: 4

Vanemad teated:

Vaata kõiki

Sellel veebilehel kasutatakse küpsiseid. Kasutamist jätkates nõustute küpsiste kasutamisega.

Sulge
 
Minu pakkumine

Reeglid

Pakkumise kirjelduse väli on mõeldud pakkumise detailsemaks lahti kirjutamiseks. Pikema teksti mugavaks sisestamiseks klikkige kasti paremal ülaservas oleval ikoonil.
Pakkumist tehes on keelatud postitada enda kontaktandmeid (nimi, telefon, aadress jne). Me jälgime ja analüüsime pakkumisi, et vältida pettuseid ja reeglite rikkumisi.
Rikkumise puhul kasutajakonto blokeeritakse.