+ Lisa oma töö      

Otsid ehitajat "Renoveerimine" valdkonnast?

Parima pakkumise ja teostaja leidmiseks lisa oma töö.

Hange on lõppenud!

Võitjaks osutus kasutaja ID 39945

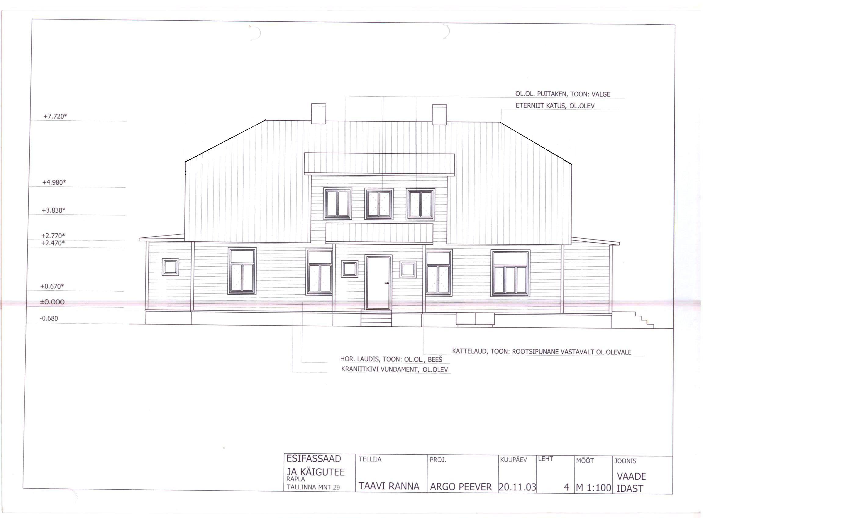
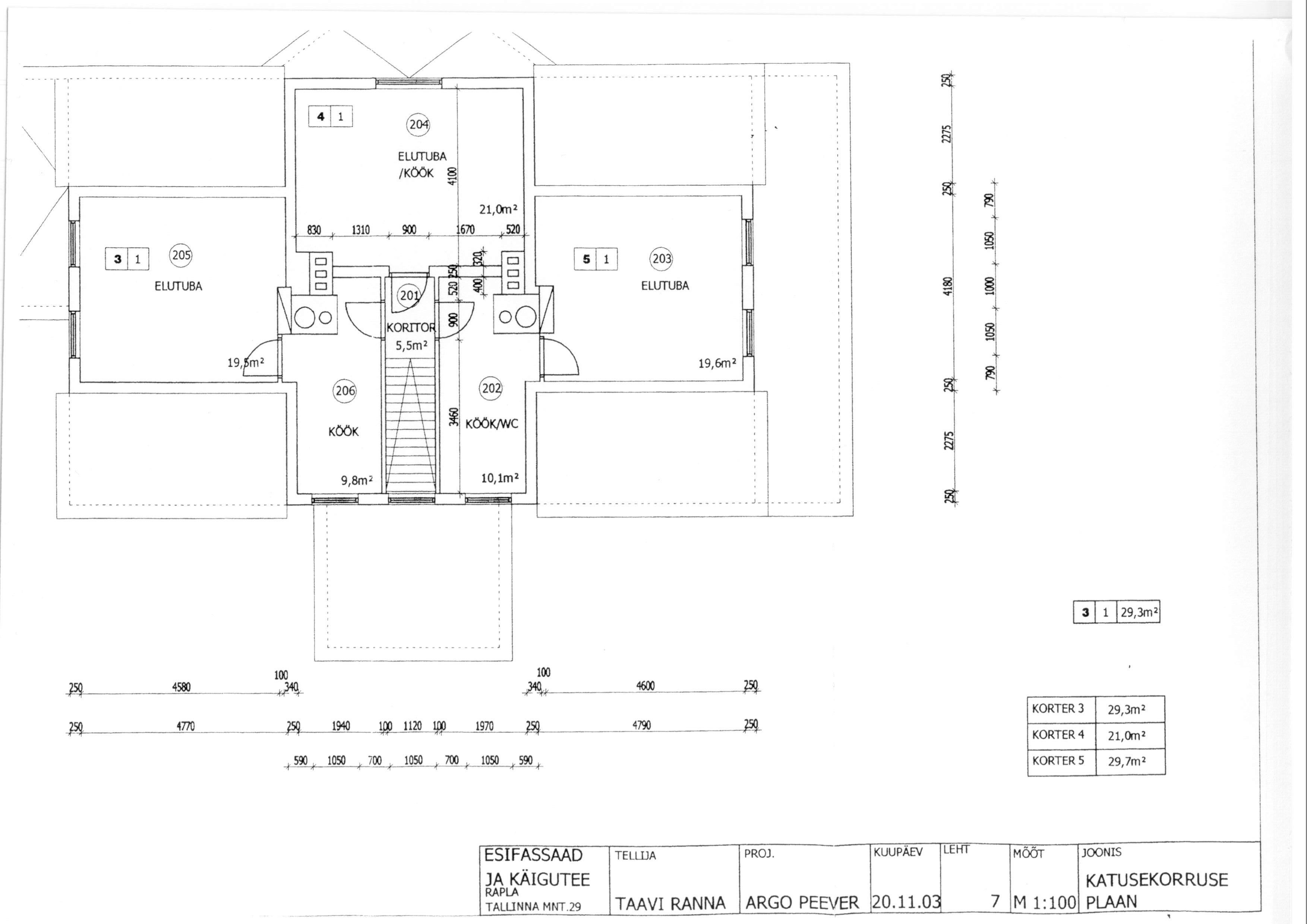
Hoone renoveerimisprojekt

ID 42830

3699 vaatamist

Prindi

  • check Pakkumiste tegemine
    kuni 05.05.2018
  • check Võitja valik kuni
    12.05.2018
  • 3 Töö teostamine
    ja hinnang
Hanke lõpp: L, 5. mai, 2018
Maakond: Raplamaa
Linn: Rapla
Tööde algus: N, 05. aprill, 2018 (Soovituslik)
Tööde lõpp: L, 05. mai, 2018 (Soovituslik)
Ehitusmaterjalid: Töö tegija poolt

Töö sisu

Pakkumine peab sisaldama Kredex-i nõuetele vastavat renoveerimisprojekti.
Ehk siis sisaldama kõike, mis on ette nähtud ehitusprojektis ehitusloa saamiseks / ehitusteatise esitamiseks, s.t. ehitise arhitektuurne ning konstruktiivne lahendus, asendiplaan; korrusteplaanid, vaated ja lõiked; vundamendi plaan; krundi piirdeaed ja krundisisene haljastuse lahendus; tehnovarustuse lahendus; seletuskiri; energiaarvutused ja –märgis, materjalide ja töömahtude arvestus. Lisaks hoone 2 korruse projekteerimine 2 korteriliseks (registris 2 korrusel 3 korterit).
Projekt paberkandjal ning digitaalselt koos 3D –visualiseeringuga.

Pildid, video ja failid

Hanke korraldaja: eraisik ID29394

Pakkumised

Pakkumisi kokku: 3

Ettevõte Summa Käibemaks Lisatud Vestlus
Kasutaja ikoon ID42152
Pakkuja profiil Väike nool paremale
1 800€ Sisaldab KM Sisaldab KM 06.04.2018 Vestlus (2)

Pakkumise kirjeldus:

Ehitusprojekt eelprojekti staadiumsi (arh-eh osa koos eriosadega)
Pakkumishind sisaldab.
Seletuskiri
Energiaarvutused
Energiamärgis
Asendiplaan
Vund ja korruste plaanid
Hoone lõige
Hoone vaated
Avatäidete joonised
vajalikud sõlmjoonised
jm asjakohased vajalikud joonised

Ehitusprojekti kooskõlastused
Ehitusteatise registreerimine KOV

Hi ... Rohkem

Kasutaja ikoon ID46491
Pakkuja profiil Väike nool paremale
1 900€ Sisaldab KM Sisaldab KM 12.04.2018 Vestlus (0)

Pakkumise kirjeldus:

Hinnas arhitektuurne EP+vajalikud lisad (s.h. konstruktiivne eelprojekt) ehitusloa jaoks + asjaajamine EHRis.
Vajadusel saame pakkuda ka põhiprojekte kredexi jaoks. Hinnad sõltuvad eritööde mahust.
Lisaküsimustele vastame meeleldi "vestluse" kaudu
Lugupidamisega,
Diplomeeritud ehitusinsener, tase 7

Kasutaja ikoon ID39945
Pakkuja profiil Väike nool paremale
2 450€ Sisaldab KM Sisaldab KM 02.05.2018 Vestlus (0)

Pakkumise kirjeldus:

Pakkumine sisaldab projekti põhiprojekti mahus vastavalt KREDEX nõuetele koos meiepoolsete kõikide kooskõlastustega, asjaajamistega.
Projekt sisaldab kõik, mis on ette nähtud ehitusprojektis ehitusloa saamiseks / ehitusteatise esitamiseks, s.t. ehitise arhitektuurne ning konstruktiivne lahendus, asendiplaan; korrusteplaanid, vaated ja lõiked; vundam ... Rohkem

Küsimused hanke korraldajale

Hanke korraldajale ei ole veel küsimusi esitatud.

Lisa küsimus

Lisa küsimus

Minu pakkumine

Reeglid

Pakkumise kirjelduse väli on mõeldud pakkumise detailsemaks lahti kirjutamiseks. Pikema teksti mugavaks sisestamiseks klikkige kasti paremal ülaservas oleval ikoonil.
Pakkumist tehes on keelatud postitada enda kontaktandmeid (nimi, telefon, aadress jne). Me jälgime ja analüüsime pakkumisi, et vältida pettuseid ja reeglite rikkumisi.
Rikkumise puhul kasutajakonto blokeeritakse.

 

Teisi töid samas valdkonnas

Valdkonnas "Renoveerimine" on 2 aktiivset tööd

Pinkide puitdetailide vahetus

Asukoht: Harjumaa, Tallinn
Aega jäänud: 16p 8h
Tehtud pakkumisi: 14

no-img Pilt puudub

Renoveerimisprojekti koostamine

Asukoht: Läänemaa, Matsalu
Aega jäänud: 24p 8h
Tehtud pakkumisi: 2

Vanemad teated:

Vaata kõiki

Sellel veebilehel kasutatakse küpsiseid. Kasutamist jätkates nõustute küpsiste kasutamisega.

Sulge
 
Minu pakkumine

Reeglid

Pakkumise kirjelduse väli on mõeldud pakkumise detailsemaks lahti kirjutamiseks. Pikema teksti mugavaks sisestamiseks klikkige kasti paremal ülaservas oleval ikoonil.
Pakkumist tehes on keelatud postitada enda kontaktandmeid (nimi, telefon, aadress jne). Me jälgime ja analüüsime pakkumisi, et vältida pettuseid ja reeglite rikkumisi.
Rikkumise puhul kasutajakonto blokeeritakse.