+ Lisa oma töö      

Otsid ehitajat "Projekteerimine" valdkonnast?

Parima pakkumise ja teostaja leidmiseks lisa oma töö.

Hange on lõppenud!

Võitjaks osutus kasutaja ID 46491

Korteri mõõdistusprojekt juba teostatud remondile

ID 42838

3417 vaatamist

Prindi

  • check Pakkumiste tegemine
    kuni 20.04.2018
  • check Võitja valik kuni
    27.04.2018
  • 3 Töö teostamine
    ja hinnang
Hanke lõpp: R, 20. aprill, 2018
Maakond: Tartumaa
Linn: Tartu
Tööde algus: E, 09. aprill, 2018 (Soovituslik)
Tööde lõpp: R, 04. mai, 2018 (Soovituslik)
Ehitusmaterjalid: Töö tellija poolt

Töö sisu

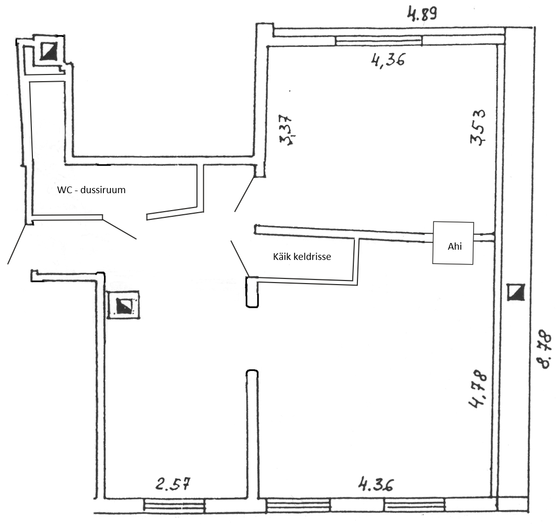
Korteris aja jooksul tehtud ümberehitustööde legaliseerimiseks Tartu linnavalitsuses on tarvis mõõdistusprojekti koos muu vajaliku dokumentatsiooniga, mis vastaks nendele tingimustele:

https://www.tartu.ee/et/ehitusprojekti-muutmine

Muudetud on osade kergseinte asetust, tehtud endise pliidi soojamüüri asemele läbikäik tubade vahele, ning läbi põranda läbikäik keldrisse, mis ei kuulu hetkel korteri reaalosa hulka, aga soov on edaspidi liita, ning sellega seoses ka see ära mõõta.

Pildid, video ja failid

Hanke korraldaja: eraisik ID29740

Pakkumised

Pakkumisi kokku: 1

Ettevõte Summa Käibemaks Lisatud Vestlus
Kasutaja ikoon ID46491
Pakkuja profiil Väike nool paremale
300€ Sisaldab KM Sisaldab KM 12.04.2018 Vestlus (0)

Pakkumise kirjeldus:

Hinnas korteri mõõdistusprojekti koostamine ja registreerimine EHRi kaudu

Lisaküsimustele vastame meeleldi "vestluse" kaudu
Lugupidamisega,
Diplomeeritud ehitusinsener, tase 7

Küsimused hanke korraldajale

Hanke korraldajale ei ole veel küsimusi esitatud.

Lisa küsimus

Lisa küsimus

Minu pakkumine

Reeglid

Pakkumise kirjelduse väli on mõeldud pakkumise detailsemaks lahti kirjutamiseks. Pikema teksti mugavaks sisestamiseks klikkige kasti paremal ülaservas oleval ikoonil.
Pakkumist tehes on keelatud postitada enda kontaktandmeid (nimi, telefon, aadress jne). Me jälgime ja analüüsime pakkumisi, et vältida pettuseid ja reeglite rikkumisi.
Rikkumise puhul kasutajakonto blokeeritakse.

 

Teisi töid samas valdkonnas

Valdkonnas "Projekteerimine" on 7 aktiivset tööd

no-img Pilt puudub

1-kordse 120 m2 elumaja põhiprojekt

Asukoht: Harjumaa, Metsanurme
Aega jäänud: 8p 9h
Tehtud pakkumisi: 4

no-img Pilt puudub

Saunamaja eelprojekt ehitusteatiseks

Asukoht: Lääne-Virumaa
Aega jäänud: 1p 9h
Tehtud pakkumisi: 3

Vanemad teated:

Vaata kõiki

Sellel veebilehel kasutatakse küpsiseid. Kasutamist jätkates nõustute küpsiste kasutamisega.

Sulge
 
Minu pakkumine

Reeglid

Pakkumise kirjelduse väli on mõeldud pakkumise detailsemaks lahti kirjutamiseks. Pikema teksti mugavaks sisestamiseks klikkige kasti paremal ülaservas oleval ikoonil.
Pakkumist tehes on keelatud postitada enda kontaktandmeid (nimi, telefon, aadress jne). Me jälgime ja analüüsime pakkumisi, et vältida pettuseid ja reeglite rikkumisi.
Rikkumise puhul kasutajakonto blokeeritakse.