+ Lisa oma töö      

Otsid ehitajat "Vundamenditööd" valdkonnast?

Parima pakkumise ja teostaja leidmiseks lisa oma töö.

Vundamendi ehitus Rakvere

ID 42864

4703 vaatamist

Prindi

  • check Pakkumiste tegemine
    kuni 15.04.2018
  • check Võitja valik kuni
    22.04.2018
  • 3 Töö teostamine
    ja hinnang
Hanke lõpp: P, 15. aprill, 2018
Maakond: Lääne-Virumaa
Muu asula: Sõmeru
Tööde algus: R, 20. aprill, 2018 (Soovituslik)
Tööde lõpp: R, 04. mai, 2018 (Soovituslik)
Ehitusmaterjalid: Töö tegija poolt

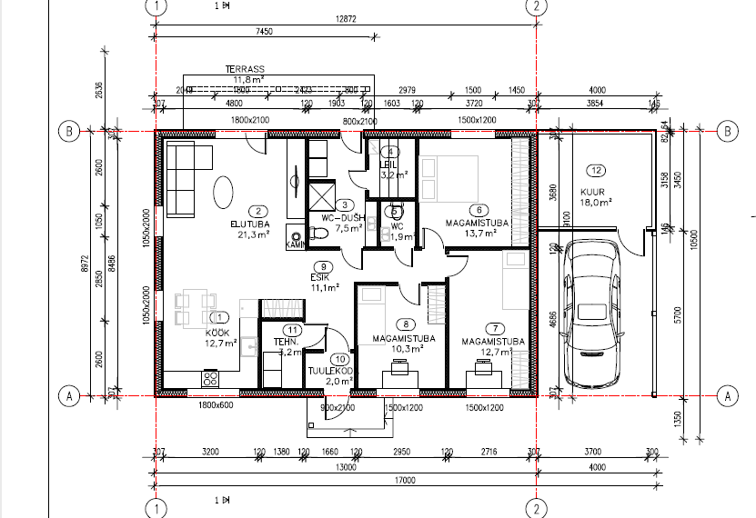
Töö sisu

Teavita reeglite rikkumisest
Tööd:
torutööd/elekter
põrandakütte toru
Vundamendi ehitus koos materjaliga
Kaevetööd ja täide koos tehnikaga

Pildid, video ja failid

Hanke korraldaja: eraisik ID26471

Pakkumised

Pakkumisi kokku: 1

Ettevõte Summa Käibemaks Lisatud Vestlus
Kasutaja ikoon ID47400
Pakkuja profiil Väike nool paremale
17 550€ Ei sisalda Ei sisalda 09.04.2018 Vestlus (1)

Pakkumise kirjeldus:

Tere! Ruudu hinnaks tuleb 150 eur m2. Tööde teostamise aeg max 3 nädalat. Vundamenditüüp - plaatvundament.

Küsimused hanke korraldajale

Hanke korraldajale ei ole veel küsimusi esitatud.

Lisa küsimus

Lisa küsimus

Minu pakkumine

Reeglid

Pakkumise kirjelduse väli on mõeldud pakkumise detailsemaks lahti kirjutamiseks. Pikema teksti mugavaks sisestamiseks klikkige kasti paremal ülaservas oleval ikoonil.
Pakkumist tehes on keelatud postitada enda kontaktandmeid (nimi, telefon, aadress jne). Me jälgime ja analüüsime pakkumisi, et vältida pettuseid ja reeglite rikkumisi.
Rikkumise puhul kasutajakonto blokeeritakse.

 

Vanemad teated:

Vaata kõiki

Sellel veebilehel kasutatakse küpsiseid. Kasutamist jätkates nõustute küpsiste kasutamisega.

Sulge
 
Minu pakkumine

Reeglid

Pakkumise kirjelduse väli on mõeldud pakkumise detailsemaks lahti kirjutamiseks. Pikema teksti mugavaks sisestamiseks klikkige kasti paremal ülaservas oleval ikoonil.
Pakkumist tehes on keelatud postitada enda kontaktandmeid (nimi, telefon, aadress jne). Me jälgime ja analüüsime pakkumisi, et vältida pettuseid ja reeglite rikkumisi.
Rikkumise puhul kasutajakonto blokeeritakse.