+ Lisa oma töö      

Otsid ehitajat "Betoonitööd" valdkonnast?

Parima pakkumise ja teostaja leidmiseks lisa oma töö.

Trepi renoveerimine

ID 43025

2839 vaatamist

Prindi

  • check Pakkumiste tegemine
    kuni 26.04.2018
  • check Võitja valik kuni
    03.05.2018
  • 3 Töö teostamine
    ja hinnang
Hanke lõpp: N, 26. aprill, 2018
Maakond: Harjumaa
Linn: Tallinn
Tööde algus: E, 07. mai, 2018 (Soovituslik)
Tööde lõpp: E, 14. mai, 2018 (Soovituslik)
Ehitusmaterjalid: Töö tegija poolt

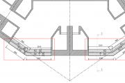
Töö sisu

1 Olemasoleva trepi lammutus ja prahi utiliseerimine - 1,5 m3

2 Trepi aluse soojustamine Styrofoam 300 - 0,4 m3

3 Paneeli õõnsuste täitmine pur vahuga - vastavalt joonisele

4 Lehtterasest ankrute paigaldus - 12 tk

5 Armeeritud betoonist astmete betoneerimine - 1,0 m3

6 Pesubetoonplaatide paigaldus - 17,2jm

7 Ehitusjärgne koristus

Pildid, video ja failid

Hanke korraldaja: ettevõte ID46738

Pakkumised

Pakkumisi kokku: 1

Ettevõte Summa Käibemaks Lisatud Vestlus
Kasutaja ikoon ID47051
Pakkuja profiil Väike nool paremale
4 400€ Ei sisalda Ei sisalda 26.04.2018 Vestlus (0)

Pakkumise kirjeldus:

Tere,

Pakkumine koos materjalidega. Omame tegevusteks MTR tegevusluba. Eraldi KM ei lisandu

Küsimused hanke korraldajale

Küsimus: private ID47051   19.04.2018 22:47
Tere, kas otsite Alltöövôtjat ning ise olete Peatöövõtja?

Teavita reeglite rikkumisest

Korraldaja vastus: 19.04.2018 23:33

Tere<br />
<br />
Oleme haldusettevõte ja soovime leida töövõtjat.

Teavita reeglite rikkumisest

Lisa küsimus

Lisa küsimus

Minu pakkumine

Reeglid

Pakkumise kirjelduse väli on mõeldud pakkumise detailsemaks lahti kirjutamiseks. Pikema teksti mugavaks sisestamiseks klikkige kasti paremal ülaservas oleval ikoonil.
Pakkumist tehes on keelatud postitada enda kontaktandmeid (nimi, telefon, aadress jne). Me jälgime ja analüüsime pakkumisi, et vältida pettuseid ja reeglite rikkumisi.
Rikkumise puhul kasutajakonto blokeeritakse.

 

Teisi töid samas valdkonnas

Valdkonnas "Betoonitööd" on 2 aktiivset tööd

Kasvuhoone vundamnet

Asukoht: Tartumaa, Tartu
Aega jäänud: 3h 11 min
Tehtud pakkumisi: 1

no-img Pilt puudub

Betoonplats aeda

Asukoht: Harjumaa, Tallinn
Aega jäänud: 1p 3h
Tehtud pakkumisi: 0

Vanemad teated:

Vaata kõiki

Sellel veebilehel kasutatakse küpsiseid. Kasutamist jätkates nõustute küpsiste kasutamisega.

Sulge
 
Minu pakkumine

Reeglid

Pakkumise kirjelduse väli on mõeldud pakkumise detailsemaks lahti kirjutamiseks. Pikema teksti mugavaks sisestamiseks klikkige kasti paremal ülaservas oleval ikoonil.
Pakkumist tehes on keelatud postitada enda kontaktandmeid (nimi, telefon, aadress jne). Me jälgime ja analüüsime pakkumisi, et vältida pettuseid ja reeglite rikkumisi.
Rikkumise puhul kasutajakonto blokeeritakse.