+ Lisa oma töö      

Otsid ehitajat "Vundamenditööd" valdkonnast?

Parima pakkumise ja teostaja leidmiseks lisa oma töö.

Plaatvundament

ID 43085

6658 vaatamist

Prindi

  • check Pakkumiste tegemine
    kuni 07.05.2018
  • check Võitja valik kuni
    14.05.2018
  • 3 Töö teostamine
    ja hinnang
Hanke lõpp: E, 7. mai, 2018
Maakond: Harjumaa
Muu asula: Harku vald, Liikva küla
Tööde algus: E, 28. mai, 2018 (Soovituslik)
Tööde lõpp: E, 11. juuni, 2018 (Soovituslik)
Ehitusmaterjalid: Töö tegija poolt

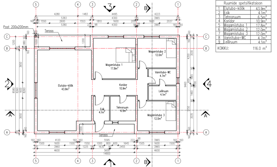
Töö sisu

Hinnapakkumised vundamendi peale. Ühekordne puitkarkass maja.
Soovi korral saab võitja ka vee ja kanalka trassid liitumispunktist majani valmis meisterdada. (Kui olete võimeline mingit hinda pakkuma, siis võite ka selle eraldi kirja panna).
300mm EPSi asemel võib vabalt ka 200mm panna.
Veetorud oleks vaja vedada tehnoruumist vannituppa ja kööki.
3 trappi, pasapott , kaks valamut ja pesumasina äravool.
Põrandaküttel pole eraldi kontuure esikusse, koridori ja tehnoruumi vaja, piisab, kui mõne teise toa toru paar korda läbi jookseb antud ruumidest.
Alustada saaks mai lõpp, juuni algus.

Pildid, video ja failid

Hanke korraldaja: eraisik ID40548

Pakkumised

Pakkumisi kokku: 4

Ettevõte Summa Käibemaks Lisatud Vestlus
Kasutaja ikoon ID47051
Pakkuja profiil Väike nool paremale
136€ Ei sisalda Ei sisalda 24.04.2018 Vestlus (0)

Pakkumise kirjeldus:

Tere, pakkumine m2 hinnaks 136 eur m2, kokku 125 m2 ehk maksumusena 17 000 eur. Me teeme teie lähedal ka vundamenti just aga kahjuks öelda ei saa kus. Omame tegemiseks vastavat MTR tegevusluba. Km eraldi ei lisandu

Kasutaja ikoon ID44182
Pakkuja profiil Väike nool paremale
12 000€ Ei sisalda Ei sisalda 24.04.2018 Vestlus (1)
Kasutaja ikoon ID38730
Pakkuja profiil Väike nool paremale
18 000€ Ei sisalda Ei sisalda 25.04.2018 Vestlus (0)

Pakkumise kirjeldus:

vundament, vesi ja elektri trassid

Kasutaja ikoon ID48007
Pakkuja profiil Väike nool paremale
13 394,1€ Ei sisalda Ei sisalda 28.04.2018 Vestlus (0)

Küsimused hanke korraldajale

Küsimus: private ID47051   23.04.2018 23:10
Tere,<br />
<br />
Kas alustaldmikule lôikeid pole? Samuti vundamendiplaadile

Teavita reeglite rikkumisest

Korraldaja vastus: 24.04.2018 09:53

Tere. Lisasin kaks lõike joonist juurde. Ei tea, kas neist on kasu või mitte. Rohkem mul jooniseid pole.

Teavita reeglite rikkumisest

Lisa küsimus

Lisa küsimus

Minu pakkumine

Reeglid

Pakkumise kirjelduse väli on mõeldud pakkumise detailsemaks lahti kirjutamiseks. Pikema teksti mugavaks sisestamiseks klikkige kasti paremal ülaservas oleval ikoonil.
Pakkumist tehes on keelatud postitada enda kontaktandmeid (nimi, telefon, aadress jne). Me jälgime ja analüüsime pakkumisi, et vältida pettuseid ja reeglite rikkumisi.
Rikkumise puhul kasutajakonto blokeeritakse.

 

Teisi töid samas valdkonnas

Valdkonnas "Vundamenditööd" on 9 aktiivset tööd

Plaatvundamendi valamine

Asukoht: Tartumaa, Tartu
Aega jäänud: 3p 2h
Tehtud pakkumisi: 2

no-img Pilt puudub

Plaatvundament koos kommunikatsioonidega

Asukoht: Harjumaa
Aega jäänud: 1p 2h
Tehtud pakkumisi: 2

Vanemad teated:

Vaata kõiki

Sellel veebilehel kasutatakse küpsiseid. Kasutamist jätkates nõustute küpsiste kasutamisega.

Sulge
 
Minu pakkumine

Reeglid

Pakkumise kirjelduse väli on mõeldud pakkumise detailsemaks lahti kirjutamiseks. Pikema teksti mugavaks sisestamiseks klikkige kasti paremal ülaservas oleval ikoonil.
Pakkumist tehes on keelatud postitada enda kontaktandmeid (nimi, telefon, aadress jne). Me jälgime ja analüüsime pakkumisi, et vältida pettuseid ja reeglite rikkumisi.
Rikkumise puhul kasutajakonto blokeeritakse.