+ Lisa oma töö      

Otsid ehitajat "Projekteerimine" valdkonnast?

Parima pakkumise ja teostaja leidmiseks lisa oma töö.

Hange on lõppenud!

Võitjaks osutus kasutaja ID 45406

Suvemaja projekt (ümberehitamine/rekonstrueerimine ) Toilas

ID 43138

2715 vaatamist

Prindi

  • check Pakkumiste tegemine
    kuni 03.05.2018
  • check Võitja valik kuni
    10.05.2018
  • 3 Töö teostamine
    ja hinnang
Hanke lõpp: N, 3. mai, 2018
Maakond: Ida-Virumaa
Muu asula: Toila vald
Tööde algus: E, 07. mai, 2018 (Soovituslik)
Tööde lõpp: N, 31. mai, 2018 (Soovituslik)
Ehitusmaterjalid: Töö tegija poolt

Töö sisu

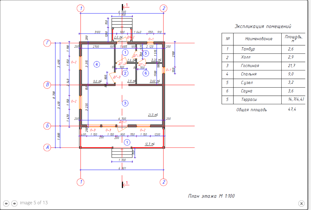
Plaan on mahapõlenud maja asemele ehitada uus saarnane maja olemasolevale vundamendile.
Selleks on vaja ehitusprojekti mida saaks koos teatisega esitada.
Maja asub Toilas suvilate piirkonnas. Olemasoleva vundamendi mõõtmed ca 7.70 m x 7.30 m.
Maja tuleb ühekorruseline kuid võimalusel oleks soov jätta võimalus ka katusekorruse välja ehitamiseks.
Manuses on joonis esimese korruse planeeringust mida oleks vaja kohendada vastavalt vundamendi mõõtmetele
Pakkumises palun märkida millal saaksite tööga alustada ja lõpetada

Pildid, video ja failid

Hanke korraldaja: eraisik ID45996

Pakkumised

Pakkumisi kokku: 5

Ettevõte Summa Käibemaks Lisatud Vestlus
Kasutaja ikoon ID45406
Pakkuja profiil Väike nool paremale
750€ Ei sisalda Ei sisalda 26.04.2018 Vestlus (2)

Pakkumise kirjeldus:

Tere!
Hinnapakkumine sisaldab projekti koostamist põhiprojekti mahus ning ehitisteatise esitamist läbi ehitisregistri. Samuti sisaldab hind suhtlemist kohaliku omavalitsusega. Töödega saab alustada ca 12.05 ning projekteerimistööd kestavad ca 10 päeva. Ehitisteatise menetlemise aeg oleneb kohaliku omavalitsuse menetlus kiirusest aga üldiselt peab a ... Rohkem

Kasutaja ikoon ID46491
Pakkuja profiil Väike nool paremale
700€ Sisaldab KM Sisaldab KM 27.04.2018 Vestlus (2)

Pakkumise kirjeldus:

Hinnas arhitektuurne EP+vajalikud lisad ehitusteatise vormistamiseks. Projekteerimisega saaks alustada 4.05, töö kestvus ca nädal + registriga toimetamine, mis sõltub Toila koormusest, aga eeldan et kuu-poolteist on menetluse aeg praegu.
Lisaküsimustele vastan meeleldi Vestluse kaudu.
Diplomeeritud ehitusinsener, tase 7

Kasutaja ikoon ID39945
Pakkuja profiil Väike nool paremale
1 300€ Sisaldab KM Sisaldab KM 02.05.2018 Vestlus (2)

Pakkumise kirjeldus:

Pakkumine sisaldab projekti ehitusloa taotlemiseks / ehitusteatise esitamiseks vajalikus mahus koos meiepoolsete kõikide kooskõlastustega, asjaajamistega.
Projekt sisaldab kõik, mis on ette nähtud ehitusprojektis ehitusloa saamiseks / ehitusteatise esitamiseks, s.t. ehitise arhitektuurne ning konstruktiivne lahendus, asendiplaan; korrusteplaanid, vaate ... Rohkem

Kasutaja ikoon ID46459
Pakkuja profiil Väike nool paremale
250€ Sisaldab KM Sisaldab KM 02.05.2018 Vestlus (0)

Pakkumise kirjeldus:

Elektriprojekt - 250

Kasutaja ikoon ID46826
Pakkuja profiil Väike nool paremale
620€ Ei sisalda Ei sisalda 03.05.2018 Vestlus (0)

Pakkumise kirjeldus:

Majaprojekt vastavalt toodud tingimustele ja ehr sisestamine. Tööde algus koheselt, kestvus ca 2 nädalat

Küsimused hanke korraldajale

Hanke korraldajale ei ole veel küsimusi esitatud.

Lisa küsimus

Lisa küsimus

Minu pakkumine

Reeglid

Pakkumise kirjelduse väli on mõeldud pakkumise detailsemaks lahti kirjutamiseks. Pikema teksti mugavaks sisestamiseks klikkige kasti paremal ülaservas oleval ikoonil.
Pakkumist tehes on keelatud postitada enda kontaktandmeid (nimi, telefon, aadress jne). Me jälgime ja analüüsime pakkumisi, et vältida pettuseid ja reeglite rikkumisi.
Rikkumise puhul kasutajakonto blokeeritakse.

 

Teisi töid samas valdkonnas

Valdkonnas "Projekteerimine" on 7 aktiivset tööd

no-img Pilt puudub

1-kordse 120 m2 elumaja põhiprojekt

Asukoht: Harjumaa, Metsanurme
Aega jäänud: 8p 9h
Tehtud pakkumisi: 4

no-img Pilt puudub

Saunamaja eelprojekt ehitusteatiseks

Asukoht: Lääne-Virumaa
Aega jäänud: 1p 9h
Tehtud pakkumisi: 3

Vanemad teated:

Vaata kõiki

Sellel veebilehel kasutatakse küpsiseid. Kasutamist jätkates nõustute küpsiste kasutamisega.

Sulge
 
Minu pakkumine

Reeglid

Pakkumise kirjelduse väli on mõeldud pakkumise detailsemaks lahti kirjutamiseks. Pikema teksti mugavaks sisestamiseks klikkige kasti paremal ülaservas oleval ikoonil.
Pakkumist tehes on keelatud postitada enda kontaktandmeid (nimi, telefon, aadress jne). Me jälgime ja analüüsime pakkumisi, et vältida pettuseid ja reeglite rikkumisi.
Rikkumise puhul kasutajakonto blokeeritakse.