+ Lisa oma töö      

Otsid ehitajat "Teemantpuurimine ja -saagimine" valdkonnast?

Parima pakkumise ja teostaja leidmiseks lisa oma töö.

Ukseava lõikamine betoonseina 2tk

ID 43411

2928 vaatamist

Prindi

  • check Pakkumiste tegemine
    kuni 21.05.2018
  • check Võitja valik kuni
    28.05.2018
  • 3 Töö teostamine
    ja hinnang
Hanke lõpp: E, 21. mai, 2018
Maakond: Harjumaa
Muu asula: Jüri
Tööde algus: T, 22. mai, 2018 (Soovituslik)
Tööde lõpp: K, 23. mai, 2018 (Soovituslik)
Ehitusmaterjalid: Töö tegija poolt

Töö sisu

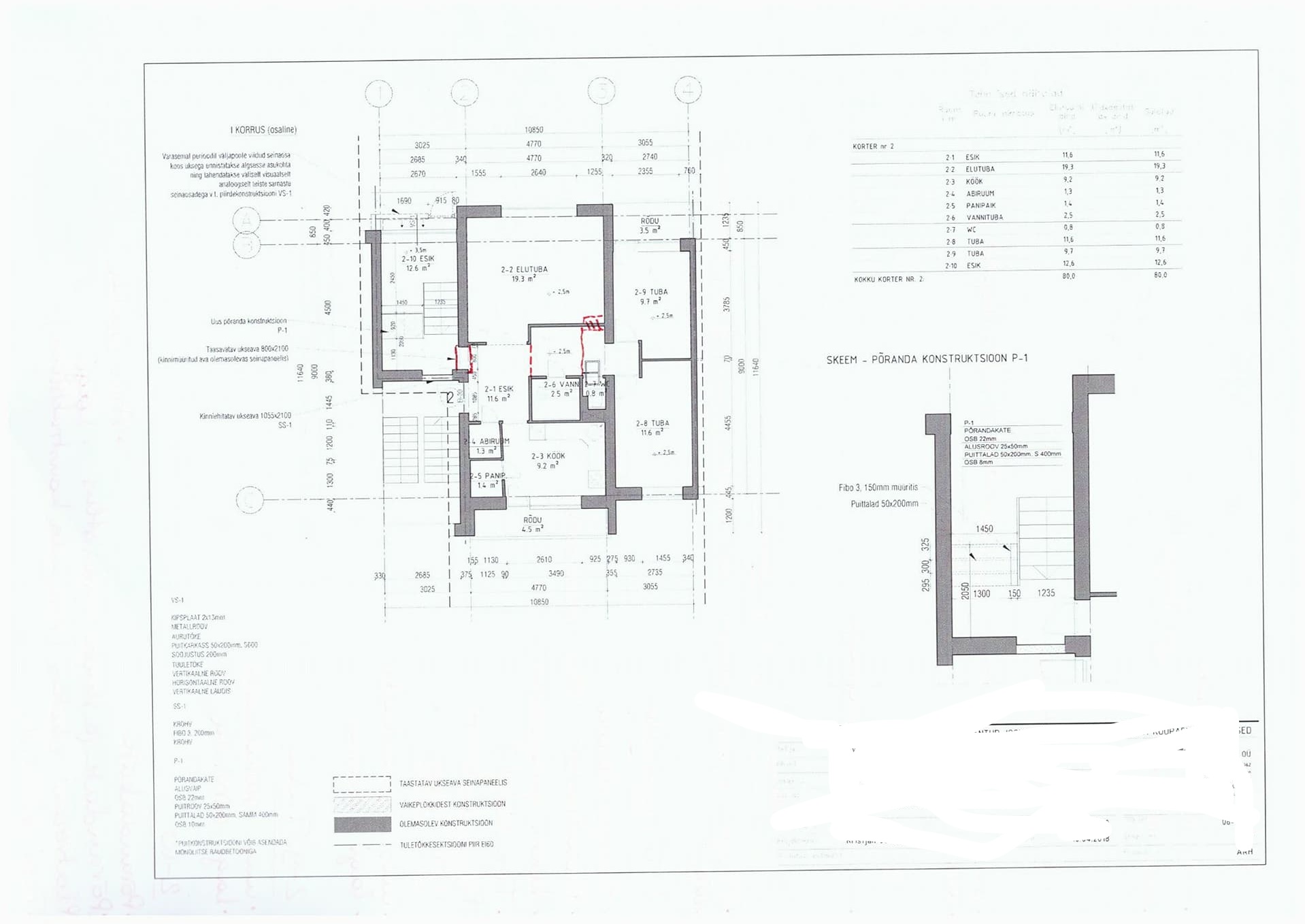
On tarvis lõigata seitsmekümnendatel ehitatud kortermajas kandvasse seina ava (ust ei tule), et ühendada majatagune trepikoda korteriga. Esimene korrus. Dokumentidesse lisatud plaanid, seal ka mõõtmed ja toestus. Lisaks sellele avale on mittekandvasse seina lõigata teine ava elutoast koridori. Suurendatakse vannituba (vt korteri plaan) kuni elutoa seinani, wc jääb muutmata. Ava tuleb wc ukse vastu.

Pildid, video ja failid

Hanke korraldaja: eraisik ID48184

Pakkumised

Pakkumisi kokku: 1

Ettevõte Summa Käibemaks Lisatud Vestlus
Kasutaja ikoon ID48045
Pakkuja profiil Väike nool paremale
550€ Sisaldab KM Sisaldab KM 21.05.2018 Vestlus (0)

Pakkumise kirjeldus:

tere teeksime töö kiirelt ära kohe kui teile sobib aga nii palju et hind ei sisalda prahi ära vedu .

Küsimused hanke korraldajale

Hanke korraldajale ei ole veel küsimusi esitatud.

Lisa küsimus

Lisa küsimus

Minu pakkumine

Reeglid

Pakkumise kirjelduse väli on mõeldud pakkumise detailsemaks lahti kirjutamiseks. Pikema teksti mugavaks sisestamiseks klikkige kasti paremal ülaservas oleval ikoonil.
Pakkumist tehes on keelatud postitada enda kontaktandmeid (nimi, telefon, aadress jne). Me jälgime ja analüüsime pakkumisi, et vältida pettuseid ja reeglite rikkumisi.
Rikkumise puhul kasutajakonto blokeeritakse.

 

Vanemad teated:

Vaata kõiki

Sellel veebilehel kasutatakse küpsiseid. Kasutamist jätkates nõustute küpsiste kasutamisega.

Sulge
 
Minu pakkumine

Reeglid

Pakkumise kirjelduse väli on mõeldud pakkumise detailsemaks lahti kirjutamiseks. Pikema teksti mugavaks sisestamiseks klikkige kasti paremal ülaservas oleval ikoonil.
Pakkumist tehes on keelatud postitada enda kontaktandmeid (nimi, telefon, aadress jne). Me jälgime ja analüüsime pakkumisi, et vältida pettuseid ja reeglite rikkumisi.
Rikkumise puhul kasutajakonto blokeeritakse.