+ Lisa oma töö      

Otsid ehitajat "Projekteerimine" valdkonnast?

Parima pakkumise ja teostaja leidmiseks lisa oma töö.

Hoonesisese vee- ja kanalisatsiooni projekteerimine väikeelamus

ID 43586

2509 vaatamist

Prindi

  • check Pakkumiste tegemine
    kuni 29.05.2018
  • check Võitja valik kuni
    05.06.2018
  • 3 Töö teostamine
    ja hinnang
Hanke lõpp: T, 29. mai, 2018
Maakond: Harjumaa
Linn: Keila
Tööde algus: N, 31. mai, 2018 (Soovituslik)
Tööde lõpp: N, 07. juuni, 2018
Ehitusmaterjalid: Töö tegija poolt

Töö sisu

Tere

Vaja on koostada hoonesisese vee- ja kanalisatsiooni projekt põhiprojekti staadiumis.

Tegemist on ühekordse 59m2 palkmajaga, millele on planeeritud L-plokist plaatvundament.

Olemas on veeettevõtte liitumistingimused, millega on määratud tingimused veetoru toomisele hoonesse ja mõõdusõlme rajamisele.
Liitumispunkti rajamise ja kinnistusisese vee- ja kanalisatsiooni projekt on olemas (projekt lõpeb vundamendi piiril).
Samuti on olemas hooneprojekt eelprojekti staadiumis.

Veetarbijad hoones (lõplik loetelu):
- kraanikauss (köök);
- kraanikauss (vannituba)
- pesumasin (vannituba)
- wc (vannituba)
- dush (vannituba)
- boiler (vannituba)
- varu põrandatrapp (vannituba)

Pildid, video ja failid

Hanke korraldaja: eraisik ID19283

Pakkumised

Pakkumisi kokku: 2

Ettevõte Summa Käibemaks Lisatud Vestlus
Kasutaja ikoon ID38306
Pakkuja profiil Väike nool paremale
990€ Ei sisalda Ei sisalda 28.05.2018 Vestlus (1)

Pakkumise kirjeldus:

11-aastase projekteerimiskogemusega projekteerimisbüroo

Kasutaja ikoon ID38158
Pakkuja profiil Väike nool paremale
970€ Ei sisalda Ei sisalda 29.05.2018 Vestlus (1)

Küsimused hanke korraldajale

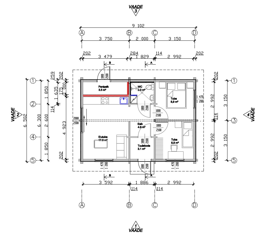
Küsimus: private ID31470   28.05.2018 09:32
tere, kas oleks võimalik lisada ka hoone korruseplaanide joonised hankesse? Lugupidamisega, V.

Teavita reeglite rikkumisest

Korraldaja vastus: 29.05.2018 00:27

Tere<br />
<br />
Maja on ühekorruseline. Põhjaplaan lisatud.

Teavita reeglite rikkumisest

Lisa küsimus

Lisa küsimus

Minu pakkumine

Reeglid

Pakkumise kirjelduse väli on mõeldud pakkumise detailsemaks lahti kirjutamiseks. Pikema teksti mugavaks sisestamiseks klikkige kasti paremal ülaservas oleval ikoonil.
Pakkumist tehes on keelatud postitada enda kontaktandmeid (nimi, telefon, aadress jne). Me jälgime ja analüüsime pakkumisi, et vältida pettuseid ja reeglite rikkumisi.
Rikkumise puhul kasutajakonto blokeeritakse.

 

Teisi töid samas valdkonnas

Valdkonnas "Projekteerimine" on 7 aktiivset tööd

no-img Pilt puudub

1-kordse 120 m2 elumaja põhiprojekt

Asukoht: Harjumaa, Metsanurme
Aega jäänud: 8p 9h
Tehtud pakkumisi: 4

no-img Pilt puudub

Saunamaja eelprojekt ehitusteatiseks

Asukoht: Lääne-Virumaa
Aega jäänud: 1p 9h
Tehtud pakkumisi: 3

Vanemad teated:

Vaata kõiki

Sellel veebilehel kasutatakse küpsiseid. Kasutamist jätkates nõustute küpsiste kasutamisega.

Sulge
 
Minu pakkumine

Reeglid

Pakkumise kirjelduse väli on mõeldud pakkumise detailsemaks lahti kirjutamiseks. Pikema teksti mugavaks sisestamiseks klikkige kasti paremal ülaservas oleval ikoonil.
Pakkumist tehes on keelatud postitada enda kontaktandmeid (nimi, telefon, aadress jne). Me jälgime ja analüüsime pakkumisi, et vältida pettuseid ja reeglite rikkumisi.
Rikkumise puhul kasutajakonto blokeeritakse.