+ Lisa oma töö      

Otsid ehitajat "Eramu ehitus" valdkonnast?

Parima pakkumise ja teostaja leidmiseks lisa oma töö.

Eramaja ehitus "võtmed kätte"

ID 43775

3228 vaatamist

Prindi

  • check Pakkumiste tegemine
    kuni 08.07.2018
  • check Võitja valik kuni
    15.07.2018
  • 3 Töö teostamine
    ja hinnang
Hanke lõpp: P, 8. juuli, 2018
Maakond: Harjumaa
Tööde algus: R, 31. august, 2018 (Soovituslik)
Tööde lõpp: P, 31. märts, 2019 (Soovituslik)
Ehitusmaterjalid: Töö tegija poolt

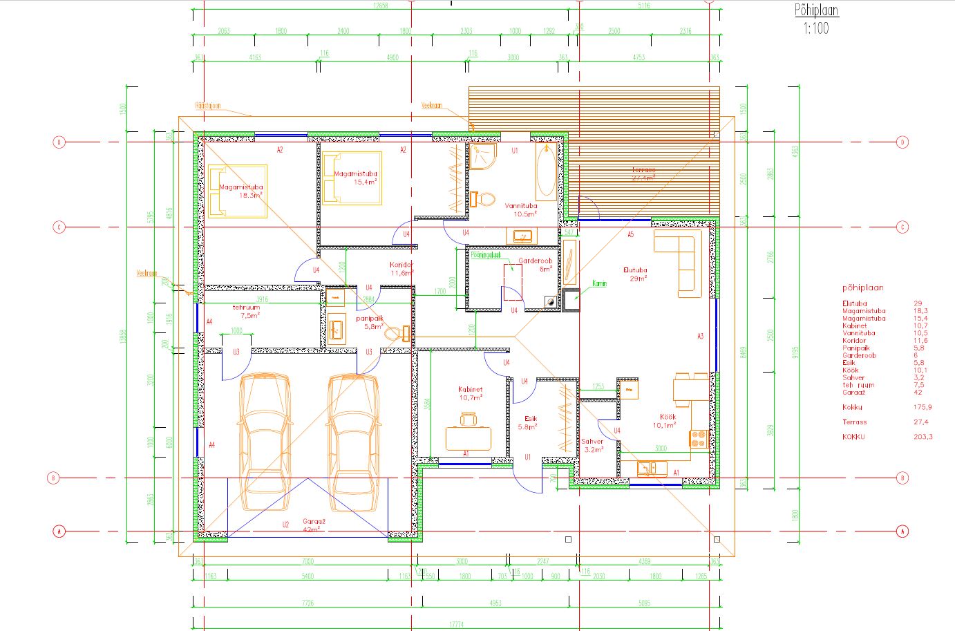
Töö sisu

Joonistes on näha ehituse suurust koos plaanidega.
Hea oleks saada korrektne pakkumine kas failina või siis siia etappide kaupa.

Lisainfoks:

Põranda osa:

Köök,sahver, esik, vannituba ja panipaika tuleks plaadid maha, ülejäänud ruumidesse naturaalparkett(3-lipiline). Vannitoas ka seinad plaatidega.

Tehniline ruum ja garaaz jääks siis tavaline viimistlemata betoonpõrand.

Garaaž - sinna tuleks põranda keskele ka äravoolu lahendus
Terass -puitplastik


Seinad (va vannituba) - värvitud

Kui võimalik siis ka eraldi välja tuua haljastuse korrastus ehk maapinna tasandamine (krundi suurus ca 1700m2)

Lisaks ka maja ümber unikivi paigaldus.

Eraldi oleks vaja välja tuua maksumus maakütte ja õhk-vesi põrandakütte osas (üks nendest tuleks välja valida). Maaküttega tuleks seda arvestada, et krundil on paepinnas, pealmist mulla pinda on ca 50-60cm. Arvatavasti tuleks puurida sinna kolded või võimalik ka tavalahendusega

Pildid, video ja failid

Hanke korraldaja: eraisik ID27830

Pakkumised

Pakkumisi kokku: 2

Ettevõte Summa Käibemaks Lisatud Vestlus
Kasutaja ikoon ID45334
Pakkuja profiil Väike nool paremale
950€ Ei sisalda Ei sisalda 10.06.2018 Vestlus (5)

Pakkumise kirjeldus:

Tere,hind on ruutmeeri ehitus maksumus.Parimat

Kasutaja ikoon ID8356
Pakkuja profiil Väike nool paremale
1 035€ Ei sisalda Ei sisalda 05.07.2018 Vestlus (0)

Pakkumise kirjeldus:

1 m2 valmis elamu hind, õhk-vesi soojuspump, täpsem kalkulatsioon
detailsema projekti alusel.

Küsimused hanke korraldajale

Küsimus: private ID39203   10.06.2018 22:43
Tere<br />
<br />
Paluksin pakkumise tegemiseks spetsifikatsiooni. Eriosad, kes need teostab?<br />
Tänud

Teavita reeglite rikkumisest

Korraldaja vastus: 11.06.2018 22:43

Tere,<br />
<br />
Hetkel eriosade spetsifikatsioon puudub kuna ehituskäigus võib tulla alati muutusi. Kui ilma eriosade ehituseta hetkel hinda ei saa pakkuda siis võib pakkuda puhtalt ainult kogu maja ehitusele va. elektri-,vee-ja kanalisatsiooni töödele.

Teavita reeglite rikkumisest

Küsimus: private ID39203   12.06.2018 08:02
Kui arhitekt joonistas projekti, pidi kaasa andma ka spetsifikatsiooni, kus loetletud kõik materjali+kogused.<br />
KAs Teile seda anti?<br />
Tööprojekt on selleks, kus vormistatakse muudatusi!<br />
<br />
Jään ootama!<br />

Teavita reeglite rikkumisest

Korraldaja vastus: 14.06.2018 09:40

Eelarvestuse osa pole antud, see tuleb eraldi tellida.

Teavita reeglite rikkumisest

Küsimus: private ID28145   13.06.2018 12:56
Tere. Oleme ehitustööst huvitatud kuid küsime kas võiksime teha pakkumise kinnine soojustatud karp kujul kus elekter, vesi, kanal , ventilatsioon on lahendatud ja sisetööd ja nende kokkulepe jääks järgmisse ehitusetappi? Meile piisab olemasolevatest joonistest ja anname ehitustööde lõppedes Teile üle kogu vajaliku dokumentatsiooni, et majale kohalikus omavalitsuses kasutusloa saab. Tänan.

Teavita reeglite rikkumisest

Korraldaja vastus: 13.06.2018 13:02

Tere<br />
<br />
Tehke sellisel kujul pakkumine, võtan ka selle arvesse.

Teavita reeglite rikkumisest

Lisa küsimus

Lisa küsimus

Minu pakkumine

Reeglid

Pakkumise kirjelduse väli on mõeldud pakkumise detailsemaks lahti kirjutamiseks. Pikema teksti mugavaks sisestamiseks klikkige kasti paremal ülaservas oleval ikoonil.
Pakkumist tehes on keelatud postitada enda kontaktandmeid (nimi, telefon, aadress jne). Me jälgime ja analüüsime pakkumisi, et vältida pettuseid ja reeglite rikkumisi.
Rikkumise puhul kasutajakonto blokeeritakse.

 

Teisi töid samas valdkonnas

Valdkonnas "Eramu ehitus" on 2 aktiivset tööd

Eramu ehitus

Asukoht: Viljandimaa, Viljandi
Aega jäänud: 7p 1h
Tehtud pakkumisi: 0

no-img Pilt puudub

Eramu ehitus. Karp kinni.

Asukoht: Lääne-Virumaa
Aega jäänud: 5p 1h
Tehtud pakkumisi: 0

Vanemad teated:

Vaata kõiki

Sellel veebilehel kasutatakse küpsiseid. Kasutamist jätkates nõustute küpsiste kasutamisega.

Sulge
 
Minu pakkumine

Reeglid

Pakkumise kirjelduse väli on mõeldud pakkumise detailsemaks lahti kirjutamiseks. Pikema teksti mugavaks sisestamiseks klikkige kasti paremal ülaservas oleval ikoonil.
Pakkumist tehes on keelatud postitada enda kontaktandmeid (nimi, telefon, aadress jne). Me jälgime ja analüüsime pakkumisi, et vältida pettuseid ja reeglite rikkumisi.
Rikkumise puhul kasutajakonto blokeeritakse.