+ Lisa oma töö      

Otsid ehitajat "Viimistlustööd" valdkonnast?

Parima pakkumise ja teostaja leidmiseks lisa oma töö.

Hange on lõppenud!

Võitjaks osutus kasutaja ID 47784

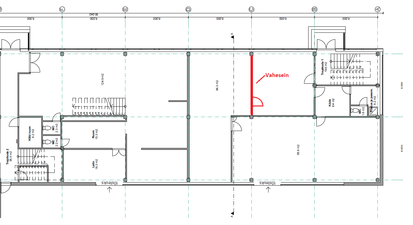
Vaheseina ehitamine

ID 43936

2273 vaatamist

Prindi

  • check Pakkumiste tegemine
    kuni 25.06.2018
  • check Võitja valik kuni
    02.07.2018
  • 3 Töö teostamine
    ja hinnang
Hanke lõpp: E, 25. juuni, 2018
Maakond: Harjumaa
Linn: Tallinn
Tööde algus: K, 27. juuni, 2018 (Soovituslik)
Tööde lõpp: P, 08. juuli, 2018 (Soovituslik)
Ehitusmaterjalid: Töö tegija poolt

Töö sisu

Kipssein, EI-30 uks paigaldus, pikkus u. 6m

Pildid, video ja failid

Hanke korraldaja: eraisik ID39278

Pakkumised

Pakkumisi kokku: 3

Ettevõte Summa Käibemaks Lisatud Vestlus
Kasutaja ikoon ID47784
Pakkuja profiil Väike nool paremale
1 800€ Sisaldab KM Sisaldab KM 21.06.2018 Vestlus (2)

Pakkumise kirjeldus:

Tere
Hinnapakkumine koostatud antud hanke info põhjal sisaldab kõiki töid ja materjale. Lõppviimistlust pahtlit krunti lõppvärvi (tooni vastavalt tellija valikul) kõiki liiste põrand, lagi, ukse.
Hind sisaldab ka el-30 ukse maksumust.
Ettemaks on mõeldud materjali ostmiseks.
Kuna el-30 uste hinnad väga erinevad selgub lõpplik hind peale teiep ... Rohkem

Kasutaja ikoon ID47051
Pakkuja profiil Väike nool paremale
1 750€ Ei sisalda Ei sisalda 21.06.2018 Vestlus (0)

Pakkumise kirjeldus:

Tere, omame tööde tegemiseks MTR tegevusluba. Eraldi km ei lisandu. Omame siin portaalis vaid hãid hinnanguid tehtud töödele. Lgp

Kasutaja ikoon ID43740
Pakkuja profiil Väike nool paremale
1 600€ Sisaldab KM Sisaldab KM 22.06.2018 Vestlus (0)

Küsimused hanke korraldajale

Küsimus: private ID47784   20.06.2018 15:27
Tere mõned küsimused.<br />
Milline on seina kõrgus?<br />
Millise tugevusega kipsplaati soovite?<br />
Kas pakkumine peab ka sisaldama viimistlust pahtel värv jne.<br />
Lgp Karel

Teavita reeglite rikkumisest

Korraldaja vastus: 21.06.2018 09:26

u. 2.6m<br />
12mm kipsplaat või sarnane<br />
kipsi alla vineer plaat 10mm ühele seina poolele<br />
viimistlust kuni liistudeni

Teavita reeglite rikkumisest

Lisa küsimus

Lisa küsimus

Minu pakkumine

Reeglid

Pakkumise kirjelduse väli on mõeldud pakkumise detailsemaks lahti kirjutamiseks. Pikema teksti mugavaks sisestamiseks klikkige kasti paremal ülaservas oleval ikoonil.
Pakkumist tehes on keelatud postitada enda kontaktandmeid (nimi, telefon, aadress jne). Me jälgime ja analüüsime pakkumisi, et vältida pettuseid ja reeglite rikkumisi.
Rikkumise puhul kasutajakonto blokeeritakse.

 

Vanemad teated:

Vaata kõiki

Sellel veebilehel kasutatakse küpsiseid. Kasutamist jätkates nõustute küpsiste kasutamisega.

Sulge
 
Minu pakkumine

Reeglid

Pakkumise kirjelduse väli on mõeldud pakkumise detailsemaks lahti kirjutamiseks. Pikema teksti mugavaks sisestamiseks klikkige kasti paremal ülaservas oleval ikoonil.
Pakkumist tehes on keelatud postitada enda kontaktandmeid (nimi, telefon, aadress jne). Me jälgime ja analüüsime pakkumisi, et vältida pettuseid ja reeglite rikkumisi.
Rikkumise puhul kasutajakonto blokeeritakse.