+ Lisa oma töö      

Otsid ehitajat "Siseviimistlustööd" valdkonnast?

Parima pakkumise ja teostaja leidmiseks lisa oma töö.

Col kivi seinte krohvimine ja pahteldus, lae pahteldus ning aknapalede viimistlus

ID 44007

4147 vaatamist

Prindi

  • check Pakkumiste tegemine
    kuni 04.07.2018
  • check Võitja valik kuni
    11.07.2018
  • 3 Töö teostamine
    ja hinnang
Hanke lõpp: K, 4. juuli, 2018
Maakond: Harjumaa
Muu asula: Saku vald
Tööde algus: N, 05. juuli, 2018 (Soovituslik)
Tööde lõpp: P, 15. juuli, 2018 (Soovituslik)
Ehitusmaterjalid: Töö tegija poolt

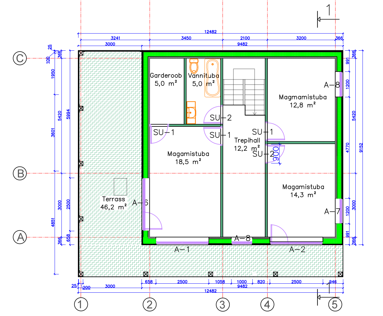
Töö sisu

Colkivi siseseinte pahtledus V ja VH pahtliga kihid, lihvimine kokku 200m2, trepihallis, trepi osas seina kõrgus poolteist korrust.

Lagede pahteldamine, lihvimine 150 m2 (kahekordne kips lagi, kõrgus ca 255 cm)

Aknapaledel viimistleda 3 külge (alumist pole vaja), kolmel 2500x2100 on ülemise
serva vahu täide ca 6 cm.

Lauis Kõrgus Kogus
2500 2100 6
3200 1100 1
1200 1200 1
1200 2100 2
1000 2100 1

Pildid, video ja failid

Hanke korraldaja: eraisik ID47358

Pakkumised

Pakkumisi kokku: 4

Ettevõte Summa Käibemaks Lisatud Vestlus
Kasutaja ikoon ID44954
Pakkuja profiil Väike nool paremale
7 700€ Ei sisalda Ei sisalda 29.06.2018 Vestlus (8)

Pakkumise kirjeldus:

Tere!

Kiviseinad teeks MP-75 krohvi ja armeeringuga. Ei näe põhjust miks peaks rohkem raha kulutama kui lõpuks saab sama tulemuse nagunii. Kui teie kindel soov pahtliga siis teine asi, võib teha.
Tööde teostamisel kasutame pritsi. Garanteerime korraliku töötulemuse.
Hetkel saaks pihta hakata 9-dal.
Juhul kui pakkumine sobilik ja otsustate meid ... Rohkem

Kasutaja ikoon ID3098
Pakkuja profiil Väike nool paremale
10 000€ Sisaldab KM Sisaldab KM 03.07.2018 Vestlus (0)

Pakkumise kirjeldus:

Leping,kvaliteet,garantii10aastat,ettemaksu ei soovi,km.ei lisandu,tasumine 2osas arvete alusel.

Kasutaja ikoon ID39130
Pakkuja profiil Väike nool paremale
11 000€ Ei sisalda Ei sisalda 03.07.2018 Vestlus (0)

Pakkumise kirjeldus:

Km ei lisandu. Leping. Garantii

Kasutaja ikoon ID42866
Pakkuja profiil Väike nool paremale
7 500€ Ei sisalda Ei sisalda 04.07.2018 Vestlus (2)

Pakkumise kirjeldus:

Hind sisaldab töö ja materjal kuni lihvimine. Kui vaja veel pana grunt ja värv siis hind on 9500.

Küsimused hanke korraldajale

Hanke korraldajale ei ole veel küsimusi esitatud.

Lisa küsimus

Lisa küsimus

Minu pakkumine

Reeglid

Pakkumise kirjelduse väli on mõeldud pakkumise detailsemaks lahti kirjutamiseks. Pikema teksti mugavaks sisestamiseks klikkige kasti paremal ülaservas oleval ikoonil.
Pakkumist tehes on keelatud postitada enda kontaktandmeid (nimi, telefon, aadress jne). Me jälgime ja analüüsime pakkumisi, et vältida pettuseid ja reeglite rikkumisi.
Rikkumise puhul kasutajakonto blokeeritakse.

 

Teisi töid samas valdkonnas

Valdkonnas "Siseviimistlustööd" on 32 aktiivset tööd

Trepikoja värvimine

Asukoht: Harjumaa, Tallinn
Aega jäänud: 1h 20 min
Tehtud pakkumisi: 7

Ventilatsioonitoru vahetus, integreeritud nõudepesumasina ja pliidiplaadi vahetus

Asukoht: Tartumaa, Tartu
Aega jäänud: 1h 20 min
Tehtud pakkumisi: 5

Vanemad teated:

Vaata kõiki

Sellel veebilehel kasutatakse küpsiseid. Kasutamist jätkates nõustute küpsiste kasutamisega.

Sulge
 
Minu pakkumine

Reeglid

Pakkumise kirjelduse väli on mõeldud pakkumise detailsemaks lahti kirjutamiseks. Pikema teksti mugavaks sisestamiseks klikkige kasti paremal ülaservas oleval ikoonil.
Pakkumist tehes on keelatud postitada enda kontaktandmeid (nimi, telefon, aadress jne). Me jälgime ja analüüsime pakkumisi, et vältida pettuseid ja reeglite rikkumisi.
Rikkumise puhul kasutajakonto blokeeritakse.