+ Lisa oma töö      

Otsid ehitajat "Eramu ehitus" valdkonnast?

Parima pakkumise ja teostaja leidmiseks lisa oma töö.

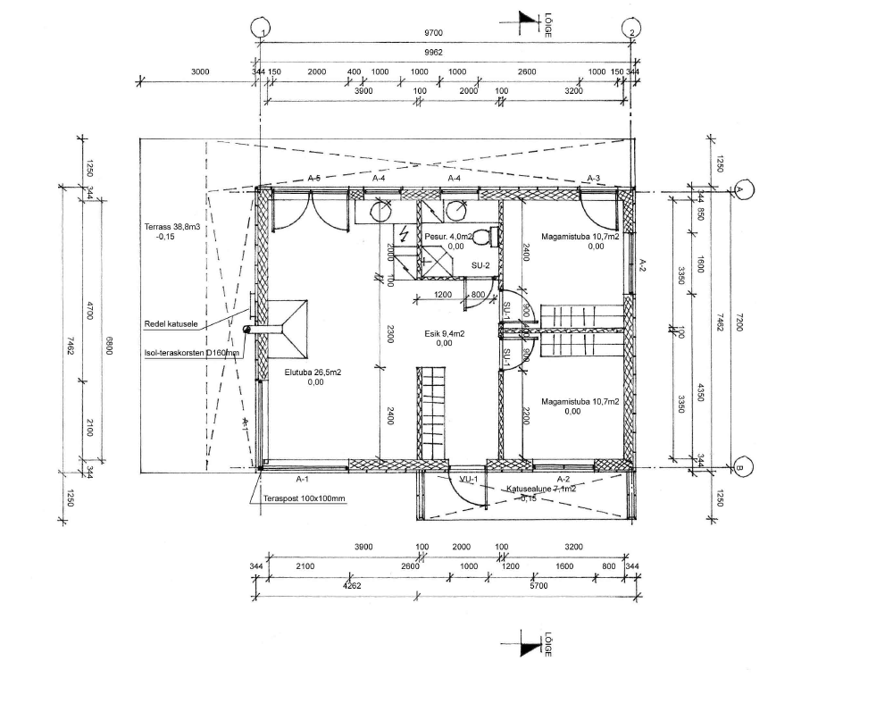
Lamekatusega väike puumaja 7.5x10m

ID 44332

2370 vaatamist

Prindi

  • check Pakkumiste tegemine
    kuni 23.08.2018
  • check Võitja valik kuni
    30.08.2018
  • 3 Töö teostamine
    ja hinnang
Hanke lõpp: N, 23. august, 2018
Maakond: Harjumaa
Muu asula: Vihterpalu
Tööde algus: E, 03. september, 2018 (Soovituslik)
Tööde lõpp: K, 31. oktoober, 2018 (Soovituslik)
Ehitusmaterjalid: Töö tegija poolt

Töö sisu

Ootan pakkumisi maja ehitajatelt kes ehitaks puusõrestikuga maja kuni siseviimistluseni(valge karbini) Vihterpalus.
Pakkumine peab sisaldama ehitusmaterjale ja kõiki töid kuni siseviimistluseni mis kuulub sinna k.a elektrimaterjale, projekti, töid.

Värske õhu juurdevool tagada
välisseintesse paigaldatavate õhu juurdevooluklappide (fresh) kaudu

Hoone energiaklass B

Soojustuse valikul tuleb lähtuda sellest, et ehitis oleks hea energiatõhususe tasemega.
Üldjuhul piiratakse elamute välispiirete summaarset soojaerikadu köetava pinna
ruutmeetri kohta väärtuseni 1,0 W/(m2K). Väikemajade soojustuse valikul võib
aluseks võtta järgmised lähteandmed: välisseinte soojajuhtivus 0,12–0,22 W(m2K),
katuste ja põrandate soojajuhtivus 0,1–0,15, akende ja uste soojajuhtivus 0,6–
1,1 W(m2K), kusjuures lõplikud valikud sõltuvad hoone kompaktsusest ning kütte- ja
ventilatsioonilahendustest.

Energiatõhususe miinimumnõuded vastavalt Majandus- ja taristuministri määrusele nr
55, v a 03.06.2015 „Hoone energiatõhususe miinimumnõuded“.



Seinad ja katuse.

Soojustatud välisseinad:

Fassaadi laudis- peensaetud 1x krunditud ja 2x värvitud)
28x45mm (dist. liist)
Kipsplaat, tuuletõke

45x195mm karkass
Mineraalvill, plaat 2x100mm
Aurutõkke kile 0,2mm
45x45mm karkass Mineraalvill plaat 50mm
Kile
Näriliste võrk



Katusekonstruktsioon:

Puidust katusefermid, ogaplaat liidetega
Katuse tuulutusliist 28x45mm
Katusekile SILVER või analoog
Põhikorruse lae soojustuseks 400mm
mineraalvilla
Katuse materjal: 2xSBS rullmaterjal
Projekteeritav katus parapetiga lamekatus – katuse kalle 1 kraad



Siseseinad:
karkass
Mineraalvill, plaat 100mm
tugevdatud Kipsplaat.
osadel seinel osb plaat+ tugevdatud kipsplaat(köök+pesuruum)
Mittekandvad vaheseinad põhikorrusel metallkarkassil kipsplaadist, karkassi vahel
heliisolatsiooniks 100mm mineraalvilla. Niiskete ruumide seinad katta
niiskustõkkega.




Terassid:
Sügavimmutatud materjal

Trepid
Välistrepid puitastmetega puittalastikul.

Vihmaveetorud
jm katusetarvikud tumepruuni värvi

Maja välisdetailid värvitakse(1x krunt+ 2x lõppvärv) pruuni tooni, mis selgub hiljem


NB: Ilmselt materjalide nimekiri ei ole täiuslik!




Maja Vundament on valmimisel ja ei kuulu pakkumisse.
Aknad, uksed ja terrassiuksed: ei kuulu pakkumisse.
Küte ja ventilatsiooni seadmed: ei kuulu pakkumisse.



Hanke käigus on võimalik lisa küsimusi esitada ning vastan neile jõukohaselt.

Pildid, video ja failid

Hanke korraldaja: eraisik ID48576

Pakkumised

Pakkumisi kokku: 3

Ettevõte Summa Käibemaks Lisatud Vestlus
Kasutaja ikoon ID49082
Pakkuja profiil Väike nool paremale
69 000€ Ei sisalda Ei sisalda 14.08.2018 Vestlus (0)

Pakkumise kirjeldus:

Pakkumisele lisandub km. Pakkumine sisaldab "võtmeed kätte" lahendust.

Kasutaja ikoon ID48294
Pakkuja profiil Väike nool paremale
65 542€ Sisaldab KM Sisaldab KM 22.08.2018 Vestlus (0)
Kasutaja ikoon ID47051
Pakkuja profiil Väike nool paremale
66 000€ Ei sisalda Ei sisalda 23.08.2018 Vestlus (0)

Pakkumise kirjeldus:

Tere, omame töödeks MTR tegevuu
ba seega saate korraa dokumentatsiooni vastavalt nõuetele. Eraldi KM ei lisandu. Omame vaid häid hinnanguid siis portaalis. Lgp

Küsimused hanke korraldajale

Hanke korraldajale ei ole veel küsimusi esitatud.

Lisa küsimus

Lisa küsimus

Minu pakkumine

Reeglid

Pakkumise kirjelduse väli on mõeldud pakkumise detailsemaks lahti kirjutamiseks. Pikema teksti mugavaks sisestamiseks klikkige kasti paremal ülaservas oleval ikoonil.
Pakkumist tehes on keelatud postitada enda kontaktandmeid (nimi, telefon, aadress jne). Me jälgime ja analüüsime pakkumisi, et vältida pettuseid ja reeglite rikkumisi.
Rikkumise puhul kasutajakonto blokeeritakse.

 

Teisi töid samas valdkonnas

Valdkonnas "Eramu ehitus" on 2 aktiivset tööd

Eramu ehitus

Asukoht: Viljandimaa, Viljandi
Aega jäänud: 5p 12h
Tehtud pakkumisi: 1

no-img Pilt puudub

Eramu ehitus. Karp kinni.

Asukoht: Lääne-Virumaa
Aega jäänud: 3p 12h
Tehtud pakkumisi: 0

Vanemad teated:

Vaata kõiki

Sellel veebilehel kasutatakse küpsiseid. Kasutamist jätkates nõustute küpsiste kasutamisega.

Sulge
 
Minu pakkumine

Reeglid

Pakkumise kirjelduse väli on mõeldud pakkumise detailsemaks lahti kirjutamiseks. Pikema teksti mugavaks sisestamiseks klikkige kasti paremal ülaservas oleval ikoonil.
Pakkumist tehes on keelatud postitada enda kontaktandmeid (nimi, telefon, aadress jne). Me jälgime ja analüüsime pakkumisi, et vältida pettuseid ja reeglite rikkumisi.
Rikkumise puhul kasutajakonto blokeeritakse.