+ Lisa oma töö      

Otsid ehitajat "Arhitektibürood" valdkonnast?

Parima pakkumise ja teostaja leidmiseks lisa oma töö.

Garaazi projekt

ID 44374

3246 vaatamist

Prindi

  • check Pakkumiste tegemine
    kuni 04.08.2018
  • check Võitja valik kuni
    11.08.2018
  • 3 Töö teostamine
    ja hinnang
Hanke lõpp: L, 4. august, 2018
Maakond: Harjumaa
Muu asula: Kiili Vald. Vaela küla.
Tööde algus: K, 29. august, 2018 (Soovituslik)
Tööde lõpp: R, 31. august, 2018 (Soovituslik)
Ehitusmaterjalid: Töö tellija poolt

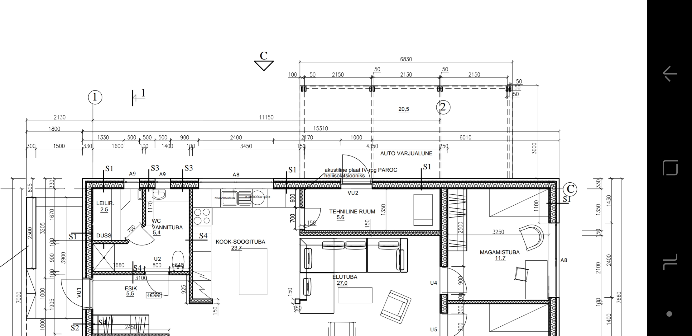
Töö sisu

Soovin soetada projekti garaazile maja külge.
Kolm seina puitpostidele, neljas maja oma.
Tugipostideks kasutaksin 150x150. 2m sammuga
Katuse 45x200. Sps + rullmaterjal. Prussid 60cm sammuga.
Seinele tuuletõke ja peale aluslaudis ning kaanelaud. Verikaalselt.
Garaazi tuleb elektriline tõsteuks standard mõõdus.
Garaazi mõõtmed 8500 pikk ja 5500 lai.
Manuses olemasolevast majast projekti pilt.

Garaaz tuleb projektis märgitud katusealuse asemel. Kuid lõppeb majaga samal kaugusel.

Pildid, video ja failid

Hanke korraldaja: eraisik ID42739

Pakkumised

Pakkumisi kokku: 2

Ettevõte Summa Käibemaks Lisatud Vestlus
Kasutaja ikoon ID40297
Pakkuja profiil Väike nool paremale
700€ Ei sisalda Ei sisalda 31.07.2018 Vestlus (0)

Pakkumise kirjeldus:

Tere! Pakkumine sisaldab garaazi ehitusprojekti vastavalt Teie hanke kirjeldusele. Projekt sisaldab arhitektuurseid plaane, vaateid, lõikeid, avatäidete spetsifikatsiooni, konstruktsioonide põhisõlmede lahendusi, seletuskirja, asendiplaani (tellija geoalusele) ja situatsiooniskeemi. Seletuskirjas on lahtikirjutatud põhimõttelised päästeameti/tuleohut ... Rohkem

Kasutaja ikoon ID46636
Pakkuja profiil Väike nool paremale
500€ Ei sisalda Ei sisalda 31.07.2018 Vestlus (2)

Küsimused hanke korraldajale

Hanke korraldajale ei ole veel küsimusi esitatud.

Lisa küsimus

Lisa küsimus

Minu pakkumine

Reeglid

Pakkumise kirjelduse väli on mõeldud pakkumise detailsemaks lahti kirjutamiseks. Pikema teksti mugavaks sisestamiseks klikkige kasti paremal ülaservas oleval ikoonil.
Pakkumist tehes on keelatud postitada enda kontaktandmeid (nimi, telefon, aadress jne). Me jälgime ja analüüsime pakkumisi, et vältida pettuseid ja reeglite rikkumisi.
Rikkumise puhul kasutajakonto blokeeritakse.

 

Vanemad teated:

Vaata kõiki

Sellel veebilehel kasutatakse küpsiseid. Kasutamist jätkates nõustute küpsiste kasutamisega.

Sulge
 
Minu pakkumine

Reeglid

Pakkumise kirjelduse väli on mõeldud pakkumise detailsemaks lahti kirjutamiseks. Pikema teksti mugavaks sisestamiseks klikkige kasti paremal ülaservas oleval ikoonil.
Pakkumist tehes on keelatud postitada enda kontaktandmeid (nimi, telefon, aadress jne). Me jälgime ja analüüsime pakkumisi, et vältida pettuseid ja reeglite rikkumisi.
Rikkumise puhul kasutajakonto blokeeritakse.