+ Lisa oma töö      

Otsid ehitajat "Eramu ehitus" valdkonnast?

Parima pakkumise ja teostaja leidmiseks lisa oma töö.

Välisseinte ja kandvate siseseinte ladumine uuele eramule

ID 44473

2375 vaatamist

Prindi

  • check Pakkumiste tegemine
    kuni 05.09.2018
  • check Võitja valik kuni
    12.09.2018
  • 3 Töö teostamine
    ja hinnang
Hanke lõpp: K, 5. september, 2018
Maakond: Harjumaa
Muu asula: Aruküla, Raasiku vald
Tööde algus: E, 13. august, 2018 (Soovituslik)
Tööde lõpp: P, 16. september, 2018 (Soovituslik)
Ehitusmaterjalid: Töö tellija poolt

Töö sisu

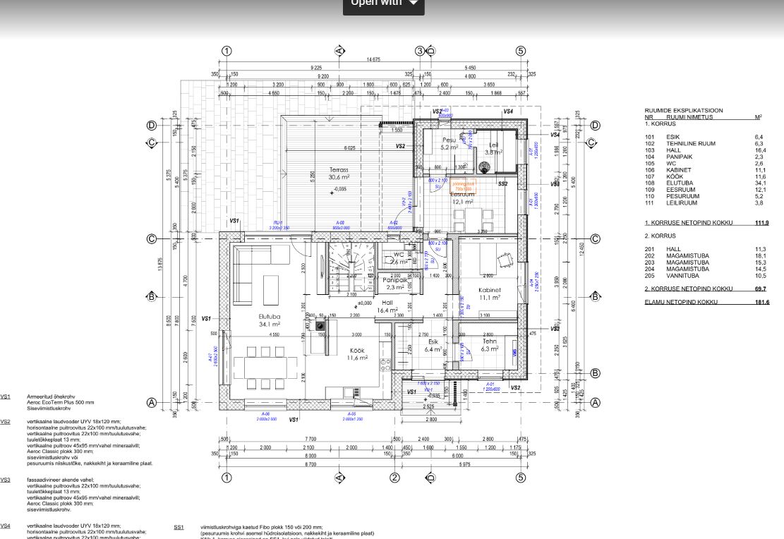
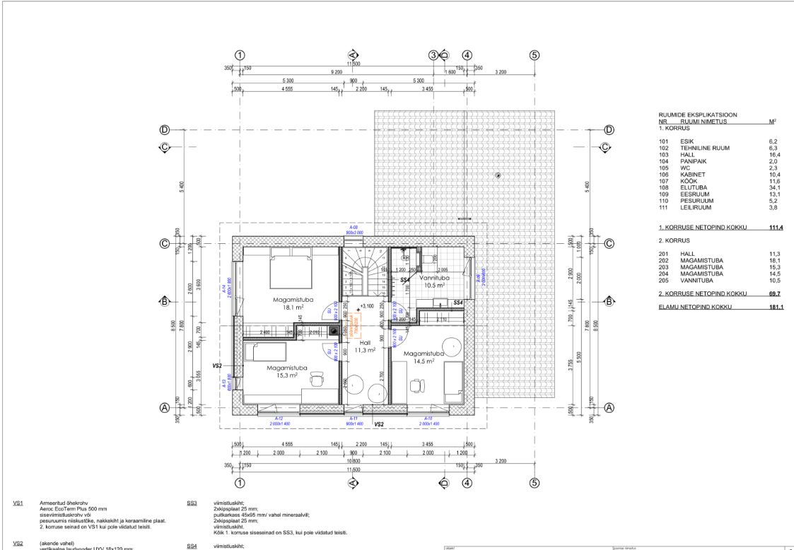
Ehitamisel uus 2-kordne eramu.
Olemas vundament koos tagasitäitega.

Vaja laduda I ja II korruse müür, I korruse vahevöö, paneelide vuukida ja otste betoneerimine.
Tellingute hankimine või ehitus kokkuleppel.

Materjal asub objektil (kivid, sillused, liim jm.).

Välisseinad:
Bauroc 500mm, 202 m2
Bauroc 300mm, 71 m2
Bauroc 200mm, 15 m2

Kandvad siseseinad:
Fibo 150mm, 25 m2

Pildid, video ja failid

Hanke korraldaja: eraisik ID48991

Pakkumised

Pakkumisi kokku: 3

Ettevõte Summa Käibemaks Lisatud Vestlus
Kasutaja ikoon ID42519
Pakkuja profiil Väike nool paremale
14€ Ei sisalda Ei sisalda 06.08.2018 Vestlus (4)

Pakkumise kirjeldus:

Tere,14 eur ruut ladumine,Paneelide montaazh ja betoneerimine 9 eur ruut,betonivöö 7 eur jooksev meeter,teie poolt tellinguid,meie poolt tööristad ja kiire kvaliteetne töö
LG vk

Kasutaja ikoon ID46243
Pakkuja profiil Väike nool paremale
6 760€ Sisaldab KM Sisaldab KM 10.08.2018 Vestlus (0)

Pakkumise kirjeldus:

Tere.

Meie poolne hinnapakkumine oleks:

-baurock 500 - 25 eur/m2
-baurock 300- 16 eur/m2
-baurock 200- 15 eur/m2
-fibo 150-14 eur/m2

Ladumistööd kokku: 6760 eur

betooni ja muud tööd on tunnitöö alusel 15 eur/h mehe pealt.

kvaliteet garanteeritud

Lugupidamisega
Tarmo

Kasutaja ikoon ID44954
Pakkuja profiil Väike nool paremale
5 780€ Ei sisalda Ei sisalda 13.08.2018 Vestlus (0)

Pakkumise kirjeldus:

Tere!

Meie pakkumine töödele oleks järgnev...
1. Bauroc 500- 20 eur/m2
2. Bauroc 300- 16 eur/m2
3. Bauroc 200- 15 eur/m2
4. Fibo 150- 15 eur/m2
5. Sillused- 35 eur/tk
6. Ülejäänud tööd tunnipõhiselt 18 eur/h

Kuna ise teeme välisfassaade (krohv) ning samuti seest krohvi MP-75 siis jälgime väga hoolega ladumiskvalteeti, silmaspidades jà ... Rohkem

Küsimused hanke korraldajale

Hanke korraldajale ei ole veel küsimusi esitatud.

Lisa küsimus

Lisa küsimus

Minu pakkumine

€

Reeglid

Pakkumise kirjelduse väli on mõeldud pakkumise detailsemaks lahti kirjutamiseks. Pikema teksti mugavaks sisestamiseks klikkige kasti paremal ülaservas oleval ikoonil.
Pakkumist tehes on keelatud postitada enda kontaktandmeid (nimi, telefon, aadress jne). Me jälgime ja analüüsime pakkumisi, et vältida pettuseid ja reeglite rikkumisi.
Rikkumise puhul kasutajakonto blokeeritakse.

 

Vanemad teated:

Vaata kõiki

Sellel veebilehel kasutatakse küpsiseid. Kasutamist jätkates nõustute küpsiste kasutamisega.

Sulge
 
Minu pakkumine
€

Reeglid

Pakkumise kirjelduse väli on mõeldud pakkumise detailsemaks lahti kirjutamiseks. Pikema teksti mugavaks sisestamiseks klikkige kasti paremal ülaservas oleval ikoonil.
Pakkumist tehes on keelatud postitada enda kontaktandmeid (nimi, telefon, aadress jne). Me jälgime ja analüüsime pakkumisi, et vältida pettuseid ja reeglite rikkumisi.
Rikkumise puhul kasutajakonto blokeeritakse.