+ Lisa oma töö      

Otsid ehitajat "Vundamenditööd" valdkonnast?

Parima pakkumise ja teostaja leidmiseks lisa oma töö.

Vundamendi rajamine. Vundamendi ümber drenaaži rajamine.

ID 44497

2815 vaatamist

Prindi

  • check Pakkumiste tegemine
    kuni 21.08.2018
  • check Võitja valik kuni
    28.08.2018
  • 3 Töö teostamine
    ja hinnang
Hanke lõpp: T, 21. august, 2018
Maakond: Harjumaa
Muu asula: Harku vald
Tööde algus: T, 07. august, 2018 (Soovituslik)
Tööde lõpp: R, 31. august, 2018 (Soovituslik)
Ehitusmaterjalid: Töö tegija poolt

Töö sisu

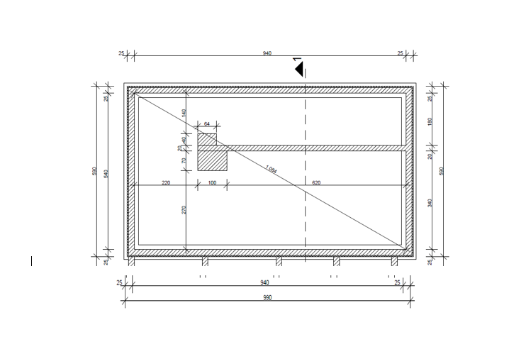
Vundamendi rajamine.
Lintvundament. Rajatise mõõdud 6 x 10 meetrit. Harjumaa, Harku vald. Pinnas paekivi. Pinnas kooritud vajaliku sügavuseni.

Vundamendi ümber drenaaži rajamine. Harjumaa, Harku vald. Pinnas paekivi. Pinnas kooritud vajaliku sügavuseni. Drenaaži kogupikkus ca 50 meetrit. Nurkadesse kogumiskaevud.

Pildid, video ja failid

Hanke korraldaja: eraisik ID49007

Pakkumised

Pakkumisi kokku: 3

Ettevõte Summa Käibemaks Lisatud Vestlus
Kasutaja ikoon ID46975
Pakkuja profiil Väike nool paremale
12 300€ Ei sisalda Ei sisalda 21.08.2018 Vestlus (0)

Pakkumise kirjeldus:

Tere. Pakkumises vundament ja drenaaz.

Kasutaja ikoon ID47051
Pakkuja profiil Väike nool paremale
11 400€ Ei sisalda Ei sisalda 21.08.2018 Vestlus (0)

Pakkumise kirjeldus:

Tere,omame töödeks MTR tegevusluba seega hilisemad dokumendid korras. Omame vaid positiivseid hinnanguid, hetkel just teeme ühte vundamenti ning teine brigaad saaks teil teha. Eraldi KM ei lisandu. Lgp

Kasutaja ikoon ID8356
Pakkuja profiil Väike nool paremale
10 988€ Ei sisalda Ei sisalda 21.08.2018 Vestlus (0)

Pakkumise kirjeldus:

Vundamendi ja drenaaži paigalduse maksumus

Küsimused hanke korraldajale

Küsimus: private ID42602   07.08.2018 12:43
Tere.<br />
<br />
Mis materjalist lint tuleb? Mis kõrgusega?<br />
<br />
M.

Teavita reeglite rikkumisest

Korraldaja vastus:
Hanke korraldaja ei ole küsimusele veel vastanud

Küsimus: private ID49081   15.08.2018 14:31
Kuhu suunatakse kogutav vesi? Kas tuleb rajada ka imbväljak?<br />
Kas ainult drenaaz või ka sadevee kogumissüsteem?

Teavita reeglite rikkumisest

Korraldaja vastus: 15.08.2018 22:57

Vesi peab suunduma krundi servas olevasse kraavi. Kogumiseks piisab ilmselt nurkadesse madalate, alt lahtiste kaevude olemasolust.

Teavita reeglite rikkumisest

Lisa küsimus

Lisa küsimus

Minu pakkumine

Reeglid

Pakkumise kirjelduse väli on mõeldud pakkumise detailsemaks lahti kirjutamiseks. Pikema teksti mugavaks sisestamiseks klikkige kasti paremal ülaservas oleval ikoonil.
Pakkumist tehes on keelatud postitada enda kontaktandmeid (nimi, telefon, aadress jne). Me jälgime ja analüüsime pakkumisi, et vältida pettuseid ja reeglite rikkumisi.
Rikkumise puhul kasutajakonto blokeeritakse.

 

Teisi töid samas valdkonnas

Valdkonnas "Vundamenditööd" on 9 aktiivset tööd

Plaatvundamendi valamine

Asukoht: Tartumaa, Tartu
Aega jäänud: 2p 18h
Tehtud pakkumisi: 3

no-img Pilt puudub

Plaatvundament koos kommunikatsioonidega

Asukoht: Harjumaa
Aega jäänud: 18h 6 min
Tehtud pakkumisi: 2

Vanemad teated:

Vaata kõiki

Sellel veebilehel kasutatakse küpsiseid. Kasutamist jätkates nõustute küpsiste kasutamisega.

Sulge
 
Minu pakkumine

Reeglid

Pakkumise kirjelduse väli on mõeldud pakkumise detailsemaks lahti kirjutamiseks. Pikema teksti mugavaks sisestamiseks klikkige kasti paremal ülaservas oleval ikoonil.
Pakkumist tehes on keelatud postitada enda kontaktandmeid (nimi, telefon, aadress jne). Me jälgime ja analüüsime pakkumisi, et vältida pettuseid ja reeglite rikkumisi.
Rikkumise puhul kasutajakonto blokeeritakse.