+ Lisa oma töö      

Otsid ehitajat "Elektritööd" valdkonnast?

Parima pakkumise ja teostaja leidmiseks lisa oma töö.

Uuseramu elektritööd vastavalt projektile

ID 44531

3025 vaatamist

Prindi

  • check Pakkumiste tegemine
    kuni 23.08.2018
  • check Võitja valik kuni
    30.08.2018
  • 3 Töö teostamine
    ja hinnang
Hanke lõpp: N, 23. august, 2018
Maakond: Harjumaa
Muu asula: Vanamõisa
Tööde algus: R, 28. september, 2018 (Soovituslik)
Tööde lõpp: R, 30. november, 2018 (Soovituslik)
Ehitusmaterjalid: Töö tellija poolt

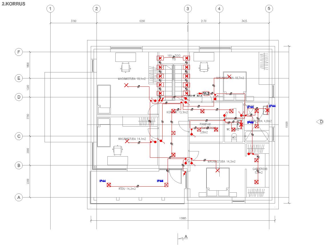
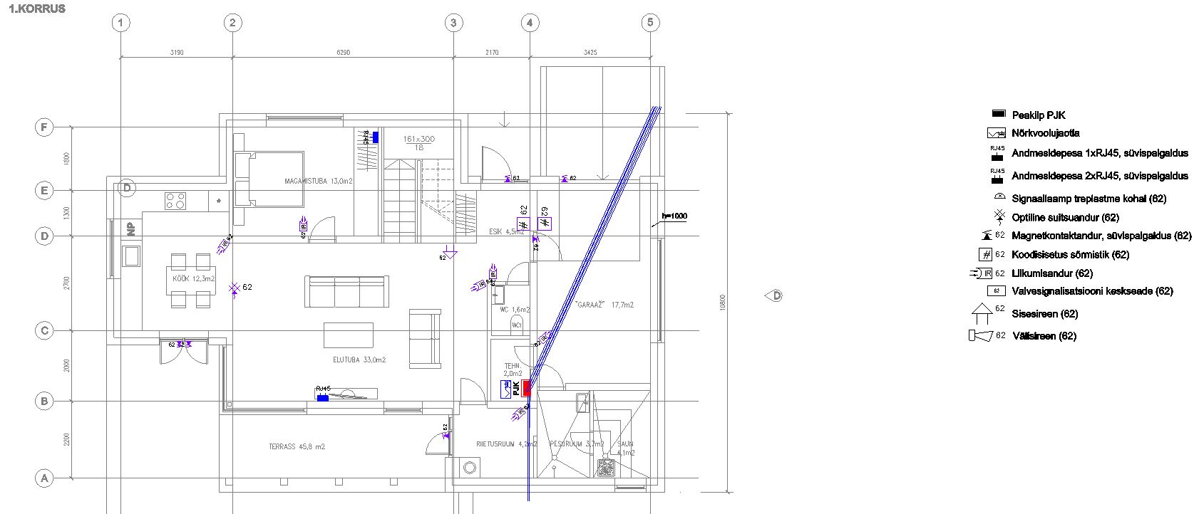
Töö sisu

Kaabeldus - pistikupesad, lülitid (toosid, karbikud), nõrkvoolu kaabeldus.
Pakkumine ei sisalda valgusteid, pistikuid, lüliteid ega nende paigaldamist.
Hoone on fibo plokkidest, R/B vahelaepaneelidega.
1. korruse valgustite kaabelduse võib vedada vahetult paneelide pealt (paneelidele paigaldatakse soojustus ning betoon 10 cm põr küttega).

Pildid, video ja failid

Hanke korraldaja: ettevõte ID42628

Pakkumised

Pakkumisi kokku: 2

Ettevõte Summa Käibemaks Lisatud Vestlus
Kasutaja ikoon ID25180
Pakkuja profiil Väike nool paremale
6 300€ Ei sisalda Ei sisalda 13.08.2018 Vestlus (0)

Pakkumise kirjeldus:

Eramu kaabeldus, tooside ja kilbi paigaldamine koos materjaldega. Pakkumine ei sisalda: pesade, lülitite, valgustite paigaldust, kaevetööd. Lugupidamisega.

Kasutaja ikoon ID33667
Pakkuja profiil Väike nool paremale
5 900€ Ei sisalda Ei sisalda 23.08.2018 Vestlus (2)

Pakkumise kirjeldus:

Pakkumus sisaldab majasisest tugev- ja nõrkvoolu kaabeldust ilma pistikute/lülitite/valgustite paigalduseta. Pakkumus sisaldab samuti kilbi paigaldust ja komplekteerimist ning cat6 kaablite otsastamist jaotlapoolses otsas. Pakkumus ei sisalda kaevetöid, välitrasside paigaldust. Tasustamine etapipõhiselt aktide alusel, ettemaksu ei soovi.

Küsimused hanke korraldajale

Küsimus: private ID25180   09.08.2018 19:10
Tere. Kas nõrkvoolu kabelduse skeem leidub või tuleb koostada (lisatöö) ? Hetkel on näidatud ainult andurite asukohad. Tänan

Teavita reeglite rikkumisest

Korraldaja vastus: 10.08.2018 10:46

anduritega on selliselt, et need tulevad tõen ilma kaalbita. lisan veel nõrkvoolu põhimõtte skeemi. nõrkvoolu kaabeldusest jääb 7 interneti pistikut.

Teavita reeglite rikkumisest

Lisa küsimus

Lisa küsimus

Minu pakkumine

Reeglid

Pakkumise kirjelduse väli on mõeldud pakkumise detailsemaks lahti kirjutamiseks. Pikema teksti mugavaks sisestamiseks klikkige kasti paremal ülaservas oleval ikoonil.
Pakkumist tehes on keelatud postitada enda kontaktandmeid (nimi, telefon, aadress jne). Me jälgime ja analüüsime pakkumisi, et vältida pettuseid ja reeglite rikkumisi.
Rikkumise puhul kasutajakonto blokeeritakse.

 

Teisi töid samas valdkonnas

Valdkonnas "Elektritööd" on 5 aktiivset tööd

Vana talu elektrisüsteemi uuendamine (kilp, pistikud, välivalgustus, EV valmidus)

Asukoht: Raplamaa, Suurekivi
Aega jäänud: 1p 8h
Tehtud pakkumisi: 5

Kaablite vahetus paneelmaja korteris ja siseviimistlus

Asukoht: Harjumaa, Tallinn
Aega jäänud: 6p 8h
Tehtud pakkumisi: 3

Vanemad teated:

Vaata kõiki

Sellel veebilehel kasutatakse küpsiseid. Kasutamist jätkates nõustute küpsiste kasutamisega.

Sulge
 
Minu pakkumine

Reeglid

Pakkumise kirjelduse väli on mõeldud pakkumise detailsemaks lahti kirjutamiseks. Pikema teksti mugavaks sisestamiseks klikkige kasti paremal ülaservas oleval ikoonil.
Pakkumist tehes on keelatud postitada enda kontaktandmeid (nimi, telefon, aadress jne). Me jälgime ja analüüsime pakkumisi, et vältida pettuseid ja reeglite rikkumisi.
Rikkumise puhul kasutajakonto blokeeritakse.