+ Lisa oma töö      

Otsid ehitajat "Aia ehitus" valdkonnast?

Parima pakkumise ja teostaja leidmiseks lisa oma töö.

Terrassi ehitus Tartus

ID 44571

2892 vaatamist

Prindi

  • check Pakkumiste tegemine
    kuni 27.08.2018
  • check Võitja valik kuni
    03.09.2018
  • 3 Töö teostamine
    ja hinnang
Hanke lõpp: E, 27. august, 2018
Maakond: Tartumaa
Muu asula: Räni
Tööde algus: E, 13. august, 2018 (Soovituslik)
Tööde lõpp: R, 31. august, 2018 (Soovituslik)
Ehitusmaterjalid: Töö tegija poolt

Töö sisu

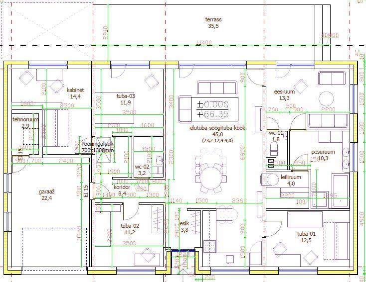
Sooviks ehitada terrassi, kuskil 12 x 3-3.5m. Aluspind enamvähem ettevalmistatud - kaevatud ära muld, lisatud liiva ja postid valatud (16mm kanalka torude sisse, laseriga mõõdetud, vaja vaid toru otsad ära lõigata). Maja ääres ka olemas killustik, mida saab vajadusel ka alla lükata kuna juba mõnes kohas umbrohi kasvab läbi.

Võimalusel ka lisada juurde, mis maksaks eraldi veel katusealuse lisamisele ühte otsa, umbes kolmanik kogu terrassi pikkusest.

Pildid, video ja failid

Hanke korraldaja: eraisik ID49064

Pakkumised

Pakkumisi kokku: 14

Ettevõte Summa Käibemaks Lisatud Vestlus
Kasutaja ikoon ID8637
Pakkuja profiil Väike nool paremale
3 300€ Sisaldab KM Sisaldab KM 14.08.2018 Vestlus (0)

Pakkumise kirjeldus:

Tere,

Pakkumine on terassi ehitamine koos materjalidega.
Materjal 1800 Eur (sisaldab kõik vajalikud materjalid koos transpordiga)
Töötasu 1500 Eur (sisaldab teostuse koos vajalike vahenditega)
Kokku 3300 Eur.
Tööaeg 3-5 tööpäeva
Tehtud töödele Garantii
Varjualus avatud kujul nagu kirjeldus Standard ca 12 m2 hind koos materjalidega 180 ... Rohkem

Kasutaja ikoon ID49102
Pakkuja profiil Väike nool paremale
2 700€ Ikoon kell Sisaldab KM Sisaldab KM 15.08.2018 Vestlus (0)

Pakkumise kirjeldus:

Tere

Terrassi ehituse hinnapakkumine on 2700 eur.
Soovi korral on võimalik teha nii, et terrassi laudise pealmisesse kihti ei jääks kruvi puurimisauke, kuid sel juhul lisandub klambrite tasu (560eur).
Katuse ehitamise tasu on 405 eur. (Katusekatteks läbipaistev PVC)
Katuse hind kehtib koos terrassi ehitusega.

Kohapeal kohtudes leiaksime kõige ... Rohkem

Kasutaja ikoon ID47600
Pakkuja profiil Väike nool paremale
2 500€ Ei sisalda Ei sisalda 16.08.2018 Vestlus (0)

Pakkumise kirjeldus:

Hind koos varjualuse ehitusega oleks 3000e. Oleneb täpsemalt sellest mis soov on varjualuse ehitusega, kas ainult katusealune, või on soov mingid seinad ka kinni ehitada, sellest tuleneb ka 10% kõikumine. Jooniselt on näha, et tuleb ka 2.e astmeline trepp terassile, on mul õigus?

Hind siis terassi ehituseks on 2500e ja varjualuse ehituseks on 500e.

Kasutaja ikoon ID48392
Pakkuja profiil Väike nool paremale
1 700€ Sisaldab KM Sisaldab KM 20.08.2018 Vestlus (0)

Pakkumise kirjeldus:

Tere.
Hind sisaldab tööd ja töövahendeid. Lisandub materjal vastavalt kliendi soovile. Hind ei sisalda ka katusealust. Katusealuse ehitamise jaoks peaks kohapeal vaatama millised võimalused ,varjandid ja soovid on.
Parimat Kaido

Kasutaja ikoon ID48294
Pakkuja profiil Väike nool paremale
2 134€ Sisaldab KM Sisaldab KM 22.08.2018 Vestlus (0)

Pakkumise kirjeldus:

Garantii töödele 2 aastat

Kasutaja ikoon ID36361
Pakkuja profiil Väike nool paremale
2 300€ Ei sisalda Ei sisalda 22.08.2018 Vestlus (0)
Kasutaja ikoon ID47130
Pakkuja profiil Väike nool paremale
2 400€ Ei sisalda Ei sisalda 22.08.2018 Vestlus (0)

Pakkumise kirjeldus:

Oleme kogemusega puitseppad. Teostame tööd kiirelt ja kvaliteetselt.

Kasutaja ikoon ID48798
Pakkuja profiil Väike nool paremale
2 300€ Ei sisalda Ei sisalda 24.08.2018 Vestlus (0)

Pakkumise kirjeldus:

Hind terassile koos materjaliga, katuse hinna saaks kohapeal kokku leppida kuna peaks nägema olukorda

Kasutaja ikoon ID43292
Pakkuja profiil Väike nool paremale
1 800€ Ei sisalda Ei sisalda 25.08.2018 Vestlus (0)

Pakkumise kirjeldus:

Pakkumine terrassi ehitusele koos materjalidega.
Katusealuse lepiks kokku kohapeal, kuna hetkel infot vähe.
Mis katusematerjal nt.
Lugupidamisega K

Kasutaja ikoon ID46980
Pakkuja profiil Väike nool paremale
2 450€ Ei sisalda Ei sisalda 26.08.2018 Vestlus (0)

Pakkumise kirjeldus:

Hinnas katusealune plekk katusekattega, vajalikud materjalid ning tööraha. Töödele garantii 2 aastat. Töö kiire ning korralik.
Katusealuse hind 900.- materjalidega.
Kohapeal võimalus asju uuesti läbi arutada.

Kasutaja ikoon ID49185
Pakkuja profiil Väike nool paremale
2 200€ Sisaldab KM Sisaldab KM 26.08.2018 Vestlus (0)

Pakkumise kirjeldus:

Tere
Ettemaks materjali ostuks. Lõplik hind selgub siiski kohapeal üle vaadates.Lugupidamisega.

Kasutaja ikoon ID30805
Pakkuja profiil Väike nool paremale
2 520€ Ei sisalda Ei sisalda 27.08.2018 Vestlus (0)

Pakkumise kirjeldus:

Ettemaks 30 % materjali kulu .
Puidu valik roheline või pruun tavaline terrassi materjal !
Hind sisaldab ka kogu ulatuses pimeduskangast , et hein läbi ei kasvaks mille peale võib liiva või kruusa panna või siis olemas olevat killustiku.
Pakkumises katusealust ei ole !

Kasutaja ikoon ID23896
Pakkuja profiil Väike nool paremale
2 290€ Ei sisalda Ei sisalda 27.08.2018 Vestlus (0)

Pakkumise kirjeldus:

Töö koos materjalidega

Kasutaja ikoon ID43061
Pakkuja profiil Väike nool paremale
2 350€ Ei sisalda Ei sisalda 27.08.2018 Vestlus (0)

Pakkumise kirjeldus:

Tere hind koos katuse alusega.

Küsimused hanke korraldajale

Hanke korraldajale ei ole veel küsimusi esitatud.

Lisa küsimus

Lisa küsimus

Minu pakkumine

Reeglid

Pakkumise kirjelduse väli on mõeldud pakkumise detailsemaks lahti kirjutamiseks. Pikema teksti mugavaks sisestamiseks klikkige kasti paremal ülaservas oleval ikoonil.
Pakkumist tehes on keelatud postitada enda kontaktandmeid (nimi, telefon, aadress jne). Me jälgime ja analüüsime pakkumisi, et vältida pettuseid ja reeglite rikkumisi.
Rikkumise puhul kasutajakonto blokeeritakse.

 

Teisi töid samas valdkonnas

Valdkonnas "Aia ehitus" on 18 aktiivset tööd

Tänavakivi puhastus

Asukoht: Harjumaa, Tallinn
Aega jäänud: 8h 57 min
Tehtud pakkumisi: 8

no-img Pilt puudub

Piirdeaia postide paigaldus koos paneelidega

Asukoht: Tartumaa
Aega jäänud: 1p 8h
Tehtud pakkumisi: 5

Vanemad teated:

Vaata kõiki

Sellel veebilehel kasutatakse küpsiseid. Kasutamist jätkates nõustute küpsiste kasutamisega.

Sulge
 
Minu pakkumine

Reeglid

Pakkumise kirjelduse väli on mõeldud pakkumise detailsemaks lahti kirjutamiseks. Pikema teksti mugavaks sisestamiseks klikkige kasti paremal ülaservas oleval ikoonil.
Pakkumist tehes on keelatud postitada enda kontaktandmeid (nimi, telefon, aadress jne). Me jälgime ja analüüsime pakkumisi, et vältida pettuseid ja reeglite rikkumisi.
Rikkumise puhul kasutajakonto blokeeritakse.