+ Lisa oma töö      

Otsid ehitajat "Projekteerimine" valdkonnast?

Parima pakkumise ja teostaja leidmiseks lisa oma töö.

Eramaja põrandakütte projekt

ID 44601

4578 vaatamist

Prindi

  • check Pakkumiste tegemine
    kuni 28.08.2018
  • check Võitja valik kuni
    04.09.2018
  • 3 Töö teostamine
    ja hinnang
Hanke lõpp: T, 28. august, 2018
Maakond: Viljandimaa
Linn: Viljandi
Tööde algus: T, 14. august, 2018 (Soovituslik)
Tööde lõpp: T, 28. august, 2018 (Soovituslik)
Ehitusmaterjalid: Töö tellija poolt

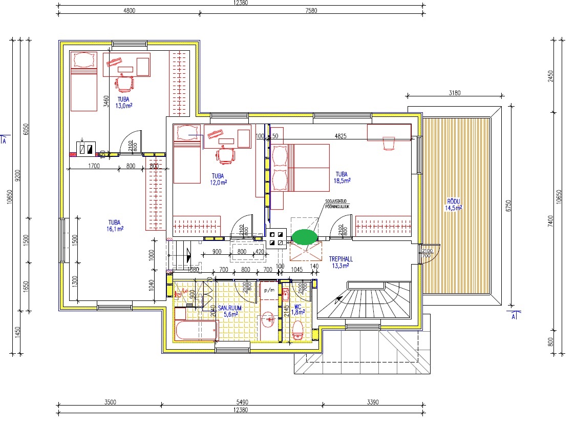
Töö sisu

Soovin pakkumist vesipõrandakütte projektile.

Põrandaküte läheks nii esimesel korrusele kui teisele. Esimesele korrusele plaanis põrandaküttetoru valada betooni teisel lahendada asi kipsivaluga. Maja vasak külg on erineval tasemel, majaosast kuskil 40-50 cm madalam (tööruum; leil ja teisel korrusel tuba 16,1 m2; tuba 13m2)

Kokku oleks kuskil 150 m2 pinda. Tubade kõrgus 250 cm. Soovituslikud kollektori asukoht on märgitud rohelise täpiga. Küteseade jääb põhimõtteliselt täpi alla.

Kõik toad võiksid olla eraldi juhitavad (kontuur), koridorid ja wc-d võivad olla koos.

Pildid, video ja failid

Hanke korraldaja: eraisik ID39861

Pakkumised

Pakkumisi kokku: 1

Ettevõte Summa Käibemaks Lisatud Vestlus
Kasutaja ikoon ID47506
Pakkuja profiil Väike nool paremale
900€ Ei sisalda Ei sisalda 15.08.2018 Vestlus (0)

Pakkumise kirjeldus:

kogenud insener koostab vajaliku projekti põhiprojekti staadiumis. Kestus max 4 ndl, eeldusel, et dwg joonised on olemas.

Küsimused hanke korraldajale

Hanke korraldajale ei ole veel küsimusi esitatud.

Lisa küsimus

Lisa küsimus

Minu pakkumine

Reeglid

Pakkumise kirjelduse väli on mõeldud pakkumise detailsemaks lahti kirjutamiseks. Pikema teksti mugavaks sisestamiseks klikkige kasti paremal ülaservas oleval ikoonil.
Pakkumist tehes on keelatud postitada enda kontaktandmeid (nimi, telefon, aadress jne). Me jälgime ja analüüsime pakkumisi, et vältida pettuseid ja reeglite rikkumisi.
Rikkumise puhul kasutajakonto blokeeritakse.

 

Teisi töid samas valdkonnas

Valdkonnas "Projekteerimine" on 7 aktiivset tööd

no-img Pilt puudub

1-kordse 120 m2 elumaja põhiprojekt

Asukoht: Harjumaa, Metsanurme
Aega jäänud: 8p 8h
Tehtud pakkumisi: 4

no-img Pilt puudub

Saunamaja eelprojekt ehitusteatiseks

Asukoht: Lääne-Virumaa
Aega jäänud: 1p 8h
Tehtud pakkumisi: 3

Vanemad teated:

Vaata kõiki

Sellel veebilehel kasutatakse küpsiseid. Kasutamist jätkates nõustute küpsiste kasutamisega.

Sulge
 
Minu pakkumine

Reeglid

Pakkumise kirjelduse väli on mõeldud pakkumise detailsemaks lahti kirjutamiseks. Pikema teksti mugavaks sisestamiseks klikkige kasti paremal ülaservas oleval ikoonil.
Pakkumist tehes on keelatud postitada enda kontaktandmeid (nimi, telefon, aadress jne). Me jälgime ja analüüsime pakkumisi, et vältida pettuseid ja reeglite rikkumisi.
Rikkumise puhul kasutajakonto blokeeritakse.