+ Lisa oma töö      

Otsid ehitajat "Torutööd" valdkonnast?

Parima pakkumise ja teostaja leidmiseks lisa oma töö.

Vee, kanalisatsiooni ja põrandakütte tööd

ID 44650

2643 vaatamist

Prindi

  • check Pakkumiste tegemine
    kuni 31.08.2018
  • check Võitja valik kuni
    07.09.2018
  • 3 Töö teostamine
    ja hinnang
Hanke lõpp: R, 31. august, 2018
Maakond: Harjumaa
Muu asula: Vanamõisa
Tööde algus: E, 24. september, 2018 (Soovituslik)
Tööde lõpp: K, 31. oktoober, 2018 (Soovituslik)
Ehitusmaterjalid: Töö tellija poolt

Töö sisu

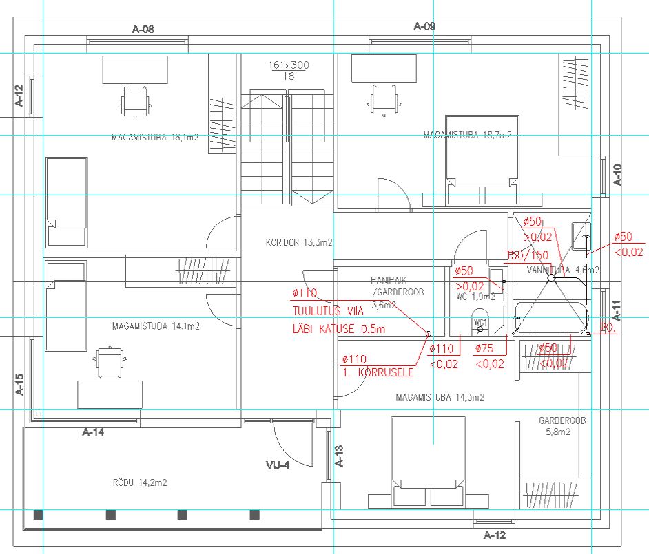
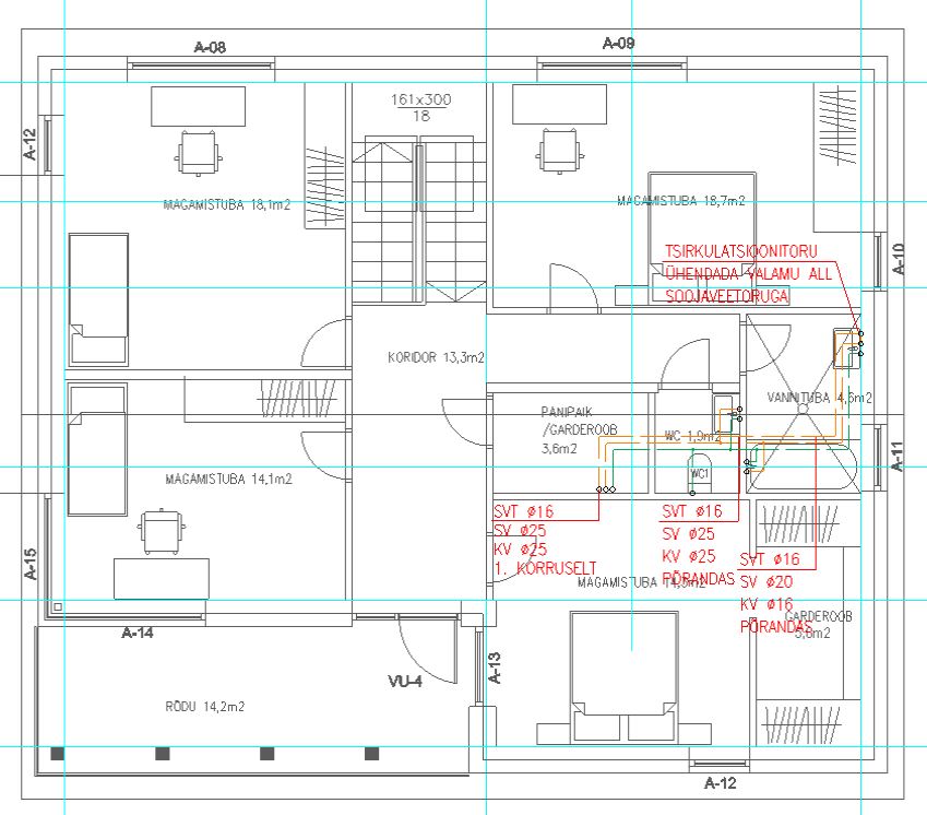
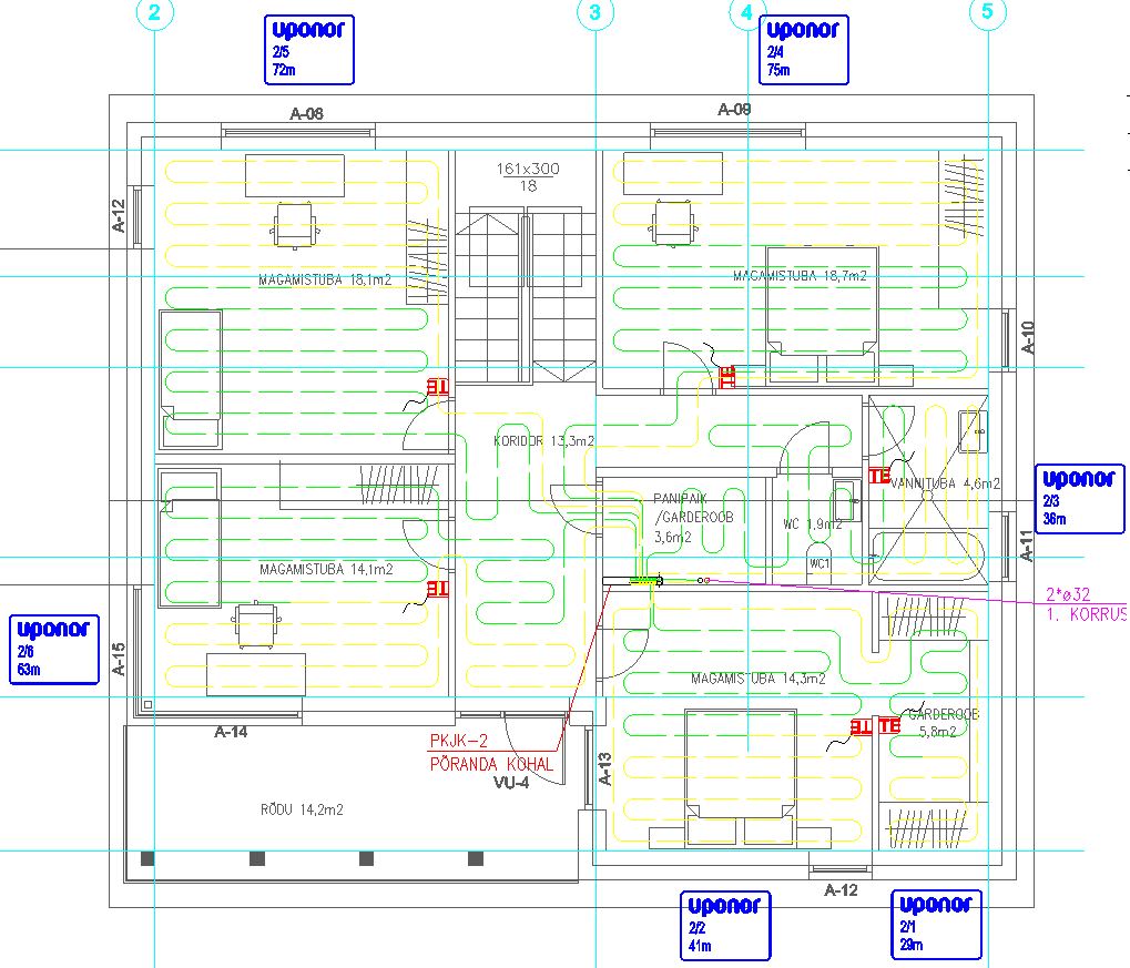
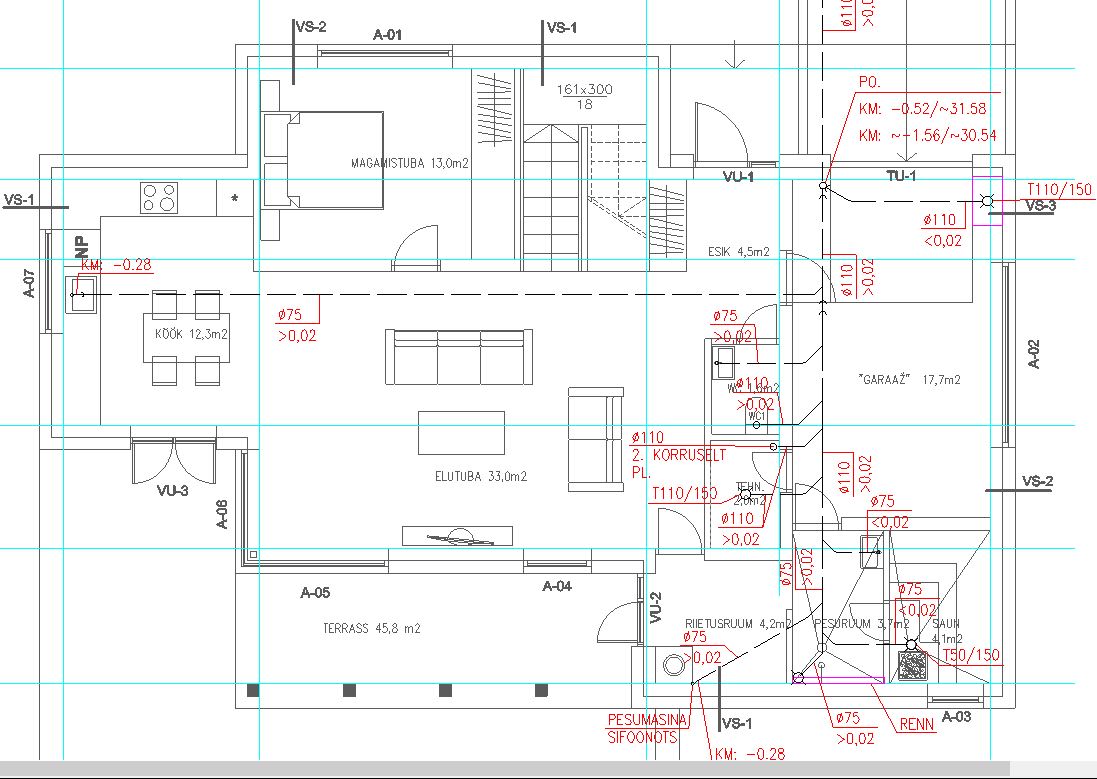
Vajalik teostada kanalisatsiooni , vee ja põrandaküttesüsteemi torustike ja vajalike kollektorite paigaldustööd vastavalt projektile.
2e korruseline Fibo plokkidest ja betoonist vahelaepaneelidega eramu. Põrandapinnaga 190 m2.

Pildid, video ja failid

Hanke korraldaja: ettevõte ID42628

Pakkumised

Pakkumisi kokku: 3

Ettevõte Summa Käibemaks Lisatud Vestlus
Kasutaja ikoon ID39653
Pakkuja profiil Väike nool paremale
3 500€ Ei sisalda Ei sisalda 22.08.2018 Vestlus (0)
Kasutaja ikoon ID42602
Pakkuja profiil Väike nool paremale
3 400€ Ei sisalda Ei sisalda 27.08.2018 Vestlus (0)

Pakkumise kirjeldus:

Hind materjalideta.

Maksetingimused sõltuvalt tellija taustast.

Kasutaja ikoon ID33915
Pakkuja profiil Väike nool paremale
6 538€ Ei sisalda Ei sisalda 27.08.2018 Vestlus (0)

Pakkumise kirjeldus:

Meie pakume X-L Pipe kütte toru 20mm koos kütte kehaga täis pumbatud frioniga, koos digitalse termotegulatoritega igas tuas. Mida võib progromerida tund,päev, kuu,asta ette.
Hinna sees on paigaldus. Teil pole vaja katlamaja ja kutte agrekati ,sest ta on juba hinna ja süstemi sees.

Mida pole hinna sees transpordi kuule ,uteliserimine , kanalisatso ... Rohkem

Küsimused hanke korraldajale

Küsimus: private ID42602   17.08.2018 17:34
Tere.<br />
<br />
Kas põrandaküte läheb võrgule, või on mummudega peno?<br />
Kas peab kindlasti olema projekti järgsed kontuurid, või saab muuta spiraaliks?<br />
<br />
Meelis

Teavita reeglite rikkumisest

Korraldaja vastus: 20.08.2018 19:52

Tere!<br />
Põrandaküte läheb võrgule. <br />
Kontuurid jäävad ikka projekti järgi.

Teavita reeglite rikkumisest

Lisa küsimus

Lisa küsimus

Minu pakkumine

Reeglid

Pakkumise kirjelduse väli on mõeldud pakkumise detailsemaks lahti kirjutamiseks. Pikema teksti mugavaks sisestamiseks klikkige kasti paremal ülaservas oleval ikoonil.
Pakkumist tehes on keelatud postitada enda kontaktandmeid (nimi, telefon, aadress jne). Me jälgime ja analüüsime pakkumisi, et vältida pettuseid ja reeglite rikkumisi.
Rikkumise puhul kasutajakonto blokeeritakse.

 

Teisi töid samas valdkonnas

Valdkonnas "Torutööd" on 2 aktiivset tööd

Kaarhalli soojaku torustiku renoveerimine

Asukoht: Harjumaa, Saue
Aega jäänud: 9h 50 min
Tehtud pakkumisi: 4

Köögi äravoolu paigaldus

Asukoht: Harjumaa, Tallinn
Aega jäänud: 4p 9h
Tehtud pakkumisi: 2

Vanemad teated:

Vaata kõiki

Sellel veebilehel kasutatakse küpsiseid. Kasutamist jätkates nõustute küpsiste kasutamisega.

Sulge
 
Minu pakkumine

Reeglid

Pakkumise kirjelduse väli on mõeldud pakkumise detailsemaks lahti kirjutamiseks. Pikema teksti mugavaks sisestamiseks klikkige kasti paremal ülaservas oleval ikoonil.
Pakkumist tehes on keelatud postitada enda kontaktandmeid (nimi, telefon, aadress jne). Me jälgime ja analüüsime pakkumisi, et vältida pettuseid ja reeglite rikkumisi.
Rikkumise puhul kasutajakonto blokeeritakse.