+ Lisa oma töö      

Otsid ehitajat "Vannitubade remont" valdkonnast?

Parima pakkumise ja teostaja leidmiseks lisa oma töö.

Hange on lõppenud!

Võitjaks osutus kasutaja ID 48659

Duširuumi ja WC ehitus

ID 44967

5315 vaatamist

Prindi

  • check Pakkumiste tegemine
    kuni 13.10.2018
  • check Võitja valik kuni
    20.10.2018
  • 3 Töö teostamine
    ja hinnang
Hanke lõpp: L, 13. oktoober, 2018
Maakond: Lääne-Virumaa
Muu asula: Kadrina Vald
Tööde algus: N, 01. november, 2018 (Soovituslik)
Tööde lõpp: P, 31. märts, 2019 (Soovituslik)
Ehitusmaterjalid: Töö tegija poolt

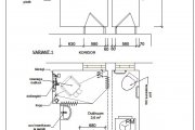
Töö sisu

Korter asub 2.korrusel. Elamus on eraldiseisev 730 mm laiune kuivkäimla ruum, mille ukseava laiuseks on 580 mm. Kuivkäimla kõrval on 1270 mm laiune panipaiga ruum, mille ukseava laiuseks on samuti 580 mm. Ustel on 40 mm kõrgune lävepakk. Nimetatud ukseavast ei pääse ratastooli kasutav klient läbi. Kuivkäimla ja panipaiga ruumide vahel on mittekandev vahesein. Põrandakatteks on siin puitlaagidel laudis. Panipaiga vasakpoolse seina ääres on kanalisatsiooni püstik, millesse on ühendatud köögi kraanikausi äravoolu torustik.

-WC ja panipaiga seina lammutus kuni vahelae kandekonstruktsioonini.
-Eemaldada kuivkäimlas seinte ja lae viimistlus ning kõik ruumis olevad tarvikud.
- Kui on võimalik kuivkäimla pott asendada WC-potiga, siis eemaldada kuivkäimla pott. WC-poti ühendamise võimatuse korral olemasoleva kanalisatsiooni toruga, säilitada olemasolev pott endises kohas.
-Ehitada kinni endine kuivkäimla ukseava.
- Ehitada uus põrand, mis jääks koridori põrandaga ühele tasapinnale. Põrandale paigaldada kinniste pooridega soojustus. Dušiala põranda aluskonstruktsiooni kalle jäägu trapi suunas 3%.
- Veekasutuse seadmete paigaldamise eel sulgeda korteri veeeühendus. Vee sulgemise eel kooskõlastada see tegevus maja juhatusega.
- Paigaldada vee- ja kanalisatsiooni torustikud ning elektrikaablid.
- Põrand ja seinad katta hüdroisolatsiooniga.
- Lagi puhastada lahtistest osistest, pahteldada siledaks ja värvida niiskuskindla värviga.
- Seinad viimistleda keraamiliste plaatidega. Enne ükskõik milliste viimistlusmaterjalide kasutamist kooskõlastada materjalide valik kliendiga.
- Põrand viimistleda keraamiliste plaatidega mille libisemiskindlus oleks vähemalt R10.
- Kui on võimalik teostada kanalisatsiooni ühendused, paigaldada WC-pott. Selle töö võimatuse korral säilitada või asetada tagasi olemasolev pott. Kõigi paigaldatavate santehniliste seadmete paigaldamise eel kooskõlastada nende valik kliendiga.
- Paigaldada ruumi valgustus ja seintele kinnitatavad tarvikud.
- Seinale kinnitada duši lift ja segistid. Paigaldada ja ühendada kraanikauss koos segistiga. Teostada vee ja kanalisatsiooni ühendused ning kontrollida tehtud ühenduste pidavust.
- Duširuumi seintele kinnitada käetoed, mis taluvad täiskasvanud inimese koormust. Käetugede paigaldamise koha määrab klient või tema hooldaja.
- Dušiala ümbrusesse paigaldada dušikardin nii, et see takistaks vee valgumist kõrval olevatele pindadele

Pildid, video ja failid

Hanke korraldaja: eraisik ID49359

Pakkumised

Pakkumisi kokku: 3

Ettevõte Summa Käibemaks Lisatud Vestlus
Kasutaja ikoon ID46353
Pakkuja profiil Väike nool paremale
5 800€ Ei sisalda Ei sisalda 01.10.2018 Vestlus (0)

Pakkumise kirjeldus:

Tere
Hinnapakkumine hankes olevale tööle ja materjalidele.

Lugupidamisega

Kasutaja ikoon ID48659
Pakkuja profiil Väike nool paremale
5 650€ Ei sisalda Ei sisalda 13.10.2018 Vestlus (2)

Pakkumise kirjeldus:

Tere!

Hinnas kõik vajaminevad materjalid ja san tehnika.
Hinnas aluplex uus veetorustik ja kanalisatsioon ning uus elektrijuhtmestik.
Hinnas ka põranda- ja seinaplaadid arvestuslikult 10 € m2.
Hinnas pole lükandust ja mõõblit ning põrandakütet kuna neid pole eraldi küsitud.
( muidugi saame teha pakkumise koos eelmainitud lisadega ka )

Teg ... Rohkem

Kasutaja ikoon ID49247
Pakkuja profiil Väike nool paremale
5 300€ Ei sisalda Ei sisalda 13.10.2018 Vestlus (2)

Pakkumise kirjeldus:

Tere, pakume omalt poot kiiret ja kvaliteetset tööd. Tuleme ja tutvume objektiga ning vastavalt võimalustele teeme siis ühe variantidest. Anname enda tööle 2 aastat garantiid.
Küsimustele vastame meeleldi eraldi vestluses.
Lugupidamisega
J.

Küsimused hanke korraldajale

Hanke korraldajale ei ole veel küsimusi esitatud.

Lisa küsimus

Lisa küsimus

Minu pakkumine

Reeglid

Pakkumise kirjelduse väli on mõeldud pakkumise detailsemaks lahti kirjutamiseks. Pikema teksti mugavaks sisestamiseks klikkige kasti paremal ülaservas oleval ikoonil.
Pakkumist tehes on keelatud postitada enda kontaktandmeid (nimi, telefon, aadress jne). Me jälgime ja analüüsime pakkumisi, et vältida pettuseid ja reeglite rikkumisi.
Rikkumise puhul kasutajakonto blokeeritakse.

 

Teisi töid samas valdkonnas

Valdkonnas "Vannitubade remont" on 5 aktiivset tööd

Vannitoa ja Wc kapitaalremont

Asukoht: Harjumaa, Tallinn
Aega jäänud: 3p 16h
Tehtud pakkumisi: 6

Vannitoa valamu ja valamukapi paigaldus (IKEA oma)

Asukoht: Harjumaa, Tallinn
Aega jäänud: 1p 16h
Tehtud pakkumisi: 5

Vanemad teated:

Vaata kõiki

Sellel veebilehel kasutatakse küpsiseid. Kasutamist jätkates nõustute küpsiste kasutamisega.

Sulge
 
Minu pakkumine

Reeglid

Pakkumise kirjelduse väli on mõeldud pakkumise detailsemaks lahti kirjutamiseks. Pikema teksti mugavaks sisestamiseks klikkige kasti paremal ülaservas oleval ikoonil.
Pakkumist tehes on keelatud postitada enda kontaktandmeid (nimi, telefon, aadress jne). Me jälgime ja analüüsime pakkumisi, et vältida pettuseid ja reeglite rikkumisi.
Rikkumise puhul kasutajakonto blokeeritakse.