+ Lisa oma töö      

Otsid ehitajat "Elektritööd" valdkonnast?

Parima pakkumise ja teostaja leidmiseks lisa oma töö.

Hange on lõppenud!

Võitjaks osutus kasutaja ID 33667

Eramu elektritööd

ID 44974

3176 vaatamist

Prindi

  • check Pakkumiste tegemine
    kuni 21.09.2018
  • check Võitja valik kuni
    28.09.2018
  • 3 Töö teostamine
    ja hinnang
Hanke lõpp: R, 21. september, 2018
Maakond: Harjumaa
Muu asula: Vanamõisa
Tööde algus: N, 01. november, 2018 (Soovituslik)
Tööde lõpp: R, 30. november, 2018 (Soovituslik)
Ehitusmaterjalid: Töö tellija poolt

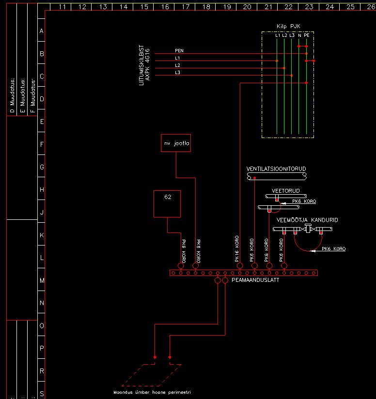
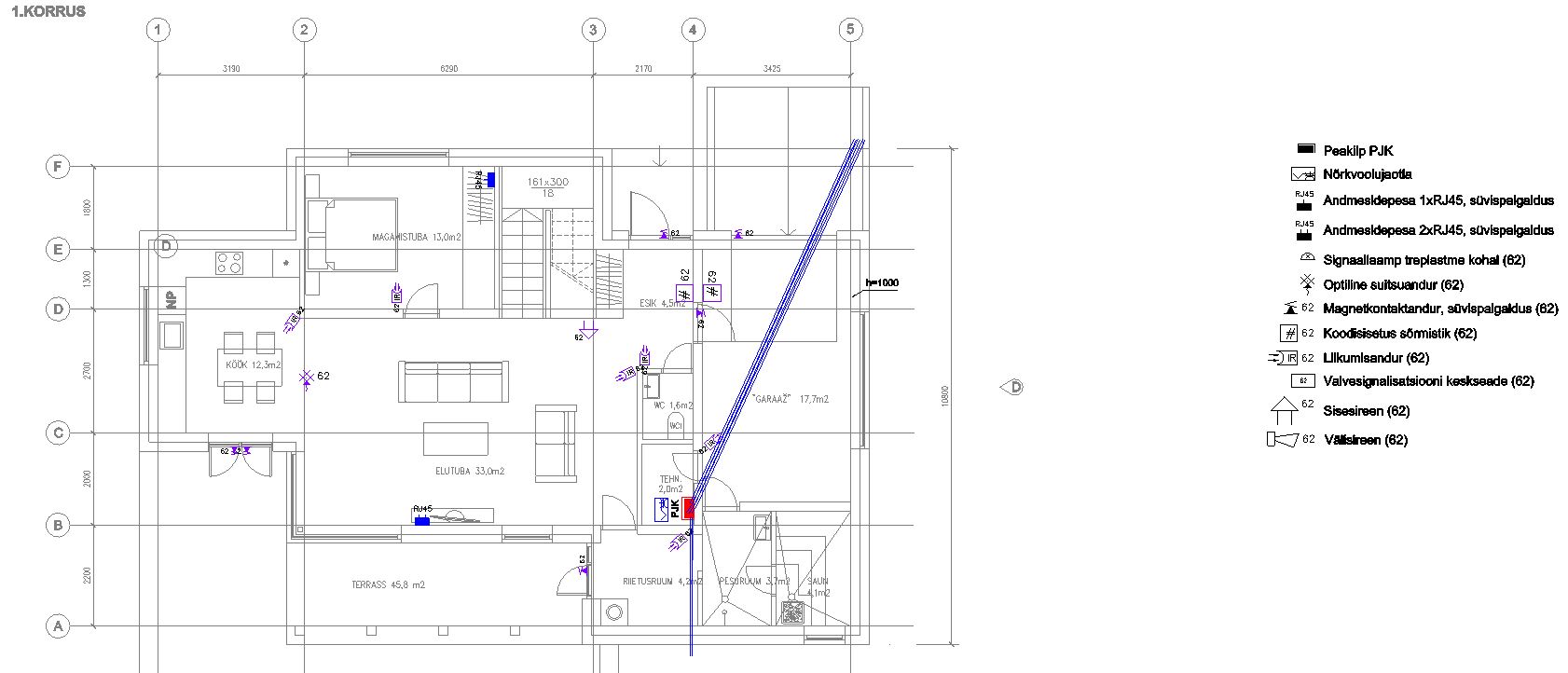
Töö sisu

Kaabeldus ja tooside paigaldus vastavalt projektile. Majja sisestus tehtud. PJK paigaldus.

Pildid, video ja failid

Hanke korraldaja: ettevõte ID42628

Pakkumised

Pakkumisi kokku: 3

Ettevõte Summa Käibemaks Lisatud Vestlus
Kasutaja ikoon ID49336
Pakkuja profiil Väike nool paremale
6 000€ Ei sisalda Ei sisalda 15.09.2018 Vestlus (0)

Pakkumise kirjeldus:

Pakkumus sisaldab tugev-ja nõrkvoolu kaabeldust,potentsiaalide ühtlustamist ning kilbi paigaldust,komplekteerimist ja ühendamist ning tähistamist.
Pakkumus ei sisalda pistikute,lülitite,valgustite hankimist ja paigaldamist.

Tasumine teostatud tööde järgselt,jagatuna etappidesse.

Kasutaja ikoon ID49317
Pakkuja profiil Väike nool paremale
5 075€ Ei sisalda Ei sisalda 17.09.2018 Vestlus (0)
Kasutaja ikoon ID33667
Pakkuja profiil Väike nool paremale
4 900€ Ei sisalda Ei sisalda 21.09.2018 Vestlus (0)

Pakkumise kirjeldus:

Pakkumine sisaldab kaabeldust ja kilbi paigaldamist/yhendamistt imaterjalideta. Ei sisalda pistikute/lylitite paigaldamist.

Küsimused hanke korraldajale

Küsimus: private ID19451   14.09.2018 11:32
Tere! Selline hange just oli üleval ? Kas eeldate,et elektritööd teostatakse Teil ilusate silmade eest ! ;))

Teavita reeglite rikkumisest

Korraldaja vastus: 17.09.2018 08:50

Paraku ei ole veel leidnud mõlemale poolele sobivat lahendust.

Teavita reeglite rikkumisest

Küsimus: private ID40985   15.09.2018 20:33
Soovite PJK paigaldust.<br />
Kas see tähendab, et kilp koos koostega on tellija poolt?<br />
Aitäh,

Teavita reeglite rikkumisest

Korraldaja vastus: 17.09.2018 08:42

Hetkel arvestatud kilp tellija poolt.

Teavita reeglite rikkumisest

Küsimus: private ID49317   17.09.2018 10:01
Tere.<br />
Millest seinad on?(fibo,aeroc,columbia).Ma ei leidsin termo andurite kohad?Kuidas kütmine toimub?

Teavita reeglite rikkumisest

Korraldaja vastus: 19.09.2018 12:54

Seinad on Fibo. Termoandurid on märgitud kütte projektis. võib arvestada, et igas toas on õhuandur, vannitoas ja saunas on põranda andur. Kütmine on õhk-vesi soojuspump, põrandaküttel mõlemad korrused.

Teavita reeglite rikkumisest

Küsimus: private ID31451   18.09.2018 19:56
Tere!<br />
Kas soovite tööd kui auditini ? Ehk siis kaabeldust,tooside paigaldust,kilbi paigaldust-ühendamist,pesade lülitite paigaldust,valgustite paigaldust,kontrollmõõtmisi,auditit ?

Teavita reeglite rikkumisest

Korraldaja vastus: 19.09.2018 15:07

Lõpuks on ikka ka auditit vaja. Et paberid korras ja saab lõpuks ka kasutusloa.

Teavita reeglite rikkumisest

Küsimus: private ID31451   18.09.2018 19:57
Vabandust- kuni auditini.

Teavita reeglite rikkumisest

Korraldaja vastus:
Hanke korraldaja ei ole küsimusele veel vastanud

Lisa küsimus

Lisa küsimus

Minu pakkumine

Reeglid

Pakkumise kirjelduse väli on mõeldud pakkumise detailsemaks lahti kirjutamiseks. Pikema teksti mugavaks sisestamiseks klikkige kasti paremal ülaservas oleval ikoonil.
Pakkumist tehes on keelatud postitada enda kontaktandmeid (nimi, telefon, aadress jne). Me jälgime ja analüüsime pakkumisi, et vältida pettuseid ja reeglite rikkumisi.
Rikkumise puhul kasutajakonto blokeeritakse.

 

Teisi töid samas valdkonnas

Valdkonnas "Elektritööd" on 5 aktiivset tööd

Vana talu elektrisüsteemi uuendamine (kilp, pistikud, välivalgustus, EV valmidus)

Asukoht: Raplamaa, Suurekivi
Aega jäänud: 1p 8h
Tehtud pakkumisi: 5

Kaablite vahetus paneelmaja korteris ja siseviimistlus

Asukoht: Harjumaa, Tallinn
Aega jäänud: 6p 8h
Tehtud pakkumisi: 3

Vanemad teated:

Vaata kõiki

Sellel veebilehel kasutatakse küpsiseid. Kasutamist jätkates nõustute küpsiste kasutamisega.

Sulge
 
Minu pakkumine

Reeglid

Pakkumise kirjelduse väli on mõeldud pakkumise detailsemaks lahti kirjutamiseks. Pikema teksti mugavaks sisestamiseks klikkige kasti paremal ülaservas oleval ikoonil.
Pakkumist tehes on keelatud postitada enda kontaktandmeid (nimi, telefon, aadress jne). Me jälgime ja analüüsime pakkumisi, et vältida pettuseid ja reeglite rikkumisi.
Rikkumise puhul kasutajakonto blokeeritakse.