+ Lisa oma töö      

Otsid ehitajat "Projekteerimine" valdkonnast?

Parima pakkumise ja teostaja leidmiseks lisa oma töö.

Korteri projekt

ID 45242

2801 vaatamist

Prindi

  • check Pakkumiste tegemine
    kuni 15.10.2018
  • check Võitja valik kuni
    22.10.2018
  • 3 Töö teostamine
    ja hinnang
Hanke lõpp: E, 15. oktoober, 2018
Maakond: Harjumaa
Muu asula: Ardu alevik
Tööde algus: R, 26. oktoober, 2018 (Soovituslik)
Tööde lõpp: E, 26. november, 2018 (Soovituslik)
Ehitusmaterjalid: Töö tellija poolt

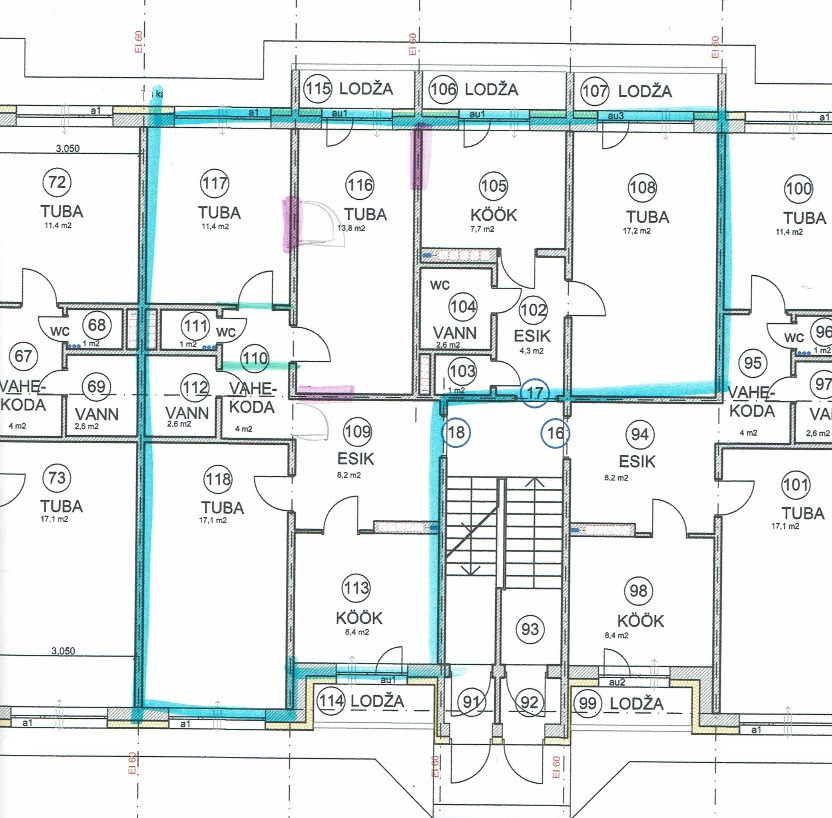
Töö sisu

Otsime projekteerijat, et muuta tüüpilise 5-korruselise paneelmaja teisel korrusel asuva 3-toalise korteri planeeringut. Vaja on teha seintesse kolm ukseava. Üks ukseavadest oleks ka ühendus kõrval asuva 1-toalise korteriga. Projekti sooviks ehitusregistrisse esitamiseks koos tugevdusarvutustega ja projektijuhtimisega. Samuti peaks töövõtja tegelema ehitusteatisega, mis esitatakse kohalikule omavalitsusele.

Pildid, video ja failid

Hanke korraldaja: eraisik ID49593

Pakkumised

Pakkumisi kokku: 2

Ettevõte Summa Käibemaks Lisatud Vestlus
Kasutaja ikoon ID47506
Pakkuja profiil Väike nool paremale
1 250€ Ei sisalda Ei sisalda 10.10.2018 Vestlus (0)
Kasutaja ikoon ID42152
Pakkuja profiil Väike nool paremale
995€ Ei sisalda Ei sisalda 11.10.2018 Vestlus (0)

Pakkumise kirjeldus:

Ehitusprojekt eelprojekti staadiumis (arh-eh osa koos eriosadega)
PAkkumsihind sisaldab:
Seletuskiri
Asendiplaan
Korruse plaan
Avatäidete spetsifikatsioon

Kooskõlastused ehitusteatise registreerimsieks
Ehitusteatise registreerimine (kooskõlastamine) KOV

KM ei lisandu
Riigilõivu ei lisandu

Küsimused hanke korraldajale

Hanke korraldajale ei ole veel küsimusi esitatud.

Lisa küsimus

Lisa küsimus

Minu pakkumine

Reeglid

Pakkumise kirjelduse väli on mõeldud pakkumise detailsemaks lahti kirjutamiseks. Pikema teksti mugavaks sisestamiseks klikkige kasti paremal ülaservas oleval ikoonil.
Pakkumist tehes on keelatud postitada enda kontaktandmeid (nimi, telefon, aadress jne). Me jälgime ja analüüsime pakkumisi, et vältida pettuseid ja reeglite rikkumisi.
Rikkumise puhul kasutajakonto blokeeritakse.

 

Teisi töid samas valdkonnas

Valdkonnas "Projekteerimine" on 6 aktiivset tööd

no-img Pilt puudub

1-kordse 120 m2 elumaja põhiprojekt

Asukoht: Harjumaa, Metsanurme
Aega jäänud: 8p 11h
Tehtud pakkumisi: 4

no-img Pilt puudub

Saunamaja eelprojekt ehitusteatiseks

Asukoht: Lääne-Virumaa
Aega jäänud: 1p 11h
Tehtud pakkumisi: 3

Vanemad teated:

Vaata kõiki

Sellel veebilehel kasutatakse küpsiseid. Kasutamist jätkates nõustute küpsiste kasutamisega.

Sulge
 
Minu pakkumine

Reeglid

Pakkumise kirjelduse väli on mõeldud pakkumise detailsemaks lahti kirjutamiseks. Pikema teksti mugavaks sisestamiseks klikkige kasti paremal ülaservas oleval ikoonil.
Pakkumist tehes on keelatud postitada enda kontaktandmeid (nimi, telefon, aadress jne). Me jälgime ja analüüsime pakkumisi, et vältida pettuseid ja reeglite rikkumisi.
Rikkumise puhul kasutajakonto blokeeritakse.