+ Lisa oma töö      

Otsid ehitajat "Ehitusprojektid" valdkonnast?

Parima pakkumise ja teostaja leidmiseks lisa oma töö.

Hange on lõppenud!

Võitjaks osutus kasutaja ID 42152

Garaaži/abihoone projekteerimine

ID 45620

3187 vaatamist

Prindi

  • check Pakkumiste tegemine
    kuni 04.12.2018
  • check Võitja valik kuni
    11.12.2018
  • 3 Töö teostamine
    ja hinnang
Hanke lõpp: T, 4. detsember, 2018
Maakond: Pärnumaa
Linn: Pärnu
Tööde algus: E, 03. detsember, 2018 (Soovituslik)
Tööde lõpp: E, 31. detsember, 2018 (Soovituslik)
Ehitusmaterjalid: Töö tellija poolt

Töö sisu

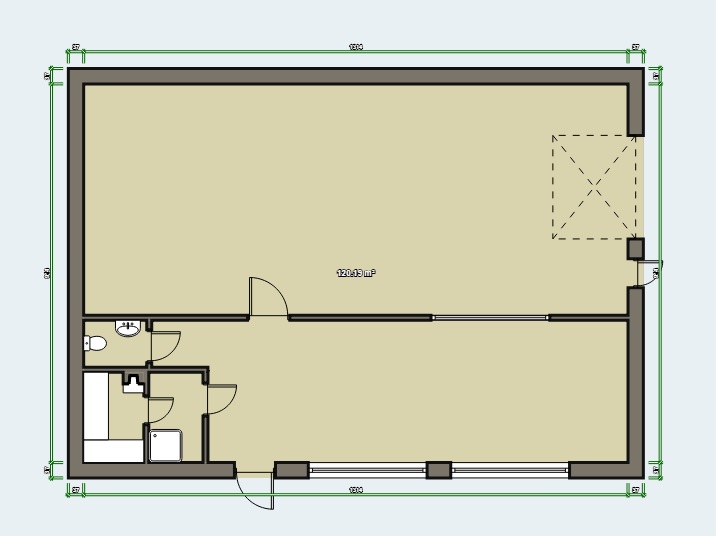
Soovin garaaži/abihoone projekti, ~120m2, ühekordne, sellest 80m2 on avatud tööruum, ülejäänu saun, eesruum, WC, abiruumid.

Puitkarkass soojustatud, plaatvundament, vesi kohalikust puurkaevust, kanalisatsioon lokaalne septik imbväljakuga.

Pakkumine peab sisaldama garaazi ehitusprojekti ehitusloa taotlemiseks / ehitusteatise esitamiseks vajalikus mahus koos kõikide kooskõlastustega, asjaajamistega.
Projekt peab sisaldama arhitektuurseid plaane, vaateid, lõikeid, konstruktsioonide põhisõlmede lahendusi, seletuskirja, asendiplaani (tellija geoalusele) ja situatsiooniskeemi. Seletuskirjas on lahtikirjutatud põhimõttelised päästeameti/tuleohutuse osa, arhitektuurne ning konstruktiivne osa.
Kõik vajalikud kooskõlastused, s.h. Päästeameti kooskõlastus hinna sees.

Pildid, video ja failid

Hanke korraldaja: eraisik ID33137

Pakkumised

Pakkumisi kokku: 3

Ettevõte Summa Käibemaks Lisatud Vestlus
Kasutaja ikoon ID42152
Pakkuja profiil Väike nool paremale
580€ Ei sisalda Ei sisalda 27.11.2018 Vestlus (0)

Pakkumise kirjeldus:

Ehitusprojekt eelprojekti staadiumis (arh-eh osa koos eriosadega)
PAkkumsihind sisaldab:
Seletuskiri
Asendiplaan
Vund ja korruse plaan
Hoone lõige
Hoone vaated
Avatäidete joonised

Kooskõlastused ehitusloa saamiseks
Ehitusloa taotlemine KOV

KM ei lisandu
Lisandub riigilõiv 250EUR

Kasutaja ikoon ID45406
Pakkuja profiil Väike nool paremale
960€ Ei sisalda Ei sisalda 28.11.2018 Vestlus (0)

Pakkumise kirjeldus:

Tere!
Hinnapakkumine sisaldab projekti koostamist eelprojekti mahus, ehitusloa taotluse esitamist läbi ehitisregistri koos kõikide vajalike kooskõlastustega ja suhtlemist kohaliku omavalitsusega kuni ehitusloa väljastamiseni. Pakkumine ei sisalda riigilõivusid. Loodan, et pakkumine on Teile sobiv ning viib koostööle. Lugupidamisega

Kasutaja ikoon ID46491
Pakkuja profiil Väike nool paremale
700€ Ei sisalda Ei sisalda 03.12.2018 Vestlus (0)

Pakkumise kirjeldus:

Hinnas kõik ülaltoodud projektiosad ja asjaajamine ehitisteatisega. Lisainfo vajadusel "vestluse" kaudu

Küsimused hanke korraldajale

Hanke korraldajale ei ole veel küsimusi esitatud.

Lisa küsimus

Lisa küsimus

Minu pakkumine

Reeglid

Pakkumise kirjelduse väli on mõeldud pakkumise detailsemaks lahti kirjutamiseks. Pikema teksti mugavaks sisestamiseks klikkige kasti paremal ülaservas oleval ikoonil.
Pakkumist tehes on keelatud postitada enda kontaktandmeid (nimi, telefon, aadress jne). Me jälgime ja analüüsime pakkumisi, et vältida pettuseid ja reeglite rikkumisi.
Rikkumise puhul kasutajakonto blokeeritakse.

 

Teisi töid samas valdkonnas

Valdkonnas "Ehitusprojektid" on 6 aktiivset tööd

no-img Pilt puudub

Ehitusinsener tase 7 vastutav allikiri

Asukoht: Pärnumaa, Pärnu
Aega jäänud: 9h 50 min
Tehtud pakkumisi: 2

Korteri elektri projekt

Asukoht: Harjumaa, Tallinn
Aega jäänud: 2p 9h
Tehtud pakkumisi: 2

Vanemad teated:

Vaata kõiki

Sellel veebilehel kasutatakse küpsiseid. Kasutamist jätkates nõustute küpsiste kasutamisega.

Sulge
 
Minu pakkumine

Reeglid

Pakkumise kirjelduse väli on mõeldud pakkumise detailsemaks lahti kirjutamiseks. Pikema teksti mugavaks sisestamiseks klikkige kasti paremal ülaservas oleval ikoonil.
Pakkumist tehes on keelatud postitada enda kontaktandmeid (nimi, telefon, aadress jne). Me jälgime ja analüüsime pakkumisi, et vältida pettuseid ja reeglite rikkumisi.
Rikkumise puhul kasutajakonto blokeeritakse.