+ Lisa oma töö      

Otsid ehitajat "Vundamenditööd" valdkonnast?

Parima pakkumise ja teostaja leidmiseks lisa oma töö.

Elementmajale lintvundamendi ehitus.

ID 45626

3328 vaatamist

Prindi

  • check Pakkumiste tegemine
    kuni 28.12.2018
  • check Võitja valik kuni
    04.01.2019
  • 3 Töö teostamine
    ja hinnang
Hanke lõpp: R, 28. detsember, 2018
Maakond: Järvamaa
Linn: Paide
Tööde algus: E, 01. aprill, 2019 (Soovituslik)
Tööde lõpp: R, 31. mai, 2019 (Soovituslik)
Ehitusmaterjalid: Töö tegija poolt

Töö sisu

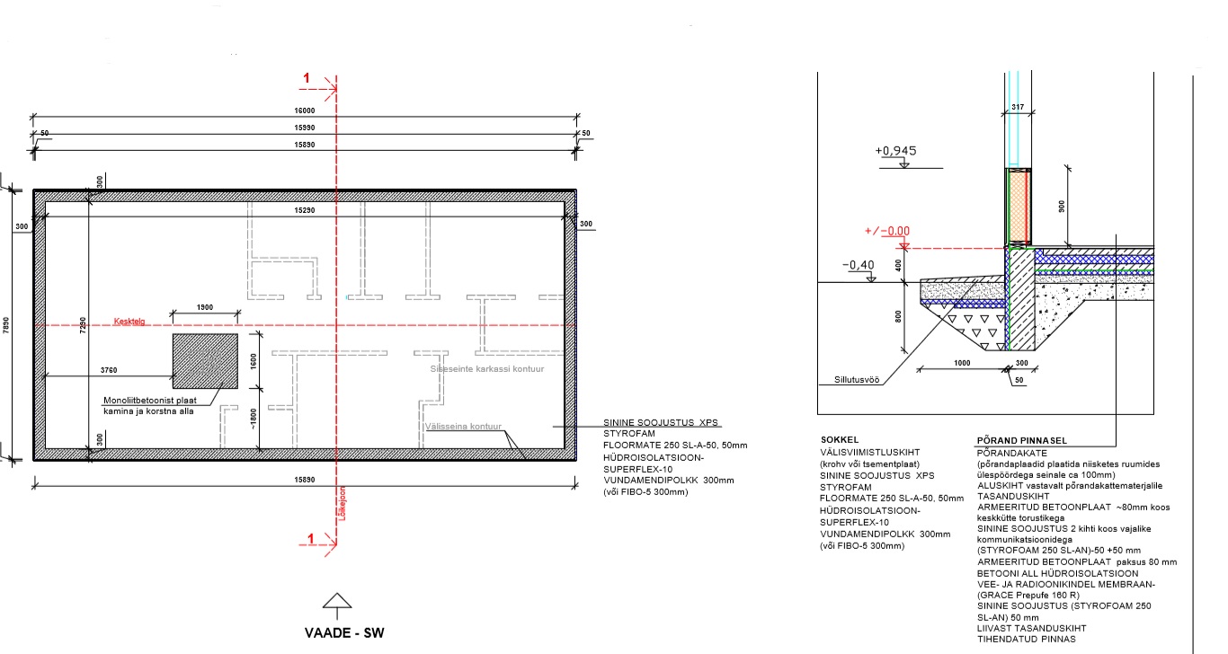
Töö kirjeldus:

Sokkel:
• Kaevetööd
• Killustiku padi, tihendamine.
• Taldmiku valamine
• Fibost vundamendi ladumine.
• Hüdroisolatsioon

Põrand pinnasel:
• Pinnase tihendamine.
• Liivast tasanduskiht.
• Sinise soojustuse paigaldus (STYROFOAM 250 SL-AN) 50mm
• Vee ja radioonikindla membraani paigaldus (GRACE Prepfue 160 R)
• Betooni alla hüdroisolatsiooni paigaldus.
• Armeeritud betoonplaadi valamine , paksus 80 mm
• Sinise soojustuse paigaldus 2 kihti 50+50 mm
• Põrandakütte torustike paigaldus.
• Armeeritud betoonplaadi valamine koos põrandakütte torustikega 80 mm
• Majja sisse tuua kommunikatsioonid, asuvad krundi piiril. Kanal, vesi, side, elekter.
• Majas betoonplaadis kommunikatsioonid laiali vedada.


Töö ja materjali hind eraldi.

Pildid, video ja failid

Hanke korraldaja: eraisik ID49701

Pakkumised

Pakkumisi kokku: 3

Ettevõte Summa Käibemaks Lisatud Vestlus
Kasutaja ikoon ID38730
Pakkuja profiil Väike nool paremale
27 000€ Ei sisalda Ei sisalda 04.12.2018 Vestlus (0)
Kasutaja ikoon ID48458
Pakkuja profiil Väike nool paremale
24 500€ Ei sisalda Ei sisalda 19.12.2018 Vestlus (0)

Pakkumise kirjeldus:

lugupidamisega

Kasutaja ikoon ID47051
Pakkuja profiil Väike nool paremale
26 300€ Ei sisalda Ei sisalda 28.12.2018 Vestlus (0)

Pakkumise kirjeldus:

Tere, omame töödeks MTR tegevusluba mida läheb kindlasti vaja et dokumentatsioon korras oleks, eraldi KM ei lisandu. Lgp

Küsimused hanke korraldajale

Küsimus: private ID24640   05.12.2018 17:20
Tere, kas saate täpsustada gabariitmõõte? Jooniselt ei loe välja kahjuks seda.

Teavita reeglite rikkumisest

Korraldaja vastus: 06.12.2018 10:05

Tere, lisasin uue pildi, nüüd peaks näha olema, täpsustaks veel, et valatakse ainult üks betoonplaat koos torustikega ja radioonimembraani ei paigaldata!

Teavita reeglite rikkumisest

Lisa küsimus

Lisa küsimus

Minu pakkumine

Reeglid

Pakkumise kirjelduse väli on mõeldud pakkumise detailsemaks lahti kirjutamiseks. Pikema teksti mugavaks sisestamiseks klikkige kasti paremal ülaservas oleval ikoonil.
Pakkumist tehes on keelatud postitada enda kontaktandmeid (nimi, telefon, aadress jne). Me jälgime ja analüüsime pakkumisi, et vältida pettuseid ja reeglite rikkumisi.
Rikkumise puhul kasutajakonto blokeeritakse.

 

Teisi töid samas valdkonnas

Valdkonnas "Vundamenditööd" on 9 aktiivset tööd

Plaatvundamendi valamine

Asukoht: Tartumaa, Tartu
Aega jäänud: 2p 14h
Tehtud pakkumisi: 3

no-img Pilt puudub

Vundamendi projekt

Asukoht: Harjumaa, Tallinn
Aega jäänud: 2p 14h
Tehtud pakkumisi: 2

Vanemad teated:

Vaata kõiki

Sellel veebilehel kasutatakse küpsiseid. Kasutamist jätkates nõustute küpsiste kasutamisega.

Sulge
 
Minu pakkumine

Reeglid

Pakkumise kirjelduse väli on mõeldud pakkumise detailsemaks lahti kirjutamiseks. Pikema teksti mugavaks sisestamiseks klikkige kasti paremal ülaservas oleval ikoonil.
Pakkumist tehes on keelatud postitada enda kontaktandmeid (nimi, telefon, aadress jne). Me jälgime ja analüüsime pakkumisi, et vältida pettuseid ja reeglite rikkumisi.
Rikkumise puhul kasutajakonto blokeeritakse.