+ Lisa oma töö      

Otsid ehitajat "Põrandatööd" valdkonnast?

Parima pakkumise ja teostaja leidmiseks lisa oma töö.

Hange on lõppenud!

Võitjaks osutus kasutaja ID 49247

Põranda ja vundamendi soojustus

ID 45711

5729 vaatamist

Prindi

  • check Pakkumiste tegemine
    kuni 31.12.2018
  • check Võitja valik kuni
    07.01.2019
  • 3 Töö teostamine
    ja hinnang
Hanke lõpp: E, 31. detsember, 2018
Maakond: Lääne-Virumaa
Muu asula: Lahemaa
Tööde algus: L, 23. veebruar, 2019 (Soovituslik)
Tööde lõpp: L, 23. märts, 2019 (Soovituslik)
Ehitusmaterjalid: Töö tegija poolt

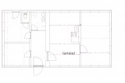
Töö sisu

Vana talumaja põranda soojustus, drenaazhi ja vundamendi õuest soojustamine Lahemaal.
Palun eraldi pakkuda maja sisetööde ja välistööde hind. Täpsem tööde kirjeldus ja inseneri joonised manustes.
Maja sisemised tööd kokkuvõtavalt:
Olemasoleva põranda eemaldamine, mulla välja kaevamine, soojustatud armeeritud betoonpõrand koos radoonikaevude ja kilega ning laudpõrand peale. Vundament eraldi ahjule, ning uute veetorude paigaldus.
Majavälised tööd:
Maja perimeetri lahti kaevamine, niiskustõke ja horisontaalne soojustus ja drenaazh.

Pildid, video ja failid

Hanke korraldaja: eraisik ID49915

Pakkumised

Pakkumisi kokku: 3

Ettevõte Summa Käibemaks Lisatud Vestlus
Kasutaja ikoon ID33360
Pakkuja profiil Väike nool paremale
33 168€ Sisaldab KM Sisaldab KM 20.12.2018 Vestlus (5)

Pakkumise kirjeldus:

Tere , hind sisaldab tööd ja materjali.

Kasutaja ikoon ID49247
Pakkuja profiil Väike nool paremale
26 158€ Sisaldab KM Sisaldab KM 24.12.2018 Vestlus (16)

Pakkumise kirjeldus:

Tere, meiepoolne hinnapakkumine on järgnev:
Sisetööd 17258€
Välitööd 8910€
Hind sisaldab tööd ja materjale ning arvestuslikult teeme tööd üksteise järel (plaan võib muutuda ekstreemsete ilmaolude korral).
Summa sisaldab käibemaksu.

Ettemaks kehtib etapi kohta, mitte üldsumma. Tasumine toimub etappide kaupa lepingu alusel. Töödele ... Rohkem

Kasutaja ikoon ID50012
Pakkuja profiil Väike nool paremale
31 500€ Ei sisalda Ei sisalda 27.12.2018 Vestlus (0)

Küsimused hanke korraldajale

Küsimus: private ID50012   17.12.2018 15:06
Tere,kas vanad põrandad tuleb ka utiliseerda?<br />
Kas majani on korralik tee,juurdepääs?

Teavita reeglite rikkumisest

Korraldaja vastus: 17.12.2018 16:43

Tere, vanad põrandad tuleks jah utiliseerida, kuigi võin vajadusel ka konteineri ise organiseerda. <br />
Korralik tee ei tule otse majani. maja juurde sõidetakse tavaliselt üle muruplatsi (sõidetud 20 aastat) 60m, või vana tee poolt 30m (osaliselt alles vana teealus aga ära vajunud ja pole kasutatud väga ammu). Pinnas muruplatsil ja maja ümbruses ei vaju vähemalt sõiduautoga sisse, ja muidu on ümbruskonnas maapind küll tugev aga vesine.

Teavita reeglite rikkumisest

Küsimus: private ID50012   19.12.2018 14:44
Tere,talvel ehk maapind külmunud ja juurdepääs parem. Majani peaks saama kallurauto liivaga ja betoonimikser!

Teavita reeglite rikkumisest

Korraldaja vastus: 21.12.2018 09:21

Arusaadav. Eks ma palu siis jõuluvanalt külma ja lumevaba talve kuni kevadeni :)

Teavita reeglite rikkumisest

Lisa küsimus

Lisa küsimus

Minu pakkumine

Reeglid

Pakkumise kirjelduse väli on mõeldud pakkumise detailsemaks lahti kirjutamiseks. Pikema teksti mugavaks sisestamiseks klikkige kasti paremal ülaservas oleval ikoonil.
Pakkumist tehes on keelatud postitada enda kontaktandmeid (nimi, telefon, aadress jne). Me jälgime ja analüüsime pakkumisi, et vältida pettuseid ja reeglite rikkumisi.
Rikkumise puhul kasutajakonto blokeeritakse.

 

Teisi töid samas valdkonnas

Valdkonnas "Põrandatööd" on 2 aktiivset tööd

Talumaja põrandate valamine/ehitus koos küttetorustiku paigaldusega

Asukoht: Raplamaa, Purila
Aega jäänud: 16p 5h
Tehtud pakkumisi: 2

Põrandakütte paigaldus ja põrandavalu (kips või betoon)

Asukoht: Saaremaa, Muhu vald
Aega jäänud: 5h 2 min
Tehtud pakkumisi: 1

Vanemad teated:

Vaata kõiki

Sellel veebilehel kasutatakse küpsiseid. Kasutamist jätkates nõustute küpsiste kasutamisega.

Sulge
 
Minu pakkumine

Reeglid

Pakkumise kirjelduse väli on mõeldud pakkumise detailsemaks lahti kirjutamiseks. Pikema teksti mugavaks sisestamiseks klikkige kasti paremal ülaservas oleval ikoonil.
Pakkumist tehes on keelatud postitada enda kontaktandmeid (nimi, telefon, aadress jne). Me jälgime ja analüüsime pakkumisi, et vältida pettuseid ja reeglite rikkumisi.
Rikkumise puhul kasutajakonto blokeeritakse.